
4 bedroom detached house for sale
Ulverley Green Road, Solihull

- PROPERTY TYPE
Detached
- BEDROOMS
4
- BATHROOMS
3
- SIZE
1,811 sq ft
168 sq m
- TENUREDescribes how you own a property. There are different types of tenure - freehold, leasehold, and commonhold.Read more about tenure in our glossary page.
Freehold
Key features
- Stunning Detached Property on a Large Corner Plot
- Two Reception Rooms with Conservatory
- Breakfast Kitchen & Large Utility Room
- Sitting Room/Bedroom 5 with Shower Room
- Study/Playroom
- Principal Bedroom with En-Suite Shower Room
- Second Double Bedroom & Two Further Bedrooms
- Modern Family Bathroom
- Large Wrap Around Garden
- Driveway Parking for Numerous Vehicles
Description
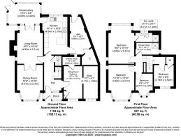
Details - Upon entering, you are greeted by a welcoming hallway that leads to a guest cloakroom. The formal dining room features a charming walk-in bay window and French doors that seamlessly connect to the living room, which is adorned with a cosy fire and surround, perfect for those chilly evenings. The bright conservatory, accessed through double French doors, overlooks the stunning garden, providing a tranquil space to relax. The heart of the home is the impressive breakfast kitchen, equipped with an array of modern units and integrated appliances, along with a convenient breakfast bar. A door leads to a good-sized lean-to which can be used as a utility room, ensuring practicality for busy family life. Additionally, the garage has been thoughtfully converted to create a versatile sitting room or ground floor bedroom, complete with a shower room, while the other half serves as a study.
The first floor comprises four well-proportioned bedrooms, including a principal suite with an en-suite shower room and delightful views over the garden. The second bedroom is generously sized, with the third being a good size and the fourth serving as a nursery. A family bathroom completes this level.
Outside - The property boasts a deep driveway with parking for up to six vehicles, complemented by a neat fore garden that enhances its curb appeal. The superb wrap-around garden is a true highlight, surrounded by mature trees and shrubs, offering both privacy and a picturesque setting. A beautiful lawn leads to a raised patio seating area, perfect for outdoor entertaining or simply enjoying the serene surroundings.
Location - The property is located within a short walk to Olton Train Station with the M42 being close by for those wishing to commute. A wide range of amenities can be found in Solihull to include the renowned Touchwood Court Shopping Centre.
Viewings - At short notice with DM & Co. Homes on or by email .
General Information - Planning Permission & Building Regulations: It is the responsibility of Purchasers to verify if any planning permission and building regulations were obtained and adhered to for any works carried out to the property.
Tenure: Freehold.
Broadband (Speeds): Upload 1000Mbps. Download 1800Mbps.
Flood Risk Rating - High/Low/Very Low?: No risk.
Conservation Area?: No.
Services: All mains services are connected to the property. However, it is advised that you confirm this at point of offer.
Local Authority: Solihull Metropolitan Borough Council.
Council Tax Band: D.
Other Services - DM & Co. Homes are pleased to offer the following services:-
Residential Lettings: If you are considering renting a property or letting your property, please contact the office on .
Mortgage Services: If you would like advice on the best mortgages available, please contact us on .
Want To Sell Your Property? - Call DM & Co. Homes on to arrange your FREE no obligation market appraisal and find out why we are Solihull's fastest growing Estate Agency.
Brochures
233 Ulverley Green Road Brochure.pdf- COUNCIL TAXA payment made to your local authority in order to pay for local services like schools, libraries, and refuse collection. The amount you pay depends on the value of the property.Read more about council Tax in our glossary page.
- Band: F
- PARKINGDetails of how and where vehicles can be parked, and any associated costs.Read more about parking in our glossary page.
- Yes
- GARDENA property has access to an outdoor space, which could be private or shared.
- Yes
- ACCESSIBILITYHow a property has been adapted to meet the needs of vulnerable or disabled individuals.Read more about accessibility in our glossary page.
- Ask agent
Energy performance certificate - ask agent
Ulverley Green Road, Solihull
Add an important place to see how long it'd take to get there from our property listings.
__mins driving to your place
Get an instant, personalised result:
- Show sellers you’re serious
- Secure viewings faster with agents
- No impact on your credit score

Your mortgage
Notes
Staying secure when looking for property
Ensure you're up to date with our latest advice on how to avoid fraud or scams when looking for property online.
Visit our security centre to find out moreDisclaimer - Property reference 34247773. The information displayed about this property comprises a property advertisement. Rightmove.co.uk makes no warranty as to the accuracy or completeness of the advertisement or any linked or associated information, and Rightmove has no control over the content. This property advertisement does not constitute property particulars. The information is provided and maintained by DM & Co. Homes, Solihull. Please contact the selling agent or developer directly to obtain any information which may be available under the terms of The Energy Performance of Buildings (Certificates and Inspections) (England and Wales) Regulations 2007 or the Home Report if in relation to a residential property in Scotland.
*This is the average speed from the provider with the fastest broadband package available at this postcode. The average speed displayed is based on the download speeds of at least 50% of customers at peak time (8pm to 10pm). Fibre/cable services at the postcode are subject to availability and may differ between properties within a postcode. Speeds can be affected by a range of technical and environmental factors. The speed at the property may be lower than that listed above. You can check the estimated speed and confirm availability to a property prior to purchasing on the broadband provider's website. Providers may increase charges. The information is provided and maintained by Decision Technologies Limited. **This is indicative only and based on a 2-person household with multiple devices and simultaneous usage. Broadband performance is affected by multiple factors including number of occupants and devices, simultaneous usage, router range etc. For more information speak to your broadband provider.
Map data ©OpenStreetMap contributors.





