Ash Close, Penkridge, Staffordshire

- PROPERTY TYPE
Detached
- BEDROOMS
4
- BATHROOMS
2
- SIZE
Ask agent
- TENUREDescribes how you own a property. There are different types of tenure - freehold, leasehold, and commonhold.Read more about tenure in our glossary page.
Freehold
Key features
- LEE COOKE PRESENTS A CORNER PLOT DETACHED FAMILY HOME
- FOUR BEDROOMS - BUILT BY BLOOR HOMES IN 2023
- SITUATED ON A WONDERFUL SEMI-RURAL MODERN DEVELOPMENT IN THE PENKRIDGE AREA
- STUNNING OPEN PLAN ENTERTAINMENT KITCHEN DINER – PERFECT FOR MODERN FAMILY LIVING
- GROUND FLOOR GUEST WC AND SEPARATE UTILITY ROOM
- SPACIOUS DUAL-ASPECT FAMILY LOUNGE WITH AMPLE NATURAL LIGHT
- AMPLE OFF-ROAD PARKING AND SINGLE GARAGE WITH STORAGE SPACE
- PLEASANTLY LANDSCAPED PRIVATE REAR GARDEN WITH GATED ACCESS
- MASTER BEDROOM WITH ENSUITE AND SEPARATE FAMILY BATHROOM
- REMAINING BUILDER’S WARRANTIES STILL AVAILABLE – VIEWING HIGHLY RECOMMENDED
Description
LEE COOKE eXp PRESENTS THIS 4 BEDROOM STUNNING MODERN DETACHED CORNER PLOT HOME – SEMI-RURAL LUXURY LIVING: REF LC1235
A lovely corner-plot modern detached family home situated on a pleasant semi-rural development in the ever-sought-after village of Penkridge, Staffordshire.
This property was built by Bloor Homes in 2023 and still benefits from remaining builders’ warranties.
The property is approached via a pleasant frontage with corner-plot gardens. Externally there is ample off-road parking to the rear, access to a single garage with upper storage and gated access leading to the pleasant enclosed rear garden.
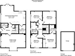
Internally the accommodation briefly comprises: an entrance hall, a ground-floor guest WC, and a superb open-plan entertainment kitchen-diner with sitting area and separate utility room. Also on the ground floor is a spacious dual-aspect family lounge providing excellent natural light and flexible living space. The first floor has a landing, four double bedrooms, with the master bedroom served by an ensuite and a separate modern family bathroom.
Location & Area
Penkridge is a thriving and historic Staffordshire village with an attractive market town feel. The village offers a good range of everyday amenities including independent shops, supermarkets, twice-weekly markets and a variety of cafés, pubs and restaurants, together with local doctors’ and dental services and community facilities. The village is served by Penkridge railway station and has easy road access to the M6 and M54 motorways, making regional travel straightforward.
Local favourites include Jaspers Village Bakery a well regarded local bakery popular with residents & TFM Farm & Country Superstore for rural and practical shopping needs.
VIEWING IS HIGHLY RECOMMENDED to fully appreciate the presentation, corner plot position and flexible family accommodation on offer.
FOR FURTHER DETAILS OR TO ARRANGE A VIEWING PLEASE CONTACT: LEE COOKE PERSONAL ESTATE AGENTS
ENTRANCE HALL
GROUND FLOOR GUEST WC
FAMILY LOUNGE (20'3" x 13'9" into bay)
ENTERTAINMENT KITCHEN DINER (20'2" x 14'7" max)
UTILITY ROOM (7'1" x 5'7")
FIRST FLOOR LANDING
BEDROOM ONE (10'8" x 11'7" plus wardrobes)
ENSUITE
BEDROOM TWO (10'9" x 11'0")
BEDROOM THREE (11'3" x 9'3")
BEDROOM FOUR (9'2" x 8'5") -
FAMILY BATHROOM
FRONT GARDEN
REAR GARDEN
GARAGE (WITH ELECTRIC)
2 x Power points, LED lighting and external security light.
Brochures
Brochure 1- COUNCIL TAXA payment made to your local authority in order to pay for local services like schools, libraries, and refuse collection. The amount you pay depends on the value of the property.Read more about council Tax in our glossary page.
- Band: E
- PARKINGDetails of how and where vehicles can be parked, and any associated costs.Read more about parking in our glossary page.
- Yes
- GARDENA property has access to an outdoor space, which could be private or shared.
- Yes
- ACCESSIBILITYHow a property has been adapted to meet the needs of vulnerable or disabled individuals.Read more about accessibility in our glossary page.
- Ask agent
Ash Close, Penkridge, Staffordshire
Add an important place to see how long it'd take to get there from our property listings.
__mins driving to your place
Get an instant, personalised result:
- Show sellers you’re serious
- Secure viewings faster with agents
- No impact on your credit score
Your mortgage
Notes
Staying secure when looking for property
Ensure you're up to date with our latest advice on how to avoid fraud or scams when looking for property online.
Visit our security centre to find out moreDisclaimer - Property reference S1477159. The information displayed about this property comprises a property advertisement. Rightmove.co.uk makes no warranty as to the accuracy or completeness of the advertisement or any linked or associated information, and Rightmove has no control over the content. This property advertisement does not constitute property particulars. The information is provided and maintained by eXp UK, West Midlands. Please contact the selling agent or developer directly to obtain any information which may be available under the terms of The Energy Performance of Buildings (Certificates and Inspections) (England and Wales) Regulations 2007 or the Home Report if in relation to a residential property in Scotland.
*This is the average speed from the provider with the fastest broadband package available at this postcode. The average speed displayed is based on the download speeds of at least 50% of customers at peak time (8pm to 10pm). Fibre/cable services at the postcode are subject to availability and may differ between properties within a postcode. Speeds can be affected by a range of technical and environmental factors. The speed at the property may be lower than that listed above. You can check the estimated speed and confirm availability to a property prior to purchasing on the broadband provider's website. Providers may increase charges. The information is provided and maintained by Decision Technologies Limited. **This is indicative only and based on a 2-person household with multiple devices and simultaneous usage. Broadband performance is affected by multiple factors including number of occupants and devices, simultaneous usage, router range etc. For more information speak to your broadband provider.
Map data ©OpenStreetMap contributors.





