Residential development for sale
Ridings Cottage, Bacup Road, Burnley, Lancashire, BB11
- PROPERTY TYPE
Residential Development
- BEDROOMS
5
- BATHROOMS
3
- SIZE
1,722 sq ft
160 sq m
Key features
- Stone cottage with outbuildings
- Situated in an elevated position with views over open countryside
- Full planning permission to create a desirable 5-bedroom house with gross internal area of 160m2
- Total plot - 0.31 hectares (0.76 acres) or thereabouts
- Planning Application Number - FUL/2024/0434
Description
Full planning consent has been granted by Burnley Borough Council (Application no FUL/2024/0434) for the 'demolition of the existing dwelling and associated outbuildings and the replacement with a new dwelling'.
This new dwelling has been designed with a unique layout to take advantage of the views across the open countryside and offer spacious living accommodation over two floors.
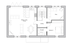
The ground floor consists of 3 double bedrooms, one with en-suite, a family bathroom, utility room and a single bedroom which would also be suited to a home office. The stairs lead to the first floor which boasts a large openplan kitchen, living and dining space, creating a room to bring the whole family together. A snug also provides for a quieter, cosy space. The master bedroom, with en-suite is also located on this floor.
This property offers the scope for the prospective purchaser to incorporate character into the property, whilst personalising it to their own taste (subject to the relevant planning requirements).
Location:
This plot provides an exciting opportunity to build your own home in a semi-rural yet accessible location close to the town of Burnley and its many amenities including supermarkets, shops, primary and secondary schools, restaurants and places of worship, making this property suitable for both families and the commuters.
Burnley 2.9 miles
Preston 26.6 miles
Manchester 33miles
(all distances are approx.)
Services: The property benefits from mains electricity and drainage is via a septic tank which we understand is not compliant with the general binding rules. The purchaser will be required to install their own borehole on the property for their own consumption. Please note that these services have not been tested by Ingham & Yorke LLP. It is the responsibility of the purchaser to satisfy themselves of the presence and working condition.
Restrictive Covenant: The property is sold subject to a restrictive covenant requiring that the property should be used for a single residential dwelling house only. The restrictive covenant will apply to successors in title.
Brochures
Sales ParticularsEnergy Performance Certificates
EPCRidings Cottage, Bacup Road, Burnley, Lancashire, BB11
NEAREST STATIONS
Distances are straight line measurements from the centre of the postcode- Burnley Manchester Road Station2.3 miles
- Burnley Central Station2.7 miles
- Burnley Barracks Station2.9 miles
Notes
Disclaimer - Property reference Ridingscottage2. The information displayed about this property comprises a property advertisement. Rightmove.co.uk makes no warranty as to the accuracy or completeness of the advertisement or any linked or associated information, and Rightmove has no control over the content. This property advertisement does not constitute property particulars. The information is provided and maintained by Ingham & Yorke, Lancashire. Please contact the selling agent or developer directly to obtain any information which may be available under the terms of The Energy Performance of Buildings (Certificates and Inspections) (England and Wales) Regulations 2007 or the Home Report if in relation to a residential property in Scotland.
Map data ©OpenStreetMap contributors.






