
6 bedroom detached house for sale
Offchurch Lane, Radford Semele Leamington Spa, Warwickshire CV31 1TN

- PROPERTY TYPE
Detached
- BEDROOMS
6
- BATHROOMS
3
- SIZE
2,688 sq ft
250 sq m
- TENUREDescribes how you own a property. There are different types of tenure - freehold, leasehold, and commonhold.Read more about tenure in our glossary page.
Freehold
Key features
- Close to town centre and surrounded by countryside
- Six double bedrooms and three bathrooms
- Open plan kitchen/ breakfast/family room
- Separate dining room
- Generous sized sitting room and separate snug/playroom
- Home office
- Beautifully landscaped mature rear garden
- Views to open countryside
- Triple garage and ample offroad parking
- Freehold | Council Tax Band - G | EPC - D
Description
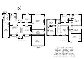
Ground Floor
The ground floor of this spacious home offers an abundance of flexible living space to suit most needs.
The kitchen/breakfast/family room to the left of the entrance hall is a wonderful space which is flooded with natural light from dual aspect windows and a skylight above. The kitchen offers everything you would expect from a modern family home with integrated appliances including double ovens and induction hob and opens out into a good-sized breakfast/family room to the front.
Four reception rooms to the right of the entrance hall provide living space which can be tailored to individual needs. The generous sized sitting room benefits from dual aspect windows overlooking the beautiful garden and countryside, whilst the dining room benefits from French doors leading out onto the terrace and garden beyond. Two further reception rooms at the front of the property are currently used as a snug which leads through into a home office but would also lend themselves well to a games/cinema room or a playroom for those with smaller children.
The ground floor also benefits for a w/c and a good-sized utility room located just off the kitchen with outside access to a single garage to the front and the garden to the rear.
First Floor
Stairs from the entrance hall lead to the first floor which comprises of six double bedrooms and three bathrooms.
The principal suite at the rear of the home consists of a good-sized double bedroom with built in wardrobes and an ensuite bathroom with shower.
Four of the five remaining bedrooms benefit from built in storage and all five are serviced by a generous sized family bathroom and an additional guest shower room. The family bathroom has been completed to a high standard with his and hers basins, custom built storage and vanity unit, a large walk in rain shower, w/c, chrome towel rail and a separate bath.
Outside
A raised terrace with pergola wraps around the rear of the property providing ample space for entertaining friends and family. Steps then lead down to the beautifully landscaped garden with mature trees and shrubs providing privacy and a tranquil space which blends in perfectly with the open countryside to the rear of the garden.
To the front of the property is a large block paved driveway with triple garaging providing ample parking for several vehicles.
Location
Radford Semele is a sought-after Warwickshire village nestled on the eastern edge of Royal Leamington Spa. It strikes a wonderful balance between village charm and town convenience, making it a popular choice for both families and downsizers alike.
At the heart of the village you’ll find The White Lion, a friendly and stylish pub serving locally sourced food and a great Sunday roast. There’s also a village shop for essentials, a respected primary school, and regular bus services into Leamington Spa.
Families will be pleased to know the property falls within catchment for several highly regarded schools, including Southam College and Campion School, with excellent private options also nearby such as Kingsley and Warwick School.
Commuters are exceptionally well-served. Leamington Spa train station is just over two miles away, with direct rail links to London Marylebone in around 70 minutes and regular services to Birmingham and Coventry. The M40 is within a 10-minute drive, connecting quickly to the M1, M6 and wider motorway network. Birmingham International Airport is also within easy reach, making this an ideal location for national and international travel.
For leisure and shopping, Leamington Spa town centre is just a few minutes away and offers a wide selection of independent boutiques, eateries, and cultural attractions. From beautiful green spaces like Jephson Gardens to popular gyms, cafes and a thriving arts scene, it’s a town that caters to every stage of life.
Freehold | Council Tax Band - G | EPC - D
Services, Utilities & Property Information
Utilities - The property is believed to be connected to mains electricity, water, drainage and gas.
Tenure - Freehold
Property Type - Detached House
Construction Type - Standard - brick & tile
Council Tax - Local Authority: Warwick County Council
Council Tax Band - G
Parking - Large block paved driveway for approximately 5 cars with a triple garage.
Mobile phone coverage - 4G mobile signal is available in the area - we advise you to check with your provider.
Internet connection - Superfast FTTC Broadband connection available- we advise you to check with your provider.
Directions - Postcode: CV31 1TN / what3words: ///joyously.sweeping.dramatic
Disclaimer
All measurements are approximate and quoted in metric with imperial equivalents and for general guidance only and whilst every attempt has been made to ensure accuracy, they must not be relied on.
The fixtures, fittings and appliances referred to have not been tested and therefore no guarantee can be given and that they are in working order.
Internal photographs are reproduced for general information and it must not be inferred that any item shown is included with the property.
Whilst we carryout our due diligence on a property before it is launched to the market and we endeavour to provide accurate information, buyers are advised to conduct their own due diligence.
Our information is presented to the best of our knowledge and should not solely be relied upon when making purchasing decisions. The responsibility for verifying aspects such as flood risk, easements, covenants and other property related details rests with the buyer.
Brochures
Brochure 1- COUNCIL TAXA payment made to your local authority in order to pay for local services like schools, libraries, and refuse collection. The amount you pay depends on the value of the property.Read more about council Tax in our glossary page.
- Band: G
- PARKINGDetails of how and where vehicles can be parked, and any associated costs.Read more about parking in our glossary page.
- Yes
- GARDENA property has access to an outdoor space, which could be private or shared.
- Yes
- ACCESSIBILITYHow a property has been adapted to meet the needs of vulnerable or disabled individuals.Read more about accessibility in our glossary page.
- Ask agent
Offchurch Lane, Radford Semele Leamington Spa, Warwickshire CV31 1TN
Add an important place to see how long it'd take to get there from our property listings.
__mins driving to your place
Get an instant, personalised result:
- Show sellers you’re serious
- Secure viewings faster with agents
- No impact on your credit score



Your mortgage
Notes
Staying secure when looking for property
Ensure you're up to date with our latest advice on how to avoid fraud or scams when looking for property online.
Visit our security centre to find out moreDisclaimer - Property reference RX663742. The information displayed about this property comprises a property advertisement. Rightmove.co.uk makes no warranty as to the accuracy or completeness of the advertisement or any linked or associated information, and Rightmove has no control over the content. This property advertisement does not constitute property particulars. The information is provided and maintained by Fine & Country, Leamington Spa. Please contact the selling agent or developer directly to obtain any information which may be available under the terms of The Energy Performance of Buildings (Certificates and Inspections) (England and Wales) Regulations 2007 or the Home Report if in relation to a residential property in Scotland.
*This is the average speed from the provider with the fastest broadband package available at this postcode. The average speed displayed is based on the download speeds of at least 50% of customers at peak time (8pm to 10pm). Fibre/cable services at the postcode are subject to availability and may differ between properties within a postcode. Speeds can be affected by a range of technical and environmental factors. The speed at the property may be lower than that listed above. You can check the estimated speed and confirm availability to a property prior to purchasing on the broadband provider's website. Providers may increase charges. The information is provided and maintained by Decision Technologies Limited. **This is indicative only and based on a 2-person household with multiple devices and simultaneous usage. Broadband performance is affected by multiple factors including number of occupants and devices, simultaneous usage, router range etc. For more information speak to your broadband provider.
Map data ©OpenStreetMap contributors.





