Office to lease
8 Clinton Terrace, Derby Road, NG7 1LY
- SIZE AVAILABLE
2,884 sq ft
268 sq m
- SECTOR
Office to lease
- USE CLASSUse class orders: Class E
E
Lease details
- Lease available date:
- Now
- Lease type:
- Short term
Key features
- Highly prominent 'own front door' office building with excellent car parking.
- 268 sq m (2,884 sq ft).
- 15 car parking spaces.
- Fully fitted.
- Immediately available.
- Overlooking The Park Estate.
- Available to rent on a short term lease for a maximum term of 2 years.
Description
The subject property fronts Derby Road (A52), close to its junction with Ilkeston Road and Canning Circus in Nottingham city centre.
The property provides easy access to the heart of Nottingham city centre, and the west of the city via Derby Road which links to the outer ring road.
The Property
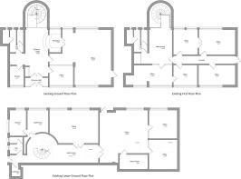
The property forms a detached office building with the two storey elevation fronting Derby Road and the rear three storey elevation overlooking The Park Estate.
The building offers a range of both open plan and cellular office accommodation centred around a central core and feature spiral staircase.
The property specification in general includes:-
- Dual access with prominent ground floor entrance
- Feature spiral staircase to lower ground floor and first floor offices
- A mix of open plan and cellular office accommodation
- Recently redecorated and fully cleaned carpeting finishers
- Gas central heating
- Suspended ceiling with inset lighting
Externally, the property has 15 car parking spaces and more could be available by way of separate negotiation.
Accommodation (NIA)
Lower Ground Floor: 125 sq m (1,345 sq ft)
Ground Floor: 71 sq m (764 sq ft)
First Floor: 72 sq m (775 sq ft)
TOTAL: 268 sq m (2,884 sq ft)
Tenure
The property is available to rent on a short term lease for a maximum term of 2 years.
Rent
£30,000 Per Annum
Business Rates
The property has the following rateable values:-
Lower Ground Floor £7,000
Ground & First Floor £9,400
The current UBR is 49.9p which would make a rates payable figure of:-
Lower Ground Floor £3,493
Ground & First Floor £4,960.60
100% Small Business Rates Relief should be applicable to qualifying parties.
Interested parties should satisfy themselves through the VOA if they have any questions relating to the Business Rates.
Planning
The property has planning for:-
E: (Commercial Business & Service) Offices
The building could be suitable for alternative uses such as:-
- Non-residential Creche, Day Centre or Nursery
- Research and Development
- Indoor Sport and Recreation such as a Gym
- State Funded School
- Retail
And subject to obtaining planning the property could also be used for:-
- Public Worship or Religious Instruction
VAT
VAT is applicable to the rent.
EPC
E - 111
Brochures
8 Clinton Terrace, Derby Road, NG7 1LY
NEAREST STATIONS
Distances are straight line measurements from the centre of the postcode- Nottingham Trent University Tram Stop0.5 miles
- Royal Centre Tram Stop0.5 miles
- High School Tram Stop0.5 miles
Notes
Disclaimer - Property reference 8-Clinton-Terrace. The information displayed about this property comprises a property advertisement. Rightmove.co.uk makes no warranty as to the accuracy or completeness of the advertisement or any linked or associated information, and Rightmove has no control over the content. This property advertisement does not constitute property particulars. The information is provided and maintained by heb Property Consultants, Nottingham. Please contact the selling agent or developer directly to obtain any information which may be available under the terms of The Energy Performance of Buildings (Certificates and Inspections) (England and Wales) Regulations 2007 or the Home Report if in relation to a residential property in Scotland.
Map data ©OpenStreetMap contributors.





