
House for sale
Thornfalcon, Taunton, Somerset, TA3

- PROPERTY TYPE
House
- SIZE
Ask agent
- TENUREDescribes how you own a property. There are different types of tenure - freehold, leasehold, and commonhold.Read more about tenure in our glossary page.
Freehold
Description
A detached cottage for renovation/rebuild together with stables and adjoining land.
Stable Cottage offers potential purchasers an excellent development opportunity. The property comprises a former groom’s cottage and ancilliary accommodation of part timber and part brick elevations under a fibre cement roof offered together with a range of stables and outbuildings. The property is set within its own land but is within easy reach of Taunton, the A358, and the Blackdown Hills National Landscape.
In all extending to 0.83 acre.
For sale by private treaty as a whole.
Location
Stable Cottage is situated in the hamlet of Thornfalcon about four miles to the east of the Somerset County Town of Taunton, and within easy reach of the A358, Junction 25 of the M5, and the Blackdown Hills National Landscape.
Property
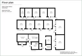
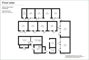
Stable Cottage is constructed of part timber and part brick elevations under a fibre cement roof. The property has in the past been occupied as two separate dwellings.
No.1 Stable Cottage offers accommodation comprising entrance hall, kitchen with adjoining sitting room with fireplace, two no. bedrooms, and a bathroom.
No. 2 Stable Cottage offers accommodation comprising kitchen/utility room with bathroom and rear hall and bedroom/sitting room on the first floor.
Outside, there are several timber and galvanised storage buildings/former kennels to the rear of the cottage, together with three-no. timber and fibre cement stable buildings which form a courtyard to the east of the cottage. These provide a stable block closest to the cottage with four boxes, a stable block with two no. double boxes, and a further stable block with four no. loose boxes. To the rear of the stable block is a dilapidated timber and galvanise pole barn.
The property is offered together with part of the paddock to the east and west of the property and extends in all to 0.83 of an acre.
Method of Sale
The property is offered for sale by private treaty with a guide price of £250,000.
Tenure & Possession
The freehold of the property is offered for sale with vacant possession available upon completion. The purchaser will be required to erect a new stock proof boundary fence along the southern boundary within six months of completion of the sale. The horse walker will be removed by the vendor.
Services
The property is serviced by mains electricity. Drainage is to a septic tank although potential purchasers should assume that a new treatment plant will need to be installed to service the property. Water is currently from a borehole situated within the vendor’s retained land to the south of the property. However, the property will not be sold with a right to use this supply, as there is a mains water supply in Greenway Lane close to the northern boundary of the property. The purchaser will therefore be required to establish their own water supply to service the property.
Health & Safety
Potential purchasers should take particular care when inspecting the property, being mindful of uneven and potentially slippery ground surfaces.
EPC Ratings
Stable Cottage has a current EPC rating of E.
Local Authority
Somerset Council
Viewings
Viewings are by appointment with the vendor’s selling agents, Carter Jonas, on .
Directions
Heading from Junction 25 of the M5 motorway, take the A358 towards Ilminster and Yeovil. As you enter Henlade on the A358, turn right onto Stoke Road. At the end of the road, turn left onto Greenway Lane. Follow this road for just over one mile and the property will be found on the right-hand side.
What 3 Words
/// insurance.shell.roving
Brochures
Particulars- COUNCIL TAXA payment made to your local authority in order to pay for local services like schools, libraries, and refuse collection. The amount you pay depends on the value of the property.Read more about council Tax in our glossary page.
- Band: TBC
- PARKINGDetails of how and where vehicles can be parked, and any associated costs.Read more about parking in our glossary page.
- Ask agent
- GARDENA property has access to an outdoor space, which could be private or shared.
- Yes
- ACCESSIBILITYHow a property has been adapted to meet the needs of vulnerable or disabled individuals.Read more about accessibility in our glossary page.
- Ask agent
Energy performance certificate - ask agent
Thornfalcon, Taunton, Somerset, TA3
Add an important place to see how long it'd take to get there from our property listings.
__mins driving to your place
Get an instant, personalised result:
- Show sellers you’re serious
- Secure viewings faster with agents
- No impact on your credit score
Your mortgage
Notes
Staying secure when looking for property
Ensure you're up to date with our latest advice on how to avoid fraud or scams when looking for property online.
Visit our security centre to find out moreDisclaimer - Property reference TAU250084. The information displayed about this property comprises a property advertisement. Rightmove.co.uk makes no warranty as to the accuracy or completeness of the advertisement or any linked or associated information, and Rightmove has no control over the content. This property advertisement does not constitute property particulars. The information is provided and maintained by Carter Jonas Rural, Taunton. Please contact the selling agent or developer directly to obtain any information which may be available under the terms of The Energy Performance of Buildings (Certificates and Inspections) (England and Wales) Regulations 2007 or the Home Report if in relation to a residential property in Scotland.
*This is the average speed from the provider with the fastest broadband package available at this postcode. The average speed displayed is based on the download speeds of at least 50% of customers at peak time (8pm to 10pm). Fibre/cable services at the postcode are subject to availability and may differ between properties within a postcode. Speeds can be affected by a range of technical and environmental factors. The speed at the property may be lower than that listed above. You can check the estimated speed and confirm availability to a property prior to purchasing on the broadband provider's website. Providers may increase charges. The information is provided and maintained by Decision Technologies Limited. **This is indicative only and based on a 2-person household with multiple devices and simultaneous usage. Broadband performance is affected by multiple factors including number of occupants and devices, simultaneous usage, router range etc. For more information speak to your broadband provider.
Map data ©OpenStreetMap contributors.






