
Willowbrook Farm House, Flawforth Lane, Ruddington, Nottingham, NG11

- PROPERTY TYPE
Detached
- BEDROOMS
7
- BATHROOMS
5
- SIZE
5,446 sq ft
506 sq m
- TENUREDescribes how you own a property. There are different types of tenure - freehold, leasehold, and commonhold.Read more about tenure in our glossary page.
Freehold
Key features
- An Outstanding Luxury Detached New Build Home
- Highly Regarded Rural Location
- High Specification Finish both Externally & Internally
- Approximately 4101sq.ft to the Main House
- Additional 2 Bedroom 1345sq.ft Detached Bungalow Included
- Glorious Grounds Extending to Circa 1.5 Acres
- Due for Completion Spring 2026
- Early Interest is Recommended to Contribute to Fit Out Decision Making
- No Upward Chain
- **CGI Video Available**
Description
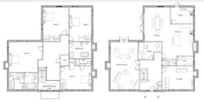
Willowbrook Farm House comes to the market offering what will be a fabulous Georgian style family home set within an exclusive gated community. Presenting the best of both, characterful and elegant in style yet boasting a host of modern conveniences, this is an ideal opportunity for those seeking a 21st Century home with period charm. Enjoying approximately 4104sq.ft of accommodation arranged over two floors, the practical layout caters perfectly for modern day living and, in brief, the ground floor comprises of: a statement entrance hall with galleried landing above, open plan living/ dining kitchen, formal lounge, snug, study, fitted utility room and WC. To the first floor, you’ll find the principal suite with dressing room and en-suite bathroom, 4 further bedrooms, 2 en-suite shower rooms and a family bathroom. Externally, there are circa 1.5 acres of privately gated grounds to enjoy, with formal landscaped gardens, entertaining patio, detached double garage and a generous paddock.
One of the key benefits to Willowbrook Farm House is undoubtedly the inclusion of an existing 1345sq.ft detached bungalow. Currently, it is perfectly suited as an annexe for dependant relatives, multi-generational living, older more independent children or simply as a guest house. Further development of this separate dwelling could offer great potential for leisure facilities or office space. In it’s current configuration, you’ll find a fantastic open-plan living/ dining kitchen, 2 double bedrooms, dressing area, family bathroom, fitted utility room, separate WC and dedicated garden space to 3 sides.
LOCATION
Ruddington is a vibrant village located on Nottingham’s southern fringe, with easy access to Keyworth, West Bridgford, Nottingham city centre, Queens Medical Centre, and the University of Nottingham. The nearby area of Edwalton is also highly desirable and offers premium schooling and amenities. The village is conveniently connected to both Nottingham and Leicester, with the M1 motorway and East Midlands Airport just 10 miles away.
DISTANCES
Nottingham City Centre 6 miles
Queens Medical Centre 5.5 miles
Derby City Centre 18 miles
Leicester City Centre 23 miles
Nottingham Railway Station 5.5 miles
East Midlands Parkway Station 9 miles
East Midlands Airport 12 miles
M1 Motorway J24 10 miles
SERVICES
Mains electricity, water and gas are understood to be connected. Drainage is provided via septic tank.
TENURE
Freehold.
VIEWINGS
Strictly by appointment with Fine & Country Nottingham. Contact Pavlo Jurkiw for further information.
- COUNCIL TAXA payment made to your local authority in order to pay for local services like schools, libraries, and refuse collection. The amount you pay depends on the value of the property.Read more about council Tax in our glossary page.
- Ask agent
- PARKINGDetails of how and where vehicles can be parked, and any associated costs.Read more about parking in our glossary page.
- Yes
- GARDENA property has access to an outdoor space, which could be private or shared.
- Yes
- ACCESSIBILITYHow a property has been adapted to meet the needs of vulnerable or disabled individuals.Read more about accessibility in our glossary page.
- Ask agent
Energy performance certificate - ask agent
Willowbrook Farm House, Flawforth Lane, Ruddington, Nottingham, NG11
Add an important place to see how long it'd take to get there from our property listings.
__mins driving to your place
Get an instant, personalised result:
- Show sellers you’re serious
- Secure viewings faster with agents
- No impact on your credit score
Your mortgage
Notes
Staying secure when looking for property
Ensure you're up to date with our latest advice on how to avoid fraud or scams when looking for property online.
Visit our security centre to find out moreDisclaimer - Property reference RX635911. The information displayed about this property comprises a property advertisement. Rightmove.co.uk makes no warranty as to the accuracy or completeness of the advertisement or any linked or associated information, and Rightmove has no control over the content. This property advertisement does not constitute property particulars. The information is provided and maintained by Fine & Country, Nottinghamshire. Please contact the selling agent or developer directly to obtain any information which may be available under the terms of The Energy Performance of Buildings (Certificates and Inspections) (England and Wales) Regulations 2007 or the Home Report if in relation to a residential property in Scotland.
*This is the average speed from the provider with the fastest broadband package available at this postcode. The average speed displayed is based on the download speeds of at least 50% of customers at peak time (8pm to 10pm). Fibre/cable services at the postcode are subject to availability and may differ between properties within a postcode. Speeds can be affected by a range of technical and environmental factors. The speed at the property may be lower than that listed above. You can check the estimated speed and confirm availability to a property prior to purchasing on the broadband provider's website. Providers may increase charges. The information is provided and maintained by Decision Technologies Limited. **This is indicative only and based on a 2-person household with multiple devices and simultaneous usage. Broadband performance is affected by multiple factors including number of occupants and devices, simultaneous usage, router range etc. For more information speak to your broadband provider.
Map data ©OpenStreetMap contributors.






