
3 bedroom end of terrace house for sale
Palgrave Road, Great Yarmouth

- PROPERTY TYPE
End of Terrace
- BEDROOMS
3
- BATHROOMS
2
- SIZE
Ask agent
- TENUREDescribes how you own a property. There are different types of tenure - freehold, leasehold, and commonhold.Read more about tenure in our glossary page.
Freehold
Key features
- Bathroom and Shower Room
- West Facing Garden
- Hall Entrance
- Two Bedrooms and Dressing Room
- Gas Central Heating
- North Great Yarmouth
Description
Beautifully Presented 2-Bedroom Home with Dressing Room & West-Facing Garden – North Great Yarmouth
Step inside this stylish and modern home, perfectly situated in the popular area of North Great Yarmouth. Boasting a high standard of finish throughout, this charming property offers spacious living with a flexible layout ideal for couples, small families, or anyone looking for a move-in ready home.
Key Features:
Two generous reception rooms, ideal for living and dining
A welcoming hall entrance with beautiful wooden flooring throughout
Modern downstairs bathroom plus an upstairs shower room for added convenience
Two double bedrooms and an additional dressing room – easily adaptable as a nursery or home office
West-facing rear garden, perfect for afternoon sun and evening relaxation
A versatile outbuilding offering excellent storage or potential workshop/studio space
Tastefully decorated and well-maintained, this home blends contemporary comfort with classic charm. The west-facing garden is a true highlight – a sunny retreat that’s perfect for entertaining, gardening, or unwinding after a long day.
Located close to local amenities, transport links, and schools, this property offers both comfort and convenience.
Viewings highly recommended – homes of this quality don’t stay on the market for long!
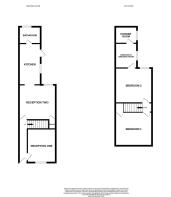
Entrance Hall
Wooden door giving access, wood style flooring, radiator, staircase to first floor, door through to
Reception One
11'10" x 9'4" (3.62m x 2.87m)
Fitted carpet, radiator, double glazed window, ceiling coving.
Reception Two
11'11" x 12'9" (3.65m x 3.91m)
Wooden flooring, radiator, double glazed window, built-in cupboard under the stairs, spotlights, opening to
Kitchen
13'7" x 7'10" (4.15m x 2.39m)
Wood style flooring, range of wall and base storage units and drawers, space for fridge/freezer, space for oven, cooker hood, one and a half bowl stainless steel sink and drainer with mixer tap, plumbing for washing machine, wall mounted boiler, double glazed window, spotlights, upright radiator, double glazed door to rear, integrated dishwasher, door to
Bathroom
7'9" x 4'6" (2.38m x 1.39m)
Vinyl flooring, low level w.c., hand wash basin, panelled bath with mixer tap and shower attachment, frosted double glazed window, heated towel rail.
First Floor Landing
Fitted carpet, doors off to
Bedroom One
10'8" x 12'9" (3.26m x 3.90m)
Fitted carpet, radiator, double glazed window, built-in cupboard, original cast iron fireplace.
Bedroom Two
12'9" x 12'0" (3.89m x 3.66m)
Wood style flooring, radiator, double glazed window, further radiator, opening through to
Bedroom Three/Dressing Room
6'6" x 5'7" (1.99m x 1.71m)
to the front of the wardrobes. Wood style flooring, radiator, double glazed window, door through to
Shower Room
5'10" x 7'8" (1.80m x 2.36m)
Tiled flooring, low level w.c., floating hand basin with mixer tap, shower cubicle with overhead shower and shower attachment, spotlights, double glazed window, built-in cupboards, heated towel rail.
Garden
Courtyard garden enclosed with brick wall, brick weave paving, access to timber shed outbuilding.
Disclaimer
Howards Estate Agents also offer a professional, ARLA accredited Lettings and Management Service. If you are considering renting your property in order to purchase, are looking at buy to let or would like a free review of your current portfolio then please call the Lettings Branch Manager on the number shown above.
Howards Estate Agents is the seller's agent for this property. Your conveyancer is legally responsible for ensuring any purchase agreement fully protects your position. We make detailed enquiries of the seller to ensure the information provided is as accurate as possible. Please inform us if you become aware of any information being inaccurate.
Brochures
Material InformationBrochure- COUNCIL TAXA payment made to your local authority in order to pay for local services like schools, libraries, and refuse collection. The amount you pay depends on the value of the property.Read more about council Tax in our glossary page.
- Ask agent
- PARKINGDetails of how and where vehicles can be parked, and any associated costs.Read more about parking in our glossary page.
- Ask agent
- GARDENA property has access to an outdoor space, which could be private or shared.
- Yes
- ACCESSIBILITYHow a property has been adapted to meet the needs of vulnerable or disabled individuals.Read more about accessibility in our glossary page.
- Ask agent
Palgrave Road, Great Yarmouth
Add an important place to see how long it'd take to get there from our property listings.
__mins driving to your place
Get an instant, personalised result:
- Show sellers you’re serious
- Secure viewings faster with agents
- No impact on your credit score
Your mortgage
Notes
Staying secure when looking for property
Ensure you're up to date with our latest advice on how to avoid fraud or scams when looking for property online.
Visit our security centre to find out moreDisclaimer - Property reference 0383_HOW038306463. The information displayed about this property comprises a property advertisement. Rightmove.co.uk makes no warranty as to the accuracy or completeness of the advertisement or any linked or associated information, and Rightmove has no control over the content. This property advertisement does not constitute property particulars. The information is provided and maintained by Howards, Great Yarmouth. Please contact the selling agent or developer directly to obtain any information which may be available under the terms of The Energy Performance of Buildings (Certificates and Inspections) (England and Wales) Regulations 2007 or the Home Report if in relation to a residential property in Scotland.
*This is the average speed from the provider with the fastest broadband package available at this postcode. The average speed displayed is based on the download speeds of at least 50% of customers at peak time (8pm to 10pm). Fibre/cable services at the postcode are subject to availability and may differ between properties within a postcode. Speeds can be affected by a range of technical and environmental factors. The speed at the property may be lower than that listed above. You can check the estimated speed and confirm availability to a property prior to purchasing on the broadband provider's website. Providers may increase charges. The information is provided and maintained by Decision Technologies Limited. **This is indicative only and based on a 2-person household with multiple devices and simultaneous usage. Broadband performance is affected by multiple factors including number of occupants and devices, simultaneous usage, router range etc. For more information speak to your broadband provider.
Map data ©OpenStreetMap contributors.





