Station Road, Newport, CB11

- PROPERTY TYPE
Semi-Detached
- BEDROOMS
4
- BATHROOMS
3
- SIZE
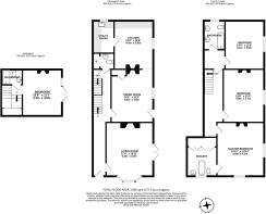
1,905 sq ft
177 sq m
- TENUREDescribes how you own a property. There are different types of tenure - freehold, leasehold, and commonhold.Read more about tenure in our glossary page.
Freehold
Key features
- Charming Victorian home offering over 1,900 sq ft of versatile living space across three floors
- Four double bedrooms, including a stylish basement suite with its own bathroom and private courtyard access
- Elegant reception rooms with original fireplaces, high ceilings, sash windows and garden views
- Detached guest annexe with vaulted ceiling, arched windows and French doors – ideal for Air B’n’B or studio use
- Secluded walled garden beautifully landscaped with mature planting, patio seating and lawn
- Prime village location just a short walk to Newport Station (direct to London), shops, schools and countryside
Description
Buriton House is a stunning and unique Victorian residence nestled in the heart of Newport, just a short stroll from local amenities and the train station, offering direct services to London and Cambridge. With over 1,900 sq ft of internal space, this charming period property features off-street parking, exquisite gardens, and a versatile detached guest annexe.
Spanning three floors, the house beautifully combines heritage character with contemporary flair. The inviting ground floor showcases a generous bay-fronted sitting room with an original fireplace, a formal dining room with garden access, and a distinctive kitchen/family area complete with a breakfast island, wood-burning stove, and adjoining utility room.
The lower ground floor boasts a spacious double bedroom with an en suite bathroom and private courtyard access via French doors — perfect for guests, older children, or a tranquil home office setup.
On the first floor, you'll find three well-proportioned double bedrooms, all rich in period detail, along with two bathrooms, including a striking principal suite featuring fitted storage and a private en suite with a luxurious roll-top bath.
Outside, the walled garden is an oasis of tranquillity, beautifully landscaped with gravelled seating areas, climbing roses, mature planting, and lush lawn. Tucked away is a delightful detached outbuilding with vaulted ceilings, arched windows, and French doors — currently thriving as a successful Airbnb suite but equally suited for guests, work, or hobbies.
This home perfectly blends character, comfort, and convenience in a prime village setting.
Agents Note:
Tenure: Freehold
Uttlesford District Council – Band E – £2,732.18 pa
EPC Band: E
Services: All Mains Services Connected.
Mobile Coverage: Good Coverage From All Major Networks (Ofcom)
Broadband Coverage: Ultrafast Available, 1,000 Mbps (Ofcom)
Location:
Newport is a large village in Essex near Saffron Walden. The village has a population of 2,352 at the 2011 census. Located approximately 41 miles north of London with a regular train service to London Liverpool Street and Cambridge from the train station. Newport is served by a handful of small businesses, such as a small independent petrol station and garage, a chemist, an Indian restaurant, a convenience store and a post office. A comprehensive co-educational secondary school is also located in the village, Joyce Frankland Academy.
EPC Rating: E
Parking - Off street
Disclaimer
Every care has been taken to ensure the accuracy of these details, however they do not form part of any offer or contract. All measurements, distances and areas are approximate and for guidance only. Prospective purchasers should not rely on these particulars and must satisfy themselves by inspection or otherwise.
Brochures
Property Brochure- COUNCIL TAXA payment made to your local authority in order to pay for local services like schools, libraries, and refuse collection. The amount you pay depends on the value of the property.Read more about council Tax in our glossary page.
- Band: E
- PARKINGDetails of how and where vehicles can be parked, and any associated costs.Read more about parking in our glossary page.
- Off street
- GARDENA property has access to an outdoor space, which could be private or shared.
- Private garden
- ACCESSIBILITYHow a property has been adapted to meet the needs of vulnerable or disabled individuals.Read more about accessibility in our glossary page.
- Ask agent
Energy performance certificate - ask agent
Station Road, Newport, CB11
Add an important place to see how long it'd take to get there from our property listings.
__mins driving to your place
Get an instant, personalised result:
- Show sellers you’re serious
- Secure viewings faster with agents
- No impact on your credit score
About Pottrill Holland Property Agents, Saffron Walden
Office 5, The Granary, Compass Courtyard, Clanver End, CB11 4UL.

Affordability
Notes
Staying secure when looking for property
Ensure you're up to date with our latest advice on how to avoid fraud or scams when looking for property online.
Visit our security centre to find out moreDisclaimer - Property reference 0caaaa5f-f4e9-41bf-aefc-fff1ee7271c3. The information displayed about this property comprises a property advertisement. Rightmove.co.uk makes no warranty as to the accuracy or completeness of the advertisement or any linked or associated information, and Rightmove has no control over the content. This property advertisement does not constitute property particulars. The information is provided and maintained by Pottrill Holland Property Agents, Saffron Walden. Please contact the selling agent or developer directly to obtain any information which may be available under the terms of The Energy Performance of Buildings (Certificates and Inspections) (England and Wales) Regulations 2007 or the Home Report if in relation to a residential property in Scotland.
*This is the average speed from the provider with the fastest broadband package available at this postcode. The average speed displayed is based on the download speeds of at least 50% of customers at peak time (8pm to 10pm). Fibre/cable services at the postcode are subject to availability and may differ between properties within a postcode. Speeds can be affected by a range of technical and environmental factors. The speed at the property may be lower than that listed above. You can check the estimated speed and confirm availability to a property prior to purchasing on the broadband provider's website. Providers may increase charges. The information is provided and maintained by Decision Technologies Limited. **This is indicative only and based on a 2-person household with multiple devices and simultaneous usage. Broadband performance is affected by multiple factors including number of occupants and devices, simultaneous usage, router range etc. For more information speak to your broadband provider.
Map data ©OpenStreetMap contributors.




