Laxford Close, Balsall Heath

- PROPERTY TYPE
Terraced
- BEDROOMS
3
- BATHROOMS
1
- SIZE
Ask agent
- TENUREDescribes how you own a property. There are different types of tenure - freehold, leasehold, and commonhold.Read more about tenure in our glossary page.
Freehold
Key features
- Three Bedrooms
- Two Reception Rooms
- Fitted Kitchen
- Modernised
- First Floor Bathroom
- Loft Room
- Ideal Family Home
- Immediate Viewings Available
- Excellent Location
- Close to all Amenities
Description
Approach
Featuring a neatly maintained lawn with a paved pathway leading to the front entrance, creating a welcoming first impression.
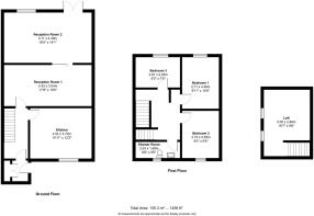
Accommodation on the Ground Floor
Entrance via a glazed door into hallway:
Kitchen – Located at the front of the property, featuring fitted units with ample storage, tiled flooring, a central heating radiator, and a window overlooking the front garden.
Reception Room One – A spacious living area featuring laminate flooring, spotlights, and a central heating radiator, with double doors leading into reception room two, creating an open and flexible layout ideal for family living and entertaining.
Reception Room Two – An extended and modernised living space featuring skylights that flood the room with natural light, a stylish media wall, and a large window overlooking the garden. Sliding doors open directly onto the rear garden, creating a seamless indoor-outdoor flow.
Accommodation on the First Floor
Bedroom One – A spacious double bedroom situated at the rear of the property, serving as the master bedroom and featuring a central heating radiator and ample space for furnishings.
Bedroom Two – Located at the front of the property, featuring carpeted flooring and a central heating radiator, offering a comfortable and inviting space.
Bedroom Three – Situated at the rear of the property, this single bedroom is ideal for use as a child’s room or home office, offering a versatile and functional space.
Shower Room – Finished to a modern standard, featuring a walk-in shower, toilet, wash basin, heated towel rail, and a window providing natural light, all complemented by stylish tiled walls and flooring.
Accommodation on the Second Floor
Loft Room – Carpeted and currently used as a bedroom, this versatile space also offers potential for storage.
Outside
Garden – Featuring a slabbed area and two storage sheds, providing a practical, low-maintenance space perfect for relaxing or outdoor activities.
EPC - C
General Information Tenure - we are informed that the tenure of the property is Freehold. However, any interested parties are strongly recommended to have this information verified by their Solicitor or Surveyor at the earliest opportunity. Please consult us for further details.
Money Laundering Regulation - Intending purchasers will be asked to produce identification documentation at a later stage and we would ask for your co-operation in order that there will be no delay in agreeing the sale.
Consumer Protection from Unfair Trading Regulations 2008
The Agent has not tested any apparatus, equipment, fixtures and fittings or services and so cannot verify that they are in working order or fit for the purpose. A Buyer is advised to obtain verification from their Solicitor or Surveyor. References to the Tenure of a Property are based on information supplied by the Seller. The Agent has not had sight of the title documents. A Buyer is advised to obtain verification from their Solicitor. Items shown in photographs are NOT included unless specifically mentioned within the sales particulars. They may however be available by separate negotiation. Buyers must check the availability of any property and make an appointment to view before embarking on any journey to see a property.
- COUNCIL TAXA payment made to your local authority in order to pay for local services like schools, libraries, and refuse collection. The amount you pay depends on the value of the property.Read more about council Tax in our glossary page.
- Ask agent
- PARKINGDetails of how and where vehicles can be parked, and any associated costs.Read more about parking in our glossary page.
- Ask agent
- GARDENA property has access to an outdoor space, which could be private or shared.
- Yes
- ACCESSIBILITYHow a property has been adapted to meet the needs of vulnerable or disabled individuals.Read more about accessibility in our glossary page.
- Ask agent
Laxford Close, Balsall Heath
Add an important place to see how long it'd take to get there from our property listings.
__mins driving to your place
Get an instant, personalised result:
- Show sellers you’re serious
- Secure viewings faster with agents
- No impact on your credit score
Your mortgage
Notes
Staying secure when looking for property
Ensure you're up to date with our latest advice on how to avoid fraud or scams when looking for property online.
Visit our security centre to find out moreDisclaimer - Property reference 2845. The information displayed about this property comprises a property advertisement. Rightmove.co.uk makes no warranty as to the accuracy or completeness of the advertisement or any linked or associated information, and Rightmove has no control over the content. This property advertisement does not constitute property particulars. The information is provided and maintained by Midland Housing Ltd, Birmingham. Please contact the selling agent or developer directly to obtain any information which may be available under the terms of The Energy Performance of Buildings (Certificates and Inspections) (England and Wales) Regulations 2007 or the Home Report if in relation to a residential property in Scotland.
*This is the average speed from the provider with the fastest broadband package available at this postcode. The average speed displayed is based on the download speeds of at least 50% of customers at peak time (8pm to 10pm). Fibre/cable services at the postcode are subject to availability and may differ between properties within a postcode. Speeds can be affected by a range of technical and environmental factors. The speed at the property may be lower than that listed above. You can check the estimated speed and confirm availability to a property prior to purchasing on the broadband provider's website. Providers may increase charges. The information is provided and maintained by Decision Technologies Limited. **This is indicative only and based on a 2-person household with multiple devices and simultaneous usage. Broadband performance is affected by multiple factors including number of occupants and devices, simultaneous usage, router range etc. For more information speak to your broadband provider.
Map data ©OpenStreetMap contributors.




