Heath Road, Wivenhoe

- PROPERTY TYPE
Semi-Detached
- BEDROOMS
3
- BATHROOMS
2
- SIZE
Ask agent
- TENUREDescribes how you own a property. There are different types of tenure - freehold, leasehold, and commonhold.Read more about tenure in our glossary page.
Freehold
Key features
- Three Bedroom Semi-Detached
- 23ft Lounge/Diner
- Kitchen
- Ground Floor Cloakroom/Shower Room
- First Floor Shower Room
- Gas Central Heating (not tested by Elms Price and Co)
- Double Glazing
- Front and Rear Gardens
- Detached Garage and Off Road Parking
- No Chain
Description
Double glazed entrance door to:
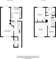
ENTRANCE HALL Stairs to first floor, storage cupboard, radiator.
CLOAKROOM/SHOWER ROOM WC and wash basin, walk-in shower, double glazed obscure window to side, heated towel rail.
LOUNGE/DINER 23'2 x 10'5 reducing to 8'6 Double glazed window to rear, double glazed French doors to rear garden, two radiators.
KITCHEN 10'4 x 8'9 Double glazed window to rear, double glazed door to rear, wall mounted gas boiler (not tested by Elms Price and Co), base and eye level units, stainless steel sink set into work surface, plumbing for washing machine, larder cupboard.
FIRST FLOOR LANDING Double glazed window to side, loft hatch.
BEDROOM 11'10 x 10' Double glazed window to front, radiator.
BEDROOM 9'9 x 8'6 Double glazed window to rear, two built-in storage cupboards, radiator.
BEDROOM 8'5 x 7'5 Double glazed window to front, radiator.
SHOWER ROOM Double glazed obscure window to rear, WC, wash basin and shower cubicle, heated towel rail, airing cupboard housing hot water tank.
OUTSIDE To the front is an area of shingle, block paved area providing off road parking.
Shared driveway to side giving access to detached garage.
Side gate to rear garden.
The rear garden has patio, area of laid lawn, flowers and shrubs, further patio area to rear of garden.
Detached garage with up and over door, power and lighting, double glazed door to side.
ADDITIONAL INFORMATION Council tax band : C.
Local authority : Colchester City Council.
Energy rating : D.
- COUNCIL TAXA payment made to your local authority in order to pay for local services like schools, libraries, and refuse collection. The amount you pay depends on the value of the property.Read more about council Tax in our glossary page.
- Band: C
- PARKINGDetails of how and where vehicles can be parked, and any associated costs.Read more about parking in our glossary page.
- Garage,Off street
- GARDENA property has access to an outdoor space, which could be private or shared.
- Yes
- ACCESSIBILITYHow a property has been adapted to meet the needs of vulnerable or disabled individuals.Read more about accessibility in our glossary page.
- Ask agent
Energy performance certificate - ask agent
Heath Road, Wivenhoe
Add an important place to see how long it'd take to get there from our property listings.
__mins driving to your place
Get an instant, personalised result:
- Show sellers you’re serious
- Secure viewings faster with agents
- No impact on your credit score
Your mortgage
Notes
Staying secure when looking for property
Ensure you're up to date with our latest advice on how to avoid fraud or scams when looking for property online.
Visit our security centre to find out moreDisclaimer - Property reference 101610007162. The information displayed about this property comprises a property advertisement. Rightmove.co.uk makes no warranty as to the accuracy or completeness of the advertisement or any linked or associated information, and Rightmove has no control over the content. This property advertisement does not constitute property particulars. The information is provided and maintained by Elms Price & Co, Wivenhoe. Please contact the selling agent or developer directly to obtain any information which may be available under the terms of The Energy Performance of Buildings (Certificates and Inspections) (England and Wales) Regulations 2007 or the Home Report if in relation to a residential property in Scotland.
*This is the average speed from the provider with the fastest broadband package available at this postcode. The average speed displayed is based on the download speeds of at least 50% of customers at peak time (8pm to 10pm). Fibre/cable services at the postcode are subject to availability and may differ between properties within a postcode. Speeds can be affected by a range of technical and environmental factors. The speed at the property may be lower than that listed above. You can check the estimated speed and confirm availability to a property prior to purchasing on the broadband provider's website. Providers may increase charges. The information is provided and maintained by Decision Technologies Limited. **This is indicative only and based on a 2-person household with multiple devices and simultaneous usage. Broadband performance is affected by multiple factors including number of occupants and devices, simultaneous usage, router range etc. For more information speak to your broadband provider.
Map data ©OpenStreetMap contributors.







