3 bedroom semi-detached house for sale
Rosewood Avenue, Higher Walton

- PROPERTY TYPE
Semi-Detached
- BEDROOMS
3
- BATHROOMS
1
- SIZE
Ask agent
- TENUREDescribes how you own a property. There are different types of tenure - freehold, leasehold, and commonhold.Read more about tenure in our glossary page.
Freehold
Key features
- LP1346
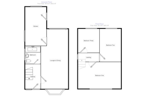
- Three well-proportioned bedrooms
- Open-plan lounge and dining room
- Family bathroom
- Generous rear garden, ideal for families and entertaining
- Driveway providing off-road parking
- Garage
- Walking distance to a popular primary school
- Neutral décor — ready to move straight in
- Situated in a quiet, family-friendly neighbourhood
Description
Welcome to this charming three-bedroom semi-detached property, perfectly positioned in a highly sought-after area. This lovely home offers the ideal blend of space, comfort, and convenience — perfect for families, first-time buyers, or those looking to move up the property ladder.
Step inside to discover a bright and spacious open-plan lounge and dining area, creating a warm and inviting space ideal for both relaxing evenings and entertaining guests. The layout flows effortlessly into a well-appointed kitchen, offering ample storage and workspace.
Upstairs, you’ll find three good-sized bedrooms, each offering plenty of natural light and flexibility for family living, a home office, or guest accommodation.
Outside, the property boasts a generous rear garden, providing the perfect setting for outdoor dining, play, or simply enjoying the sunshine.
Located in a desirable residential area, this home is ideally situated within easy reach of local amenities, transport links, and a highly regarded primary school, making it an excellent choice for families.
*LP1346
About Higher Walton, Preston
Nestled on the outskirts of Preston, Higher Walton is a charming and well-connected village that perfectly combines peaceful rural living with easy access to modern conveniences. Popular with families, professionals, and retirees alike, the area offers a welcoming community atmosphere and an excellent quality of life.
The village itself boasts a great range of local amenities, including independent shops, cafés, pubs, and everyday essentials, all within easy reach. For families, highly regarded local schools are close by, making it an ideal place to settle and grow.
Higher Walton enjoys excellent transport links, with quick access to the A6, M6, and M65, providing convenient routes to Preston, Blackburn, and beyond. Regular public transport options also make commuting straightforward.
Nature lovers will appreciate the abundance of nearby countryside walks and green spaces, with the River Darwen and surrounding fields offering plenty of scenic routes for dog walking or weekend strolls.
Disclaimer – Every care has been taken with the preparation of the property details; complete accuracy cannot be guaranteed. These property details do not constitute a contract. We are unable to confirm whether certain items included with the property are in full working order. Any prospective buyer must satisfy themselves as to the condition of any particular item, as we have no authority to make any guarantees in any regard. All dimensions are approximate. Details provided within these property particulars are subject to potential errors, but have been approved by the vendor(s) and in any event, errors and omissions are excepted. In the event of any structural changes or developments to the property, any prospective buyer should seek clarification from the appropriate planning or building control departments. Prospective buyers should seek clarification from their solicitor or verify the tenure of this property for themselves.
*LP1346
- COUNCIL TAXA payment made to your local authority in order to pay for local services like schools, libraries, and refuse collection. The amount you pay depends on the value of the property.Read more about council Tax in our glossary page.
- Band: C
- PARKINGDetails of how and where vehicles can be parked, and any associated costs.Read more about parking in our glossary page.
- Garage,Driveway
- GARDENA property has access to an outdoor space, which could be private or shared.
- Private garden
- ACCESSIBILITYHow a property has been adapted to meet the needs of vulnerable or disabled individuals.Read more about accessibility in our glossary page.
- Ask agent
Rosewood Avenue, Higher Walton
Add an important place to see how long it'd take to get there from our property listings.
__mins driving to your place
Get an instant, personalised result:
- Show sellers you’re serious
- Secure viewings faster with agents
- No impact on your credit score
Your mortgage
Notes
Staying secure when looking for property
Ensure you're up to date with our latest advice on how to avoid fraud or scams when looking for property online.
Visit our security centre to find out moreDisclaimer - Property reference S1480824. The information displayed about this property comprises a property advertisement. Rightmove.co.uk makes no warranty as to the accuracy or completeness of the advertisement or any linked or associated information, and Rightmove has no control over the content. This property advertisement does not constitute property particulars. The information is provided and maintained by eXp UK, North West. Please contact the selling agent or developer directly to obtain any information which may be available under the terms of The Energy Performance of Buildings (Certificates and Inspections) (England and Wales) Regulations 2007 or the Home Report if in relation to a residential property in Scotland.
*This is the average speed from the provider with the fastest broadband package available at this postcode. The average speed displayed is based on the download speeds of at least 50% of customers at peak time (8pm to 10pm). Fibre/cable services at the postcode are subject to availability and may differ between properties within a postcode. Speeds can be affected by a range of technical and environmental factors. The speed at the property may be lower than that listed above. You can check the estimated speed and confirm availability to a property prior to purchasing on the broadband provider's website. Providers may increase charges. The information is provided and maintained by Decision Technologies Limited. **This is indicative only and based on a 2-person household with multiple devices and simultaneous usage. Broadband performance is affected by multiple factors including number of occupants and devices, simultaneous usage, router range etc. For more information speak to your broadband provider.
Map data ©OpenStreetMap contributors.




