
Dittons Road, PEVENSEY, East Sussex, BN24
- PROPERTY TYPE
Land
- SIZE
Ask agent
Description
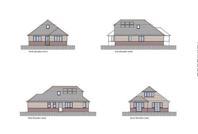
A rare opportunity to acquire a substantial plot of land with full planning permission granted for the construction of two detached chalet-style homes (Planning Reference: WD/2021/0738/F).
The site offers excellent potential for developers or investors seeking a high-quality residential project in a desirable location. The proposed dwellings have been thoughtfully designed to provide well-proportioned accommodation and generous plots.
Given the scarcity of development opportunities of this nature, we anticipate strong demand and early viewing is highly recommended.
Plot 1 - (West side) Footings in place,currently designated as self build.
Plot 2 - (East side) CIL paid.
GDV £1,100,00.00
Dittons Road, PEVENSEY, East Sussex, BN24
NEAREST STATIONS
Distances are straight line measurements from the centre of the postcode- Polegate Station1.4 miles
- Hampden Park Station1.8 miles
- Pevensey & Westham Station2.1 miles



Notes
Disclaimer - Property reference MEE250355. The information displayed about this property comprises a property advertisement. Rightmove.co.uk makes no warranty as to the accuracy or completeness of the advertisement or any linked or associated information, and Rightmove has no control over the content. This property advertisement does not constitute property particulars. The information is provided and maintained by Freeman Forman, Eastbourne. Please contact the selling agent or developer directly to obtain any information which may be available under the terms of The Energy Performance of Buildings (Certificates and Inspections) (England and Wales) Regulations 2007 or the Home Report if in relation to a residential property in Scotland.
Map data ©OpenStreetMap contributors.





