
3 bedroom semi-detached house for sale
Danesway, Doncaster

- PROPERTY TYPE
Semi-Detached
- BEDROOMS
3
- BATHROOMS
1
- SIZE
Ask agent
- TENUREDescribes how you own a property. There are different types of tenure - freehold, leasehold, and commonhold.Read more about tenure in our glossary page.
Freehold
Description
Perfect for a speculator or investor a good sized 3 bedroom semi detached house. Nice cul-de-sac position with an outlook over fields to the rear. GCH & PVC double glazing it briefly comprises: Entrance hall, lounge, large dining kitchen, rear lobby, first floor landing, 3 bedrooms and a bathroom. outside are front and rear gardens and a shared drive to a garage. Popular area with good access to local schools, shops and access to the A1 and motorway networks. PRICED TO SELL.
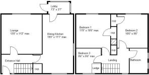
Accommodation - A double glazed entrance door with side screen leads into the entrance hall.
Entrance Hall - This has a staircase leading to the first floor, coving, a ceiling light, a central heating radiator and a door which leads into the lounge.
Lounge - 3.96m x 3.40m (13'0" x 11'2") - This is a good sized room having a PVC double glazed window to the rear, coving and a central ceiling light.
A second door from the entrance hall lead into the dining kitchen.
Dining Kitchen - 5.79m x 3.38m max (19'0" x 11'1" max) - Range of wall and base units with a roll edge work surface over which incorporates a single drainer stainless steel sink unit. There is plumbing for a washing machine, room for a tumble dryer, a central heating radiator, two PVC double glazed windows to the front and side elevations, a deep built-in understairs storage cupboard and a door to the far end leads into the rear lobby.
Rear Lobby - This has two PVC double glazed windows to the side and rear and a timber door which gives access to the garden.
As previously described a staircase leads from the entrance hall to the first floor accommodation.
Landing - There is a PVC double glazed window to the front, a built-in cupboard and doors to the bedrooms and bathroom.
Bedroom 1 - 3.58m x 3.20m (11'9" x 10'6") - A double bedroom having a PVC double glazed window to the rear, a central heating radiator, a built-in cupboard and a ceiling light.
Bedroom 2 - 3.20m x 2.90m (10'6" x 9'6") - Again, another good sized double bedroom having a PVC double glazed window to the rear, a central heating radiator and a built-in cupboard.
Bedroom 3 - 2.54m max x 2.54m max (8'4" max x 8'4" max ) - A single bedroom with a PVC double glazed window , a central heating radiator and a ceiling light.
Bathroom - Fitted with a shower style bath, a wash basin and a low flush wc. There are two PVC double glazed windows, a central heating radiator and a central ceiling light.
Outside - To the front of the property there is an enclosed lawned garden with brick walling to the perimeters, a shared driveway provides car standing and in turn leads to the sectional garage.
Garage - With twin opening doors.
Rear Garden - There is an enclosed lawned garden with pebbled borders and a pleasant more open outlook over a playing field beyond.
Agents Notes: - TENURE - FREEHOLD - CONSTRUCTION - THE PROPERTY IS OF NON-STANDARD CONSTRUCTION.
SERVICES - All mains services are connected.
DOUBLE GLAZING - PVC double glazing, where stated. Age of units various.
HEATING - Gas radiator central heating. Age of boiler TBC
COUNCIL TAX - Band A
BROADBAND - Ultrafast broadband is available with download speeds of up to xxxx mbps and upload speeds of up to xxxx mbps.
MOBILE COVERAGE - Coverage is available with EE, Three, 02 and Vodafone.
VIEWING - By prior telephone appointment with horton knights estate agents.
MEASUREMENTS - Please note all measurements are approximate and for guidance purposes only, with a six inch tolerance. Therefore please do NOT rely upon them for carpet measurements, furniture and the like. Similarly, the floor plan is designed as a visual reference and is NOT a scale drawing.
PROPERTY PARTICULARS - We endeavour to make our property particulars accurate and reliable, however if there is a point that is especially important to you, please contact ourselves prior to exchange of contracts, so that we may further clarify that point. We DO NOT give any warranty to the suitability of any part, including fixtures and fittings of this property, prospective buyers are kindly asked to take specific advice from their professional advisors.
OPENING HOURS - Monday - Friday 9:00 - 5:30 Saturday 9:00 - 3:00 Sunday
INDEPENDENT MORTGAGE ADVICE - With so many mortgage options to choose from, how do you know your getting the best deal? Quite simply...YOU DON'T. Talk to an expert. We offer uncomplicated impartial advice. Call us today: .
FREE VALUATIONS - If you need to sell a house then please take advantage of our FREE VALUATION service, contact our Doncaster Office for a prompt and efficient service.
Brochures
Danesway, DoncasterBrochure- COUNCIL TAXA payment made to your local authority in order to pay for local services like schools, libraries, and refuse collection. The amount you pay depends on the value of the property.Read more about council Tax in our glossary page.
- Band: A
- PARKINGDetails of how and where vehicles can be parked, and any associated costs.Read more about parking in our glossary page.
- Driveway
- GARDENA property has access to an outdoor space, which could be private or shared.
- Yes
- ACCESSIBILITYHow a property has been adapted to meet the needs of vulnerable or disabled individuals.Read more about accessibility in our glossary page.
- Ask agent
Danesway, Doncaster
Add an important place to see how long it'd take to get there from our property listings.
__mins driving to your place
Get an instant, personalised result:
- Show sellers you’re serious
- Secure viewings faster with agents
- No impact on your credit score



Your mortgage
Notes
Staying secure when looking for property
Ensure you're up to date with our latest advice on how to avoid fraud or scams when looking for property online.
Visit our security centre to find out moreDisclaimer - Property reference 34261087. The information displayed about this property comprises a property advertisement. Rightmove.co.uk makes no warranty as to the accuracy or completeness of the advertisement or any linked or associated information, and Rightmove has no control over the content. This property advertisement does not constitute property particulars. The information is provided and maintained by Horton Knights, Doncaster. Please contact the selling agent or developer directly to obtain any information which may be available under the terms of The Energy Performance of Buildings (Certificates and Inspections) (England and Wales) Regulations 2007 or the Home Report if in relation to a residential property in Scotland.
*This is the average speed from the provider with the fastest broadband package available at this postcode. The average speed displayed is based on the download speeds of at least 50% of customers at peak time (8pm to 10pm). Fibre/cable services at the postcode are subject to availability and may differ between properties within a postcode. Speeds can be affected by a range of technical and environmental factors. The speed at the property may be lower than that listed above. You can check the estimated speed and confirm availability to a property prior to purchasing on the broadband provider's website. Providers may increase charges. The information is provided and maintained by Decision Technologies Limited. **This is indicative only and based on a 2-person household with multiple devices and simultaneous usage. Broadband performance is affected by multiple factors including number of occupants and devices, simultaneous usage, router range etc. For more information speak to your broadband provider.
Map data ©OpenStreetMap contributors.





