
Wiltshire Drive, Patterdown, Chippenham

- PROPERTY TYPE
Terraced
- BEDROOMS
3
- BATHROOMS
1
- SIZE
904 sq ft
84 sq m
Description
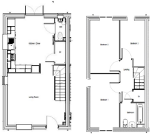
This attractive two-storey share of equity home is perfectly designed for modern family living. The ground floor features an open-plan kitchen and dining area, ideal for both everyday meals and entertaining guests and opens directly onto the private, enclosed rear garden — perfect for relaxing or hosting outdoors. A separate living room and convenient downstairs cloakroom completes the ground floor space.
Upstairs, you'll find a generously sized primary bedroom, two additional bedrooms, and a well-appointed family bathroom, offering comfortable and versatile living space for growing families or those working from home.
Externally, the property benefits from a private garden and an allocated parking space, adding to the practicality and appeal of this beautiful home.
All applicants must read Key Information and Policies before applying.
Situation - Chippenham - Chippenham itself has a wide range of amenities to include High Street retailers plus supermarkets and retail parks and, in addition, there is a leisure centre with indoor swimming pool, library, cinema and public parks. Chippenham also benefits from excellent schooling with numerous primary and three highly sought after secondary schools. For those wishing to commute there is also a regular main line rail service from Chippenham station to London (Paddington) and the West Country and the M4 motorway is easily accessed via Junction 17 a few miles north of the town.
Property Information - Utilities/Services - Mains Electric, Water & Drainage, Gas Central Heating
Wiltshire Council Tax - Band C
Tenure - Leasehold
Share Equity - Plot 31 OMV: £335,000 Share: 40% share (£134,000) Rent: £460.63 per month Service charges: £29.82 per month
Brochures
Wiltshire Drive, Patterdown, ChippenhamBrochure- COUNCIL TAXA payment made to your local authority in order to pay for local services like schools, libraries, and refuse collection. The amount you pay depends on the value of the property.Read more about council Tax in our glossary page.
- Band: C
- PARKINGDetails of how and where vehicles can be parked, and any associated costs.Read more about parking in our glossary page.
- Off street
- GARDENA property has access to an outdoor space, which could be private or shared.
- Yes
- ACCESSIBILITYHow a property has been adapted to meet the needs of vulnerable or disabled individuals.Read more about accessibility in our glossary page.
- Ask agent
Wiltshire Drive, Patterdown, Chippenham
Add an important place to see how long it'd take to get there from our property listings.
__mins driving to your place
Get an instant, personalised result:
- Show sellers you’re serious
- Secure viewings faster with agents
- No impact on your credit score
Your mortgage
Notes
Staying secure when looking for property
Ensure you're up to date with our latest advice on how to avoid fraud or scams when looking for property online.
Visit our security centre to find out moreDisclaimer - Property reference 34261155. The information displayed about this property comprises a property advertisement. Rightmove.co.uk makes no warranty as to the accuracy or completeness of the advertisement or any linked or associated information, and Rightmove has no control over the content. This property advertisement does not constitute property particulars. The information is provided and maintained by Atwell Martin, Chippenham. Please contact the selling agent or developer directly to obtain any information which may be available under the terms of The Energy Performance of Buildings (Certificates and Inspections) (England and Wales) Regulations 2007 or the Home Report if in relation to a residential property in Scotland.
*This is the average speed from the provider with the fastest broadband package available at this postcode. The average speed displayed is based on the download speeds of at least 50% of customers at peak time (8pm to 10pm). Fibre/cable services at the postcode are subject to availability and may differ between properties within a postcode. Speeds can be affected by a range of technical and environmental factors. The speed at the property may be lower than that listed above. You can check the estimated speed and confirm availability to a property prior to purchasing on the broadband provider's website. Providers may increase charges. The information is provided and maintained by Decision Technologies Limited. **This is indicative only and based on a 2-person household with multiple devices and simultaneous usage. Broadband performance is affected by multiple factors including number of occupants and devices, simultaneous usage, router range etc. For more information speak to your broadband provider.
Map data ©OpenStreetMap contributors.









