
The Orchard, Ladylea Road, Horsley, Derby

- PROPERTY TYPE
Barn Conversion
- BEDROOMS
4
- BATHROOMS
3
- SIZE
2,306 sq ft
214 sq m
- TENUREDescribes how you own a property. There are different types of tenure - freehold, leasehold, and commonhold.Read more about tenure in our glossary page.
Freehold
Key features
- Impressive Spacious Barn
- Approximately 2306 sq ft
- Spacious & Superbly Appointed
- Extensive Front Garden & Generously Sized Driveway
- Sought After Village Location
- Set Amidst Beautiful Open Countryside
- Spacious Open Plan living Kitchen
- Four Bedrooms & Three Bathrooms
- Viewing Highly Recommended
- No Upper Chain
Description
Internally the property is sealed unit double glazed and gas central heated with spacious entrance hall, fitted guest cloakroom, generously sized living room, study/family room/bedroom and open plan living kitchen with lounge area and quality fitted breakfast kitchen. The first floor landing leads to a principle bedroom with en-suite shower room, second double bedroom with en-suite bathroom, two further good sized bedrooms and a principle bathroom.
The Location - Horsley is a very popular village located a few miles north of Derby City centre. The village itself boats a primary school, church and popular pub. Places of interest within close proximity include Horsley Lodge, Morley Hayes and Breadsall Priory golf courses all of which have restaurants. Horsley is also convenient for the A38 and the nearby towns of Ripley and Belper.
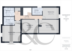
Accommodation -
Ground Floor -
Entrance Hall - 4.99 x 4.15 (16'4" x 13'7") - A multi-pane sealed unit and double glazed entrance door with matching side and fanlights provides access to most impressive spacious entrance hall with central heating radiator, staircase to first floor with oak balustrade and useful understairs storage cupboard beneath and recessed ceiling spotlighting.
Fitted Guest Cloakroom - 2.21 x 1.20 (7'3" x 3'11") - Appointed with a low flush WC, vanity unit with wash handbasin and drawer beneath, chrome towel radiator, recessed ceiling spotlighting and sealed unit double glazed window to side.
Living Room - 5.63 x 5.08 (18'5" x 16'7") - Having two central heating radiators, TV aerial point and sealed unit double glazed picture window to front overlooking the garden.
Family Room/Study/Ground Floor Bedroom - 7.03 x 2.81 (23'0" x 9'2") - Having two central heating radiators, recessed ceiling spotlighting and two sealed unit double glazed windows to rear with pleasant aspect.
Spacious Open Plan Living Kitchen - 8.71 x 4.60 (28'6" x 15'1") -
Lounge/Dining Area - A spacious area with central heating radiator, useful storage, TV plinth, recessed ceiling spotlighting and sealed unit double glazed picture window overlooking the garden.
Breakfast Kitchen - Comprising an extensive range of granite worktops with tiled surrounds, wooden breakfast bar, quality fitted base cupboards and drawers, wine storage, complementary wall mounted cupboards with down lighting, inset five plate Siemens gas hob with extractor hood over, built-in Siemens oven and grill, appliance space suitable for American style fridge freezer, washing machine and tumble dryer, integrated dishwasher, ladder style radiator and recessed ceiling spotlighting.
First Floor Landing - 7.20 x 1.07 (23'7" x 3'6") - A semi-galleried landing with continuation of the oak balustrade, central heating radiator, airing cupboard housing the hot water cylinder and access to loft space.
Principle Bedroom - 4.79 x 4.24 (15'8" x 13'10") - Having a central heating radiator, fitted wardrobe, dressing table, recessed ceiling spotlighting and sealed unit double glazed windows to side and front offering pleasant view over the gardens.
En-Suite Shower Room - 2.80 x 2.20 (9'2" x 7'2") - Appointed with a white suite comprising low flush WC, vanity unit with generous ceramic wash handbasin with storage cupboard beneath, shower cubicle, chrome towel radiator and recessed ceiling spotlighting.
Bedroom Two - 4.28 x 3.11 (14'0" x 10'2") - With central heating radiator, fitted wardrobe, dressing table, recessed ceiling spotlighting and sealed unit double glazed window to side with impressive views in the distance.
En-Suite Bathroom - 2.69 x 2.02 (8'9" x 6'7") - Appointed with a low flush WC, vanity unit with wash handbasin and drawer beneath, bath, separate shower cubicle, chrome towel radiator, recessed ceiling spotlighting and sealed unit double glazed window to rear.
Bedroom Three - 5.13 x 3.55 (16'9" x 11'7") - Having a central heating radiator, recessed ceiling spotlighting and two double glazed Velux windows.
Bedroom Four - 4.29 x 3.56 (14'0" x 11'8") - With central heating radiator, recessed ceiling spotlighting and two sealed unit double glazed windows to front.
Principle Bathroom - 2.85 x 2.21 (9'4" x 7'3") - Appointed with a low flush WC, vanity unit with stylish oval shaped sink and cupboards beneath, panelled bath, separate shower cubicle, chrome towel radiator and recessed ceiling spotlighting.
Outside - The property benefits from a spacious fore-garden incorporating gently sloping lawns with mature hedging, trees, pleasant open aspect and generous driveway providing off-road parking for multiple vehicles.
Immediately to the front of the property is a cobbled courtyard/patio area.
Council Tax Band F -
Brochures
The Orchard, Ladylea Road, Horsley, DerbyBrochure- COUNCIL TAXA payment made to your local authority in order to pay for local services like schools, libraries, and refuse collection. The amount you pay depends on the value of the property.Read more about council Tax in our glossary page.
- Band: F
- PARKINGDetails of how and where vehicles can be parked, and any associated costs.Read more about parking in our glossary page.
- Yes
- GARDENA property has access to an outdoor space, which could be private or shared.
- Yes
- ACCESSIBILITYHow a property has been adapted to meet the needs of vulnerable or disabled individuals.Read more about accessibility in our glossary page.
- Ask agent
The Orchard, Ladylea Road, Horsley, Derby
Add an important place to see how long it'd take to get there from our property listings.
__mins driving to your place
Get an instant, personalised result:
- Show sellers you’re serious
- Secure viewings faster with agents
- No impact on your credit score
Your mortgage
Notes
Staying secure when looking for property
Ensure you're up to date with our latest advice on how to avoid fraud or scams when looking for property online.
Visit our security centre to find out moreDisclaimer - Property reference 34262095. The information displayed about this property comprises a property advertisement. Rightmove.co.uk makes no warranty as to the accuracy or completeness of the advertisement or any linked or associated information, and Rightmove has no control over the content. This property advertisement does not constitute property particulars. The information is provided and maintained by Fletcher & Company, Derby. Please contact the selling agent or developer directly to obtain any information which may be available under the terms of The Energy Performance of Buildings (Certificates and Inspections) (England and Wales) Regulations 2007 or the Home Report if in relation to a residential property in Scotland.
*This is the average speed from the provider with the fastest broadband package available at this postcode. The average speed displayed is based on the download speeds of at least 50% of customers at peak time (8pm to 10pm). Fibre/cable services at the postcode are subject to availability and may differ between properties within a postcode. Speeds can be affected by a range of technical and environmental factors. The speed at the property may be lower than that listed above. You can check the estimated speed and confirm availability to a property prior to purchasing on the broadband provider's website. Providers may increase charges. The information is provided and maintained by Decision Technologies Limited. **This is indicative only and based on a 2-person household with multiple devices and simultaneous usage. Broadband performance is affected by multiple factors including number of occupants and devices, simultaneous usage, router range etc. For more information speak to your broadband provider.
Map data ©OpenStreetMap contributors.






