Wike Ridge Farm, Wike, North Leeds

- PROPERTY TYPE
Link Detached House
- BEDROOMS
6
- BATHROOMS
6
- SIZE
5,000 sq ft
465 sq m
- TENUREDescribes how you own a property. There are different types of tenure - freehold, leasehold, and commonhold.Read more about tenure in our glossary page.
Freehold
Key features
- Stunning Barn Conversion with approx 5000 sqft living space
- Immaculate Finishes Throughout
- Chain Free Opportunity
- Underfloor Heating to Ground Level
- Private Gated Entrance
- Ideally located between East Keswick and Alwoodley
- Character Barn Conversion Features
- Approx 0.5 acres of land
Description
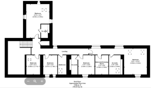
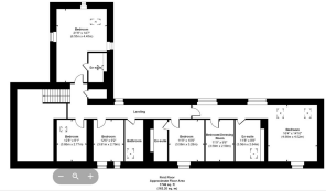
Wike Ridge Farm Barn - 1524.00m (5000) - Wike Ridge Farm Barn is a truly exceptional barn conversion offering over 5,000 sq ft of beautifully designed living space, set in a picturesque rural location just minutes from The Grammar School at Leeds and the vibrant amenities of Street Lane, Roundhay.
Finished to an outstanding standard, this unique home blends original character features—such as exposed beams—with high-end contemporary finishes. These include Lapicida and Amtico flooring, Farrow & Ball interiors, integrated Siemens appliances, Aquavision TV in the master en-suite, a full AV system, underfloor heating on the ground floor, and gas central heating upstairs.
The flexible layout is ideal for modern family life and entertaining, featuring a welcoming reception hall, lounge, stunning open-plan dining kitchen, utility room, snug, games room, office, gym, and a self-contained guest/staff wing with bedroom, en-suite, and sitting room. Upstairs offers a luxurious master suite with walk-in wardrobe and en-suite, four additional bedrooms (two with en-suites), and a separate shower room.
The property includes a fully refurbished attached barn providing a further 4,000 sq ft of versatile space. Outside, extensive south-facing spaces, a walled garden, and sweeping countryside views create a perfect setting for outdoor living.
Set behind remote-controlled gates and approached via a gravel driveway with ample parking, this private residence also offers the option of additional land and paddocks.
Wike Ridge Farm Barn sits on the edge of the exclusive hamlet of Wike, ideally located between East Keswick and Alwoodley. Local shops are nearby at Slaid Hill, with excellent access to top schools, Roundhay Park, golf courses, and Leeds city centre.
Access to the property is via electric gates and a large gravel driveway, providing ample parking for multiple vehicle, as well as a garage.
REASONS TO BUY
- Characterful chain free farmhouse
- Recently renovated and extended
- Six double bedrooms
- High Specification Kitchen including Quartz worktops
- Characterful beams and log burning fire
- Landscaped gardens with mature trees and shrubs
- Accessed via electric gates
- Approximately 0.5 acres of land and additional land subject to negotiation
- Breath taking countryside views
- Sought after village location
ENVIRONS
The property is located in the exclusive hamlet of Wike, conveniently positioned between the picturesque village of East Keswick and Alwoodley. Nearby Slaid Hill offers shops catering to daily needs, with excellent access to The Grammar School and Gateways. A little further out, you can find the renowned Roundhay Park, trendy shops and restaurants on Street Lane, additional golf courses in Moor Allerton, Sandmoor, and Alwoodley, and swift access to Leeds city centre. Harrogate, York, and Wetherby are also easily reachable via frequent public transport links.
SERVICES
We are advised that the property has mains gas, water and electricity. Septic tank drainage.
LOCAL AUTHORITY
Leeds
TENURE
We are advised that the property is freehold, and that vacant possession will be granted upon legal completion.
VIEWING ARRANGEMENTS
Strictly through the selling agent Monroe Estate Agents
Viewings by appointments only.
Brochures
Wike Ridge Farm, Wike, North LeedsBrochure- COUNCIL TAXA payment made to your local authority in order to pay for local services like schools, libraries, and refuse collection. The amount you pay depends on the value of the property.Read more about council Tax in our glossary page.
- Band: C
- PARKINGDetails of how and where vehicles can be parked, and any associated costs.Read more about parking in our glossary page.
- Garage
- GARDENA property has access to an outdoor space, which could be private or shared.
- Yes
- ACCESSIBILITYHow a property has been adapted to meet the needs of vulnerable or disabled individuals.Read more about accessibility in our glossary page.
- Ask agent
Energy performance certificate - ask agent
Wike Ridge Farm, Wike, North Leeds
Add an important place to see how long it'd take to get there from our property listings.
__mins driving to your place
Get an instant, personalised result:
- Show sellers you’re serious
- Secure viewings faster with agents
- No impact on your credit score
Your mortgage
Notes
Staying secure when looking for property
Ensure you're up to date with our latest advice on how to avoid fraud or scams when looking for property online.
Visit our security centre to find out moreDisclaimer - Property reference 34258824. The information displayed about this property comprises a property advertisement. Rightmove.co.uk makes no warranty as to the accuracy or completeness of the advertisement or any linked or associated information, and Rightmove has no control over the content. This property advertisement does not constitute property particulars. The information is provided and maintained by Land & New Homes, Alwoodley. Please contact the selling agent or developer directly to obtain any information which may be available under the terms of The Energy Performance of Buildings (Certificates and Inspections) (England and Wales) Regulations 2007 or the Home Report if in relation to a residential property in Scotland.
*This is the average speed from the provider with the fastest broadband package available at this postcode. The average speed displayed is based on the download speeds of at least 50% of customers at peak time (8pm to 10pm). Fibre/cable services at the postcode are subject to availability and may differ between properties within a postcode. Speeds can be affected by a range of technical and environmental factors. The speed at the property may be lower than that listed above. You can check the estimated speed and confirm availability to a property prior to purchasing on the broadband provider's website. Providers may increase charges. The information is provided and maintained by Decision Technologies Limited. **This is indicative only and based on a 2-person household with multiple devices and simultaneous usage. Broadband performance is affected by multiple factors including number of occupants and devices, simultaneous usage, router range etc. For more information speak to your broadband provider.
Map data ©OpenStreetMap contributors.





