3 bedroom detached house for sale
Green Lane, Lower Kingswood, Surrey

- PROPERTY TYPE
Detached
- BEDROOMS
3
- BATHROOMS
1
- SIZE
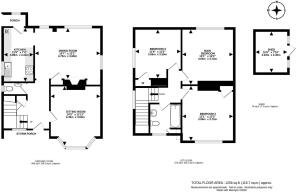
1,256 sq ft
117 sq m
- TENUREDescribes how you own a property. There are different types of tenure - freehold, leasehold, and commonhold.Read more about tenure in our glossary page.
Freehold
Key features
- Three-bedroom detached home with scope to extend (STPP)
- Bright bay-fronted sitting room and garden-view dining room
- Practical kitchen with access to rear porch and garden
- Two double bedrooms plus a versatile third room/study
- Private rear garden, shed/workshop, and large driveway
- *Offered wit h no onward chain*
Description
This three-bedroom detached home offers generous living space and a practical layout, ideal for modern family life. The property also presents excellent scope for improvement or extension (subject to planning).
The ground floor features an entrance porch leading into a central hallway with access to a downstairs WC. At the front of the property, the sitting room includes a bay window that brings in plenty of natural light, creating a comfortable and welcoming space. To the rear, the dining room overlooks the garden and links directly to the kitchen, providing an easy flow between the main living areas. The kitchen includes a good range of units and workspace, with access to the rear porch and garden beyond.
Upstairs, there are three well-proportioned bedrooms and a family bathroom. The main and second bedrooms are both generous doubles, while the third bedroom offers versatility as a single room, nursery, or study.
Outside, the property enjoys a private rear garden with ample space for outdoor seating and planting. A detached shed provides useful storage or potential workshop space. To the front, the home is set back from the road, featuring a large driveway that offers ample parking and privacy.
This property combines generous proportions with a flexible layout and excellent potential to enhance further, making it an appealing choice for buyers looking to create their dream home.
Green Lane provides easy access to Margery Wood and Colley Hill which offers an abundance of open countryside and the perfect area for cycling, horse riding and country walks. There are local shops in the village with further amenities at Reigate, Banstead and Tadworth.
The area is well supplied with private and state schooling, golf clubs, restaurants, public houses and other recreational destinations such Tadworth Leisure Centre and Donnings in Redhill. The M25 is easily accessed at Junction 8 (Reigate Hill) which in turn gives access to both Gatwick and Heathrow Airports.
If you would like further information or to arrange a private viewing, please call a member of the Kennedys’ sales team on .
Brochures
Final1.0.pdfBrochure- COUNCIL TAXA payment made to your local authority in order to pay for local services like schools, libraries, and refuse collection. The amount you pay depends on the value of the property.Read more about council Tax in our glossary page.
- Band: F
- PARKINGDetails of how and where vehicles can be parked, and any associated costs.Read more about parking in our glossary page.
- Yes
- GARDENA property has access to an outdoor space, which could be private or shared.
- Yes
- ACCESSIBILITYHow a property has been adapted to meet the needs of vulnerable or disabled individuals.Read more about accessibility in our glossary page.
- Ask agent
Green Lane, Lower Kingswood, Surrey
Add an important place to see how long it'd take to get there from our property listings.
__mins driving to your place
Get an instant, personalised result:
- Show sellers you’re serious
- Secure viewings faster with agents
- No impact on your credit score



Your mortgage
Notes
Staying secure when looking for property
Ensure you're up to date with our latest advice on how to avoid fraud or scams when looking for property online.
Visit our security centre to find out moreDisclaimer - Property reference 34263414. The information displayed about this property comprises a property advertisement. Rightmove.co.uk makes no warranty as to the accuracy or completeness of the advertisement or any linked or associated information, and Rightmove has no control over the content. This property advertisement does not constitute property particulars. The information is provided and maintained by Kennedys, Tadworth- Sales. Please contact the selling agent or developer directly to obtain any information which may be available under the terms of The Energy Performance of Buildings (Certificates and Inspections) (England and Wales) Regulations 2007 or the Home Report if in relation to a residential property in Scotland.
*This is the average speed from the provider with the fastest broadband package available at this postcode. The average speed displayed is based on the download speeds of at least 50% of customers at peak time (8pm to 10pm). Fibre/cable services at the postcode are subject to availability and may differ between properties within a postcode. Speeds can be affected by a range of technical and environmental factors. The speed at the property may be lower than that listed above. You can check the estimated speed and confirm availability to a property prior to purchasing on the broadband provider's website. Providers may increase charges. The information is provided and maintained by Decision Technologies Limited. **This is indicative only and based on a 2-person household with multiple devices and simultaneous usage. Broadband performance is affected by multiple factors including number of occupants and devices, simultaneous usage, router range etc. For more information speak to your broadband provider.
Map data ©OpenStreetMap contributors.




