3 bedroom semi-detached bungalow for sale
Phillips Crescent, Headley, Hampshire, GU35

- PROPERTY TYPE
Semi-Detached Bungalow
- BEDROOMS
3
- BATHROOMS
2
- SIZE
Ask agent
- TENUREDescribes how you own a property. There are different types of tenure - freehold, leasehold, and commonhold.Read more about tenure in our glossary page.
Freehold
Key features
- open plan living, kitchen / dining room
- inner hallway
- ground floor bedroom 2
- ground floor snug / bedroom 4
- ground floor shower room
- two first floor bedrooms
- first floor shower room
- gas-fired central heating / upvc double glazed windows
- front garden / rear garden with utility room / home office
- single garage & driveway with parking for two cars
Description
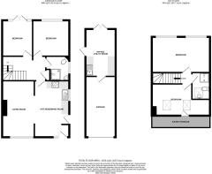
ACCOMMODATION (sizes are approximate and for guidance only)
uPVC double glazed entrance door and side window to
OPEN PLAN LIVING, KITCHEN / ROOM Living Room: 4.87m x 2.74m to either side of chimney breast, double radiator, uPVC double glazed window, feature fire place and hearth, telephone point, tv point, wood laminate flooring; Kitchen / Dining Room: 4.74m x 298m, stainless steel one and a half bowl sink unit with cupboard below, range of wall and base units with Oak work surfaces over, built-in electric hob with fitted electric fan-assisted oven below, recess for under-counter fridge and freezer, uPVC double glazed window, uPVC double glazed door, wood laminate flooring, part-tiled walls, door to
INNER HALLWAY storage cupboard with wall-mounted consumer unit, electricity and gas meters, under-stairs recess, stairs to landing
GROUND FLOOR BEDROOM 2 3.13m x 2.9m, uPVC double glazed window, double radiator
SNUG / GROUND FLOOR BEDROOM 4 3m x 2.58m, uPVC double glazed French doors and adjacent windows to rear garden, double radiator, tv point
GROUND FLOOR SHOWER ROOM double shower cubicle with wall-mounted shower unit and attachment, wall-mounted wash hand basin, dual-flush low-level wc, uPVC double glazed window, chrome ladder radiator, part-tiled walls, laminate flooring
STAIRS TO LANDING
FIRST FLOOR BEDROOM 1 5.05m x 3.09m, two uPVC double glazed windows, two single radiators
FIRST FLOOR BEDROOM 3 3.38m x 2.72m (restricted head height), two double glazed Velux windows, single radiator, eaves storage
FIRST FLOOR SHOWER ROOM double shower cubicle with wall-mounted shower unit and attachment, pedestal wash hand basin, low-level wc, chrome ladder radiator, built-in shelving, wood laminate flooring, extractor fan, double glazed Velux window
REAR GARDEN paved patio, area laid to lawn with inset circular patio, panel fencing to both sides and rear, outside tap, gated side access to front, Utility Room / Home Office: 4.06m x 2.56m, uPVC double glazed French doors, double glazed single door for side access, stainless steel sink unit with cupboard below and fitted work surface over, space and plumbing for washing machine, recess for tumble dryer, recess for fridge / freezer, wood laminate flooring, door to
GARAGE 5.18m x 2.63m, up and over door, power and light
FRONT GARDEN area laid to lawn with inset tree, Laurel hedging, pathway to entrance door, driveway with parking for two cars
COUNCIL TAX BAND: D
EPC RATING: C
- COUNCIL TAXA payment made to your local authority in order to pay for local services like schools, libraries, and refuse collection. The amount you pay depends on the value of the property.Read more about council Tax in our glossary page.
- Ask agent
- PARKINGDetails of how and where vehicles can be parked, and any associated costs.Read more about parking in our glossary page.
- Garage,Driveway
- GARDENA property has access to an outdoor space, which could be private or shared.
- Front garden,Rear garden
- ACCESSIBILITYHow a property has been adapted to meet the needs of vulnerable or disabled individuals.Read more about accessibility in our glossary page.
- Ask agent
Energy performance certificate - ask agent
Phillips Crescent, Headley, Hampshire, GU35
Add an important place to see how long it'd take to get there from our property listings.
__mins driving to your place
Get an instant, personalised result:
- Show sellers you’re serious
- Secure viewings faster with agents
- No impact on your credit score
Your mortgage
Notes
Staying secure when looking for property
Ensure you're up to date with our latest advice on how to avoid fraud or scams when looking for property online.
Visit our security centre to find out moreDisclaimer - Property reference B4497. The information displayed about this property comprises a property advertisement. Rightmove.co.uk makes no warranty as to the accuracy or completeness of the advertisement or any linked or associated information, and Rightmove has no control over the content. This property advertisement does not constitute property particulars. The information is provided and maintained by Bushnell Porter, Bordon. Please contact the selling agent or developer directly to obtain any information which may be available under the terms of The Energy Performance of Buildings (Certificates and Inspections) (England and Wales) Regulations 2007 or the Home Report if in relation to a residential property in Scotland.
*This is the average speed from the provider with the fastest broadband package available at this postcode. The average speed displayed is based on the download speeds of at least 50% of customers at peak time (8pm to 10pm). Fibre/cable services at the postcode are subject to availability and may differ between properties within a postcode. Speeds can be affected by a range of technical and environmental factors. The speed at the property may be lower than that listed above. You can check the estimated speed and confirm availability to a property prior to purchasing on the broadband provider's website. Providers may increase charges. The information is provided and maintained by Decision Technologies Limited. **This is indicative only and based on a 2-person household with multiple devices and simultaneous usage. Broadband performance is affected by multiple factors including number of occupants and devices, simultaneous usage, router range etc. For more information speak to your broadband provider.
Map data ©OpenStreetMap contributors.





