
Great Clover Leaze - Cheswick Village

Letting details
- Let available date:
- 20/07/2026
- Deposit:
- £6,563A deposit provides security for a landlord against damage, or unpaid rent by a tenant.Read more about deposit in our glossary page.
- Min. Tenancy:
- Ask agent How long the landlord offers to let the property for.Read more about tenancy length in our glossary page.
- Furnish type:
- Furnished
- Council Tax:
- Ask agent
- PROPERTY TYPE
Terraced
- BEDROOMS
6
- BATHROOMS
3
- SIZE
Ask agent
Key features
- Student House
- 900mb Internet Speed
- Bills Included
- Garage Included
Description
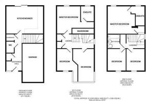
This modern townhouse comprises of an open kitchen/living room, downstairs w/c, six double bedrooms(two with en-suites) and a communal bathroom. This immaculate property is offered on a fully furnished basis, with the following bills included in the rent - gas, electricity, water, BT Fibre optic broadband, and TV License. You will also benefit from a good sized garden, double glazing, gas central heating, 2 allocated parking spaces on your personal driveway and a garage you can have full use of.
This property will be available to rent from July 2026.
Material facts (Parts A + B) information correct as of 24th October, 2025:
– Council tax band – E
– Energy rating – B
– Holding deposit – £1093
– Damage deposit – £6563
– What floor is the property situated? - N/A
– Parking – Driveway
– Headlease – no
– Utilities – Electric, Gas and Water on a meter. Mains fed - Included in Rent
– Utility restrictions – Included in rent, Landlord chosen
– Heating source – GCH
– Indoor Phone coverage (source Ofcom) graded Likely, Limited or None – EE Likely, Three Limited, O2 Likely, Vodafone Limited
– Broadband download speed and supply type (source Ofcom) – Standard 5Mbps, Superfast 47Mbps and Ultrafast 9000Mbps
– Building Material type – Brick
– Lift access – no
Material facts (Part C)
– Building Safety - No known issues at this time
– Restrictions and Rights – not known at this time. Please ask agent
– Rights and Easements - not known at this time. Please ask agent
– Flood and Erosion in last 5 years - not known at this time. Please ask agent
– Planning Permissions - not known at this time. Please ask agent
– Property accessibility/adaptations - not known at this time. Please ask agent
– Coalfield or Mining – not known at this time. Please ask agent
- COUNCIL TAXA payment made to your local authority in order to pay for local services like schools, libraries, and refuse collection. The amount you pay depends on the value of the property.Read more about council Tax in our glossary page.
- Ask agent
- PARKINGDetails of how and where vehicles can be parked, and any associated costs.Read more about parking in our glossary page.
- Driveway
- GARDENA property has access to an outdoor space, which could be private or shared.
- Yes
- ACCESSIBILITYHow a property has been adapted to meet the needs of vulnerable or disabled individuals.Read more about accessibility in our glossary page.
- Ask agent
Great Clover Leaze - Cheswick Village
Add an important place to see how long it'd take to get there from our property listings.
__mins driving to your place


Notes
Staying secure when looking for property
Ensure you're up to date with our latest advice on how to avoid fraud or scams when looking for property online.
Visit our security centre to find out moreDisclaimer - Property reference 2269097. The information displayed about this property comprises a property advertisement. Rightmove.co.uk makes no warranty as to the accuracy or completeness of the advertisement or any linked or associated information, and Rightmove has no control over the content. This property advertisement does not constitute property particulars. The information is provided and maintained by Ocean, Bradley Stoke. Please contact the selling agent or developer directly to obtain any information which may be available under the terms of The Energy Performance of Buildings (Certificates and Inspections) (England and Wales) Regulations 2007 or the Home Report if in relation to a residential property in Scotland.
*This is the average speed from the provider with the fastest broadband package available at this postcode. The average speed displayed is based on the download speeds of at least 50% of customers at peak time (8pm to 10pm). Fibre/cable services at the postcode are subject to availability and may differ between properties within a postcode. Speeds can be affected by a range of technical and environmental factors. The speed at the property may be lower than that listed above. You can check the estimated speed and confirm availability to a property prior to purchasing on the broadband provider's website. Providers may increase charges. The information is provided and maintained by Decision Technologies Limited. **This is indicative only and based on a 2-person household with multiple devices and simultaneous usage. Broadband performance is affected by multiple factors including number of occupants and devices, simultaneous usage, router range etc. For more information speak to your broadband provider.
Map data ©OpenStreetMap contributors.





