
Slough, SL2, SL2

- PROPERTY TYPE
Terraced
- BEDROOMS
3
- BATHROOMS
1
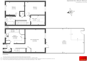
- SIZE
870 sq ft
81 sq m
- TENUREDescribes how you own a property. There are different types of tenure - freehold, leasehold, and commonhold.Read more about tenure in our glossary page.
Freehold
Key features
- Three Bedrooms
- Downstairs WC
- Private Garden
- Communal Parking
- On a No-Through Road
Description
Nestled in a quiet cul-de-sac within a sought-after residential area of Slough, this beautifully maintained three-bedroom mid-terraced property offers comfortable family living with excellent access to local amenities, shops, supermarkets, and popular Kennedy Park recreation grounds within a mile.
Property Details
Tucked away in a peaceful cul-de-sac within a popular residential area of Slough, this very well presented three-bedroom mid-terraced property offers a fantastic opportunity for families, first-time buyers, or investors. With convenient access to a wide range of local amenities, shops, supermarkets, and the much-loved Kennedy Park recreation grounds within a mile, the location is both practical and desirable.
Upon entering, you're welcomed by a bright and spacious hallway with stairs leading to the first floor and useful built-in storage cupboards. A downstairs WC adds convenience, while the heart of the home lies in the stylish kitchen/diner, complete with integrated appliances and sleek granite worktops. The generously sized family lounge at the rear provides a comfortable living space and opens directly onto the garden, perfect for relaxing or entertaining.
Upstairs, the property features three well-proportioned bedrooms, offering flexibility for modern living. A contemporary family bathroom with a three-piece suite completes the first-floor accommodation, and there's also access to a large loft area, ideal for additional storage.
The rear garden is a private and tranquil space, enclosed by fencing with rear access leading to a residents’ car park that provides off-street parking.
This move-in-ready home combines comfort, convenience and charm, it’s ready for its next chapter.
Brochures
More details from Chancellors- COUNCIL TAXA payment made to your local authority in order to pay for local services like schools, libraries, and refuse collection. The amount you pay depends on the value of the property.Read more about council Tax in our glossary page.
- Band: C
- PARKINGDetails of how and where vehicles can be parked, and any associated costs.Read more about parking in our glossary page.
- Off street
- GARDENA property has access to an outdoor space, which could be private or shared.
- Private garden
- ACCESSIBILITYHow a property has been adapted to meet the needs of vulnerable or disabled individuals.Read more about accessibility in our glossary page.
- Ask agent
Slough, SL2, SL2
Add an important place to see how long it'd take to get there from our property listings.
__mins driving to your place
Get an instant, personalised result:
- Show sellers you’re serious
- Secure viewings faster with agents
- No impact on your credit score
Your mortgage
Notes
Staying secure when looking for property
Ensure you're up to date with our latest advice on how to avoid fraud or scams when looking for property online.
Visit our security centre to find out moreDisclaimer - Property reference 6017028. The information displayed about this property comprises a property advertisement. Rightmove.co.uk makes no warranty as to the accuracy or completeness of the advertisement or any linked or associated information, and Rightmove has no control over the content. This property advertisement does not constitute property particulars. The information is provided and maintained by Chancellors, Slough. Please contact the selling agent or developer directly to obtain any information which may be available under the terms of The Energy Performance of Buildings (Certificates and Inspections) (England and Wales) Regulations 2007 or the Home Report if in relation to a residential property in Scotland.
*This is the average speed from the provider with the fastest broadband package available at this postcode. The average speed displayed is based on the download speeds of at least 50% of customers at peak time (8pm to 10pm). Fibre/cable services at the postcode are subject to availability and may differ between properties within a postcode. Speeds can be affected by a range of technical and environmental factors. The speed at the property may be lower than that listed above. You can check the estimated speed and confirm availability to a property prior to purchasing on the broadband provider's website. Providers may increase charges. The information is provided and maintained by Decision Technologies Limited. **This is indicative only and based on a 2-person household with multiple devices and simultaneous usage. Broadband performance is affected by multiple factors including number of occupants and devices, simultaneous usage, router range etc. For more information speak to your broadband provider.
Map data ©OpenStreetMap contributors.








