Trimley Road, Kirton

- PROPERTY TYPE
Detached
- BEDROOMS
4
- BATHROOMS
3
- SIZE
2,109 sq ft
196 sq m
- TENUREDescribes how you own a property. There are different types of tenure - freehold, leasehold, and commonhold.Read more about tenure in our glossary page.
Freehold
Key features
- FOR SALE FOR THE FIRST TIME SINCE CONSTRUCTION IN 1993
- VILLAGE LOCATION
- AMPLE OFF ROAD PARKING
- GENEROUS REAR GARDEN WITH SUMMER HOUSE
- 2109 SQFT ACCOMMODATION
- DETACHED HOME
- FOUR BEDROOMS
- DOUBLE GARAGE
- VIEIWNG HIGHLY RECOMMENDED
Description
Additionally the property benefits from an en-suite to bedroom one, three reception rooms and a utility room.
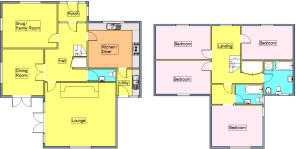
The accommodation in brief comprises entrance porch, entrance hallway, snug, lounge, dining room, kitchen, utility room, cloakroom. Upstairs are four bedrooms with an en-suite to bedroom one and a family bathroom. Heating is supplied in the form of gas fired central heating to radiators.
Kirton is a popular village on the outskirts of Felixstowe and is within easy reach of the A14 to Ipswich and Martlesham and Woodbridge. A viewing is highly recommended to appreciate this individual and spacious family home on offer.
ENTRANCE DOOR Opening into :-
ENTRANCE PORCH 6' 9" x 4' 11" (2.06m x 1.5m) Terracotta tiled flooring, radiator, windows to front and side aspect, door opening into :-
ENTRANCE HALLWAY 15' 9" x 11' 3" (4.8m x 3.43m) Terracotta tiled flooring, radiator, stairs leading up to the first floor with an under stairs storage cupboard and doors to :-
CLOAKROOM 7' 1" x 3' 4" (2.16m x 1.02m) Suite comprising low level WC, wash hand basin with mixer taps and extractor.
LOUNGE 19' 6" x 17' 11" (5.94m x 5.46m) Radiator, TV point, window to rear aspect, French doors and window to side aspect, Inglenook feature fireplace with bressummer beam.
SNUG 15' 2" x 11' 8" (4.62m x 3.56m) Radiator, TV point, windows to front and side aspect.
KITCHEN 14' 1" x 12' (4.29m x 3.66m) Fitted worktops with a tiled splashback, solid wood fitted storage units above and matching storage units and drawers below, stainless steel one and a half bowl sink unit with mixer tap and single drainer, integrated appliances such as fridge, freezer, dishwasher, AEG eye level oven, Neff microwave above, Neff five ring hob with extractor above, Terracotta tiled flooring, radiator, window to front aspect, door to :-
UTILITY ROOM 7' 1" x 5' 11" (2.16m x 1.8m) Fitted worktops with solid wood fitted storage units below, stainless steel sink unit with mixer tap and single drainer, space and plumbing available for both a washing machine and a tumble dryer, Worcester boiler, Terracotta tiled flooring, windows and door to rear aspect.
DINING ROOM 13' 4" x 11' 11" (4.06m x 3.63m) Radiator, window to side aspect, French doors to rear aspect.
FIRST FLOOR LANDING Airing cupboard housing hot water cylinder, radiator, window to front aspect with countryside views, doors to :-
BEDROOM ONE 15' 3" x 12' 3" (4.65m x 3.73m) Radiator, window to rear aspect, wall lined fitted wardrobes.
EN-SUITE BATHROOM 8' 11" x 5' 9" (2.72m x 1.75m) Suite comprising low level WC, wash hand basin, panelled bath with mixer tap and shower head attachment, part tiled walls, heated towel rail, Velux window.
BEDROOM TWO 15' 2" x 10' (4.62m x 3.05m) Radiator, window to front aspect with countryside views.
BEDROOM THREE 15' 3" x 9' 1" (4.65m x 2.77m) Radiator, window to rear aspect, built in cupboard.
BEDROOM FOUR 14' 2" x 9' 1" (4.32m x 2.77m) Laminate flooring, radiator, window to front aspect with countryside views.
FAMILY BATHROOM 10' x 8' 1" (3.05m x 2.46m) Suite comprising low level WC, bidet, wash hand basin with mixer tap, panelled bath with mixer tap, separate shower cubicle with electric shower over, part tiled walls, heated towel rail, extractor, Velux window, access to eaves storage.
OUTSIDE To the front of the property is a large shingle driveway enabling ample off road parking, a patio pathway leading to the entrance door, an established plant and shrub border to the front boundary, the remainder of the front garden is laid to lawn, extending to the side of the property, opening out into the rear garden which is mainly laid to lawn with established plant and shrub border with trees to one side, a patio area with outside lighting and outside tap, vegetable patch, access to :-
SUMMER HOUSE 18' 7" x 15' 9" (5.66m x 4.8m) Light and power connected, decked veranda.
DOUBLE GARAGE 20' 4" x 17' 6" (6.2m x 5.33m) Pitched roof double garage with two up and over doors, light and power connected.
COUNCIL TAX Band 'E'
Brochures
A4 5 Page Landsca...- COUNCIL TAXA payment made to your local authority in order to pay for local services like schools, libraries, and refuse collection. The amount you pay depends on the value of the property.Read more about council Tax in our glossary page.
- Band: E
- PARKINGDetails of how and where vehicles can be parked, and any associated costs.Read more about parking in our glossary page.
- Garage,Off street
- GARDENA property has access to an outdoor space, which could be private or shared.
- Yes
- ACCESSIBILITYHow a property has been adapted to meet the needs of vulnerable or disabled individuals.Read more about accessibility in our glossary page.
- Ask agent
Trimley Road, Kirton
Add an important place to see how long it'd take to get there from our property listings.
__mins driving to your place
Get an instant, personalised result:
- Show sellers you’re serious
- Secure viewings faster with agents
- No impact on your credit score
Affordability
Notes
Staying secure when looking for property
Ensure you're up to date with our latest advice on how to avoid fraud or scams when looking for property online.
Visit our security centre to find out moreDisclaimer - Property reference 100928005161. The information displayed about this property comprises a property advertisement. Rightmove.co.uk makes no warranty as to the accuracy or completeness of the advertisement or any linked or associated information, and Rightmove has no control over the content. This property advertisement does not constitute property particulars. The information is provided and maintained by ScottBeckett, Felixstowe. Please contact the selling agent or developer directly to obtain any information which may be available under the terms of The Energy Performance of Buildings (Certificates and Inspections) (England and Wales) Regulations 2007 or the Home Report if in relation to a residential property in Scotland.
*This is the average speed from the provider with the fastest broadband package available at this postcode. The average speed displayed is based on the download speeds of at least 50% of customers at peak time (8pm to 10pm). Fibre/cable services at the postcode are subject to availability and may differ between properties within a postcode. Speeds can be affected by a range of technical and environmental factors. The speed at the property may be lower than that listed above. You can check the estimated speed and confirm availability to a property prior to purchasing on the broadband provider's website. Providers may increase charges. The information is provided and maintained by Decision Technologies Limited. **This is indicative only and based on a 2-person household with multiple devices and simultaneous usage. Broadband performance is affected by multiple factors including number of occupants and devices, simultaneous usage, router range etc. For more information speak to your broadband provider.
Map data ©OpenStreetMap contributors.





