
2 bedroom end of terrace house for sale
Stanley Road, Newmarket

- PROPERTY TYPE
End of Terrace
- BEDROOMS
2
- BATHROOMS
1
- SIZE
506 sq ft
47 sq m
- TENUREDescribes how you own a property. There are different types of tenure - freehold, leasehold, and commonhold.Read more about tenure in our glossary page.
Freehold
Key features
- End Terrace Property
- 2 Bedrooms
- Modern Fitted Kitchen
- Ground Floor Shower Room
- Side Entrance Porch
- Private Corner Plot Garden
- NO CHAIN
Description
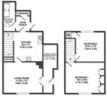
Entrance Porch - with double glazed windows and entrance door, tiled flooring, space for tumble dryer, double doors leading into the;
Living/Dining Room - with a double glazed window to the front aspect, laminate flooring, built-in storage and shelving, open fireplace (currently housing a disconnected gas fire), radiator.
Kitchen - with a range of base and wall units with work surfaces over, sink with mixer tap, 4 ring electric hob with extractor hood over, electric oven, tiled splashbacks, under stairs storage cupboard, stairs leading up to the first floor landing, double glazed window to the rear aspect.
Rear Porch - with storage cupboard, door opening onto the rear garden.
Shower Room - with a low level WC, large walk-in shower cubicle, tiled splashbacks, wall mounted wash hand basin, chrome heated towel rail, laminate flooring, double glazed window to the side aspect.
First Floor -
Landing -
Bedroom 1 - with a cast iron feature fireplace, built-in wardrobes, radiator, double glazed window to the front aspect.
Bedroom 2 - with a window to the rear aspect enjoying views over the stud, cupboard housing gas fired boiler, radiator.
Outside - The garden is a small private corner plot laid to lawn with gated access and pathway.
Sales Agents Notes - For more information on this property, please refer to the Material Information Brochure on our website.
Brochures
Stanley Road, NewmarketMATERIAL INFORMATION BROCHURE- COUNCIL TAXA payment made to your local authority in order to pay for local services like schools, libraries, and refuse collection. The amount you pay depends on the value of the property.Read more about council Tax in our glossary page.
- Band: B
- PARKINGDetails of how and where vehicles can be parked, and any associated costs.Read more about parking in our glossary page.
- On street
- GARDENA property has access to an outdoor space, which could be private or shared.
- Yes
- ACCESSIBILITYHow a property has been adapted to meet the needs of vulnerable or disabled individuals.Read more about accessibility in our glossary page.
- Ask agent
Stanley Road, Newmarket
Add an important place to see how long it'd take to get there from our property listings.
__mins driving to your place
Get an instant, personalised result:
- Show sellers you’re serious
- Secure viewings faster with agents
- No impact on your credit score



Your mortgage
Notes
Staying secure when looking for property
Ensure you're up to date with our latest advice on how to avoid fraud or scams when looking for property online.
Visit our security centre to find out moreDisclaimer - Property reference 34268109. The information displayed about this property comprises a property advertisement. Rightmove.co.uk makes no warranty as to the accuracy or completeness of the advertisement or any linked or associated information, and Rightmove has no control over the content. This property advertisement does not constitute property particulars. The information is provided and maintained by Cheffins Residential, Newmarket. Please contact the selling agent or developer directly to obtain any information which may be available under the terms of The Energy Performance of Buildings (Certificates and Inspections) (England and Wales) Regulations 2007 or the Home Report if in relation to a residential property in Scotland.
*This is the average speed from the provider with the fastest broadband package available at this postcode. The average speed displayed is based on the download speeds of at least 50% of customers at peak time (8pm to 10pm). Fibre/cable services at the postcode are subject to availability and may differ between properties within a postcode. Speeds can be affected by a range of technical and environmental factors. The speed at the property may be lower than that listed above. You can check the estimated speed and confirm availability to a property prior to purchasing on the broadband provider's website. Providers may increase charges. The information is provided and maintained by Decision Technologies Limited. **This is indicative only and based on a 2-person household with multiple devices and simultaneous usage. Broadband performance is affected by multiple factors including number of occupants and devices, simultaneous usage, router range etc. For more information speak to your broadband provider.
Map data ©OpenStreetMap contributors.





