3 bedroom semi-detached house for sale
Hoopers Close, Leigh Sinton, Malvern, Worcestershire, WR13

- PROPERTY TYPE
Semi-Detached
- BEDROOMS
3
- BATHROOMS
2
- SIZE
Ask agent
- TENUREDescribes how you own a property. There are different types of tenure - freehold, leasehold, and commonhold.Read more about tenure in our glossary page.
Freehold
Key features
- An extended, well proportioned three bedroom semi-detached home
- Extensive off-road parking for multiple vehicles
- Sought after village location
- Private rear garden
- Good accessibility to the larger centers of Malvern & Worcester
- EPC C
Description
There is great scope for further extension to the property (STPP)
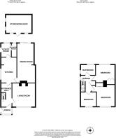
PORCH
Enter the property via the entrance hallway, a useful space for hanging coats and storing boots or shoes.
ENTRANCE HALLWAY
The spacious entrance hallway provides access to the sitting room and kitchen to the rear of the property, stairs lead upstairs.
SITTING ROOM
3.89m x 4.11m
A bright and airy sitting room which provides adequate space for relaxing and unwinding whilst enjoying idyllic views of the Malvern Hills. The sitting room overlooks the front garden and has a woodburning stove with reclaimed oak beam feature above it.
KITCHEN
4.2m x 2.62m
The kitchen has a range of base and wall units to cater for all of your culinary needs. There is a rangemaster cooker, integrated dishwasher and space for a fridge/freezer.
UTILITY
1.8m x 2.51m
The kitchen is well served by a useful utility which has further fitted storage and space for a washing machine and tumble dryer.
DOWNSTAIRS SHOWER ROOM
The utility gives access to a downstairs shower room with W/C.
DINING ROOM/SNUG
6.83m x 3.02m
The dining room/snug is accessed directly via the kitchen and offers plentiful space for seating and dining. Patio doors lead to the rear garden.
FIRST FLOOR
BEDROOM ONE
3.86m x 3.38m
Double bedroom with fitted wardrobes and stunning views towards the Malvern Hills
BEDROOM TWO
3.86m x 2.92m
Double bedroom with fitted wardrobes, overlooks rear garden.
BEDROOM THREE
2.64m x 2.41m
Single bedroom which also benefits from excellent views of the Malvern Hills.
FAMILY BATHROOM
Free standing bath and separate shower unit
OUTSIDE
There are front and rear gardens which are mainly laid to lawn, there is a useful shed with power at the rear of the garden. The property benefits from an extensive driveway where there is parking available for multiple vehicles.
Brochures
Particulars- COUNCIL TAXA payment made to your local authority in order to pay for local services like schools, libraries, and refuse collection. The amount you pay depends on the value of the property.Read more about council Tax in our glossary page.
- Band: C
- PARKINGDetails of how and where vehicles can be parked, and any associated costs.Read more about parking in our glossary page.
- Yes
- GARDENA property has access to an outdoor space, which could be private or shared.
- Yes
- ACCESSIBILITYHow a property has been adapted to meet the needs of vulnerable or disabled individuals.Read more about accessibility in our glossary page.
- Ask agent
Hoopers Close, Leigh Sinton, Malvern, Worcestershire, WR13
Add an important place to see how long it'd take to get there from our property listings.
__mins driving to your place
Get an instant, personalised result:
- Show sellers you’re serious
- Secure viewings faster with agents
- No impact on your credit score
Your mortgage
Notes
Staying secure when looking for property
Ensure you're up to date with our latest advice on how to avoid fraud or scams when looking for property online.
Visit our security centre to find out moreDisclaimer - Property reference LED250185. The information displayed about this property comprises a property advertisement. Rightmove.co.uk makes no warranty as to the accuracy or completeness of the advertisement or any linked or associated information, and Rightmove has no control over the content. This property advertisement does not constitute property particulars. The information is provided and maintained by Pughs, Ledbury. Please contact the selling agent or developer directly to obtain any information which may be available under the terms of The Energy Performance of Buildings (Certificates and Inspections) (England and Wales) Regulations 2007 or the Home Report if in relation to a residential property in Scotland.
*This is the average speed from the provider with the fastest broadband package available at this postcode. The average speed displayed is based on the download speeds of at least 50% of customers at peak time (8pm to 10pm). Fibre/cable services at the postcode are subject to availability and may differ between properties within a postcode. Speeds can be affected by a range of technical and environmental factors. The speed at the property may be lower than that listed above. You can check the estimated speed and confirm availability to a property prior to purchasing on the broadband provider's website. Providers may increase charges. The information is provided and maintained by Decision Technologies Limited. **This is indicative only and based on a 2-person household with multiple devices and simultaneous usage. Broadband performance is affected by multiple factors including number of occupants and devices, simultaneous usage, router range etc. For more information speak to your broadband provider.
Map data ©OpenStreetMap contributors.







