Jacksons Bank, Bransford, Worcester
- PROPERTY TYPE
Residential Development
- BEDROOMS
3
- BATHROOMS
2
- SIZE
1,145 sq ft
106 sq m
Key features
- Full planning for three-bedroom detached home
- Countryside plot near Worcester and Malvern
- Private access via quiet shared track
- Traditional dormer-style design approved materials
- Renewable energy requirement of at least 10%
- Ideal self-build or small developer opportunity
Description
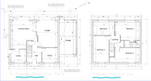
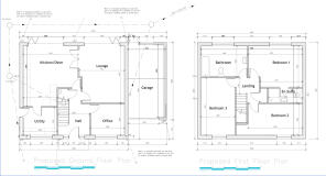
• Full planning permission granted (Ref: M/24/00290/FUL) for a new three-bedroom detached home with garage and garden.
• Positioned within the Bransford development boundary, allowing infill housing under current policy.
• Attractive countryside setting with private gated access from a quiet shared track off the A4103.
• Approved design includes dormer-style layout, three bedrooms, two bathrooms and generous ground floor living space.
• Traditional materials approved to complement the existing architecture, with brick and tile finishes.
• Energy-efficient design with planning condition requiring 10% of predicted energy from low-carbon or renewable sources.
• Section 106 agreement in place with affordable housing contribution of £12,797; CIL is payable upon build completion.
• Ideal for self-builders or developers seeking a ready-to-go site in a well-connected rural village location.
Development potential
Set within an established plot on the edge of Bransford, this attractive opportunity includes a well-presented home and an adjoining parcel of land with full planning permission for a new three-bedroom detached dwelling with garage and garden. Once developed, the site will comprise two individual homes in a generous countryside setting, offering excellent potential for self-builders, small-scale developers or those seeking space for extended family.
The approved design allows for a dormer-style home with its own private access, garden and parking, set in harmony with the existing property and surrounding landscape. The permission includes clear conditions around energy efficiency, requiring at least 10% of predicted energy use to be met through renewable sources, with the scheme supporting air source heating and solar PV. Full architectural plans are available and include a well-proportioned layout with generous living space, three bedrooms, and a traditional external finish using brickwork and tiled roofing to match the local character.
The site sits comfortably within the Bransford development boundary, making it one of the few plots in this sought-after rural location to benefit from planning consent under current policy. Access is via a private track off the A4103, with excellent links to Worcester and the wider region. The planning approval (ref: M/24/00290/FUL) is subject to a number of standard pre-commencement conditions, including submission of a construction management plan and final material details. Once built, permitted development rights will be restricted to preserve local amenity.
A Community Infrastructure Levy (CIL) is payable on completion, and a Section 106 agreement secures a modest contribution towards affordable housing locally. Buyers are advised to confirm final CIL figures based on the approved plans and council indexation. With planning in place and infrastructure nearby, this is a rare opportunity to add a high-quality home to an established countryside setting, with scope for future resale, income or multi-generational use.
Location
The land enjoys a semi-rural position on the edge of Bransford, a small village just west of Worcester. The location offers the peace and beauty of the Worcestershire countryside while remaining conveniently close to transport links and amenities. Worcester city centre is approximately 15 minutes away by car and offers a wealth of retail, cultural and educational opportunities, including the King’s School and Worcester University.
For commuters, the nearby A44 provides a direct route into Worcester or across to Bromyard and the Herefordshire border, while the M5 is reachable in under 20 minutes for wider travel.
Bransford is well-positioned for outdoor pursuits with easy access to the Malvern Hills Area of Outstanding Natural Beauty, perfect for walking, cycling and riding. Local pubs and farm shops are within a short drive, as are golf and leisure facilities at Bransford Golf Club. The home is also well situated for access to several primary and secondary schools in nearby villages and Worcester itself.
Services
The land would benefit from connection to mains electricity, water and drainage.
Council tax band C
Reservation Fee - refundable on exchange
A reservation fee, refundable on exchange, is payable prior to the issue of the Memorandum of Sale and after which the property may be marked as Sold Subject to Contract. The fee will be reimbursed upon the successful Exchange of Contracts.
The fee will be retained by Andrew Grant in the event that you the Buyer withdraws from the purchase or does not Exchange within 6 months of the fee being received other than for one or more of the following reasons:
1. Any significant material issues which individually are more than 1% of the agreed purchase price and are highlighted in a survey and were not evident or drawn to the attention of you, the Buyer, prior to the Memorandum of Sale being issued.
2. Serious and material defect in the seller’s legal title.
3. Local search revealing a matter that has a material adverse effect on the market value of the property that was previously undeclared and not in the public domain.
4. The vendor withdrawing the property from sale.
The reservation fee will be 0.5% of the accepted offer price for offers below £800,000 and 1% for offers of £800,000 or over. This fee, unless specified otherwise, is payable upon acceptance by the vendor of an offer from a buyer and completion of an assessment of the buyer’s financial status and ability to proceed.
Should a buyer’s financial position regarding the funding of the property prove to be fundamentally different from that declared by the buyer when the Memorandum of Sale was completed, then the Vendor has the right to withdraw from the sale and/or the reservation fee retained. For example, where the buyer declares themselves as a cash buyer but are in fact relying on an unsecured sale of their property. The reservation fee will not be refunded where there is an inability on the part of the Buyer to raise any required mortgage after the Memorandum of Sale is completed.
Once the reservation fee has been paid, any renegotiation of the price stated in the memorandum of sale for any reason other than those covered in points 1 to 3 above will lead to the reservation fee being retained. A further fee will be levied on any subsequent reduced offer that is accepted by the vendor. This further fee will be subject to the same conditions that prevail for all reservation fees outlined above.
Brochures
Brochure 1Jacksons Bank, Bransford, Worcester
NEAREST STATIONS
Distances are straight line measurements from the centre of the postcode- Malvern Link Station3.4 miles
- Worcester Foregate Street Station3.4 miles
- Worcester Shrub Hill Station3.9 miles
Notes
Disclaimer - Property reference GMO250037. The information displayed about this property comprises a property advertisement. Rightmove.co.uk makes no warranty as to the accuracy or completeness of the advertisement or any linked or associated information, and Rightmove has no control over the content. This property advertisement does not constitute property particulars. The information is provided and maintained by Andrew Grant, Covering the West Midlands. Please contact the selling agent or developer directly to obtain any information which may be available under the terms of The Energy Performance of Buildings (Certificates and Inspections) (England and Wales) Regulations 2007 or the Home Report if in relation to a residential property in Scotland.
Map data ©OpenStreetMap contributors.





