
Market Street, Chorley

- PROPERTY TYPE
Terraced
- BEDROOMS
2
- BATHROOMS
1
- SIZE
1,690 sq ft
157 sq m
- TENUREDescribes how you own a property. There are different types of tenure - freehold, leasehold, and commonhold.Read more about tenure in our glossary page.
Freehold
Key features
- Investment Opportunity
- Dual Income
- Commercial Unit
- 2 Bedroom Apartment
- Town Centre
- Must Be Viewed
- Awaiting EPC Rating
- Approx 1690 SQ.FT
Description
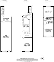
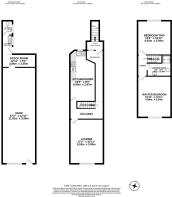
Ben Rose Estate Agents are pleased to present to the market this exceptional dual income investment opportunity - a fully tenanted, mixed-use property comprising a ground floor commercial unit and a two-bedroom self-contained flat above. Ideally positioned on a popular main street in Chorley Town Centre, the property offers strong, immediate rental returns with secure long-term tenants already in place, making it an attractive and low-maintenance addition to any investment portfolio.
The ground floor newsagents currently generates £950 per calendar month and comprises a spacious retail area with a separate store room. To the rear, there is a practical utility room with sink and a separate WC, offering convenience for day-to-day operation.
The self-contained two-bedroom apartment is accessed via an external staircase at the rear, leading to a private entrance on the first floor. The flat offers well-proportioned accommodation throughout, including a generously sized lounge, a modern kitchen/diner, two double bedrooms, and a contemporary three-piece shower room. The apartment currently generates £760 per calendar month.
Early viewing is highly recommended to avoid missing out on this attractive property offering excellent potential and future versatility.
Brochures
Market Street, ChorleyBrochure- COUNCIL TAXA payment made to your local authority in order to pay for local services like schools, libraries, and refuse collection. The amount you pay depends on the value of the property.Read more about council Tax in our glossary page.
- Band: A
- PARKINGDetails of how and where vehicles can be parked, and any associated costs.Read more about parking in our glossary page.
- Ask agent
- GARDENA property has access to an outdoor space, which could be private or shared.
- Ask agent
- ACCESSIBILITYHow a property has been adapted to meet the needs of vulnerable or disabled individuals.Read more about accessibility in our glossary page.
- Ask agent
Energy performance certificate - ask agent
Market Street, Chorley
Add an important place to see how long it'd take to get there from our property listings.
__mins driving to your place
Get an instant, personalised result:
- Show sellers you’re serious
- Secure viewings faster with agents
- No impact on your credit score
Your mortgage
Notes
Staying secure when looking for property
Ensure you're up to date with our latest advice on how to avoid fraud or scams when looking for property online.
Visit our security centre to find out moreDisclaimer - Property reference 34278397. The information displayed about this property comprises a property advertisement. Rightmove.co.uk makes no warranty as to the accuracy or completeness of the advertisement or any linked or associated information, and Rightmove has no control over the content. This property advertisement does not constitute property particulars. The information is provided and maintained by Ben Rose, Chorley. Please contact the selling agent or developer directly to obtain any information which may be available under the terms of The Energy Performance of Buildings (Certificates and Inspections) (England and Wales) Regulations 2007 or the Home Report if in relation to a residential property in Scotland.
*This is the average speed from the provider with the fastest broadband package available at this postcode. The average speed displayed is based on the download speeds of at least 50% of customers at peak time (8pm to 10pm). Fibre/cable services at the postcode are subject to availability and may differ between properties within a postcode. Speeds can be affected by a range of technical and environmental factors. The speed at the property may be lower than that listed above. You can check the estimated speed and confirm availability to a property prior to purchasing on the broadband provider's website. Providers may increase charges. The information is provided and maintained by Decision Technologies Limited. **This is indicative only and based on a 2-person household with multiple devices and simultaneous usage. Broadband performance is affected by multiple factors including number of occupants and devices, simultaneous usage, router range etc. For more information speak to your broadband provider.
Map data ©OpenStreetMap contributors.





