Cavil Head Farm, Acklington, Morpeth, Northumberland

- PROPERTY TYPE
Barn Conversion
- BEDROOMS
2
- BATHROOMS
2
- SIZE
Ask agent
- TENUREDescribes how you own a property. There are different types of tenure - freehold, leasehold, and commonhold.Read more about tenure in our glossary page.
Freehold
Key features
- Fabulous, two bedroom stone conversion
- Lovely south facing landscaped garden with gated driveway
- Traditional features include stone arched byre windows, beamed vaulted ceilings and wood burning stove
- Well appointed family kitchen/breakfast room
- Easy access to Amble, Warkworth and the Northumberland coast
- Viewing essential to appreciate the quality of accommodation
Description
The excellent stone conversion is one of only 14 individual homes in this quiet former Farm Steading, located just outside Acklington village, with easy access to the stunning Northumberland coastline, Amble, Druridge Bay and the A1 for commuting to Newcastle, Alnwick and Morpeth. The current owners have over the last 9 years, made a number of improvements and additions to the property, including a high quality summerhouse, substantial timber garden store, and the garden fully landscaped, with the creation of lots of lovely garden room areas, to enjoy the sun at different times of the day. There is further development potential within the open plan sitting room, should anybody wish to create a 3rd bedroom/home office/snug (subject to normal planning and building regulation consents).
The conversion has retained many traditional features including; stone arch byre windows, exposed stone to the internal walls, vaulted and beamed ceilings, internal doors with hammered pewter door handles, and oak flooring - creating a fantastic cosy country retreat, whether as a main home or second home in Northumberland.
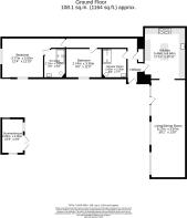
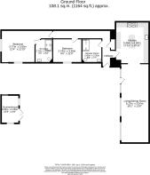
Living - Reception hallway with vaulted beamed ceiling, built in cloaks cupboard with sensor lighting and tiled flooring. Underfloor heating throughout the property | Magnificent and well appointed kitchen/breakfast room with a great feeling of space and light from the high vaulted ceiling and Velux windows to the roof - the kitchen is fitted with a range of cream cabinets with granite worktops, large central island with a breakfast bar, full height larder cupboards, a plate rack and feature display cabinets | The kitchen design incorporates; an inset porcelain sink, tray storage, integrated slimline dishwasher and washing machine, space for a range cooker and American style fridge/freezer | A stone arch opens from the kitchen to the fantastic open plan sitting/dining room - a superb space with open vaulted and beamed ceiling, and three traditional stone arched byre windows & a door overlooking the south facing terrace and garden, and cast iron wood burning stove.
Bedrooms - Bedroom hallway with light tunnels for natural light, and a vaulted ceiling | Excellent Shower room with walk in shower with Rainfall head, wash hand basin and WC - chrome heated towel rail and stylish neutral tiling | Superb Master bedroom with a range of fitted wardrobes with hanging, shelving and drawers - two windows overlook the garden | Well appointed Ensuite with a walk in shower with Rainfall head, wash hand basin housed in a vanity cabinet with drawers, WC and chromed heated towel rail | Double bedroom two, with built in wardrobes and a window overlooking the garden.
Externally - A fabulous south facing garden, landscaped for easy maintenance with a series of 'garden rooms' to enjoy the sun at different times of the day | The garden design incorporates gravel, paved and decked terraces and pathways, a well established pond, rockeries and mature planting | Summerhouse with French doors to the decked terrace, with power and lighting | Scandinavian style Potting shed and timber garden shed with power & lighting | Two log stores, external lighting, water tap and electrical points | Excellent secure garden and parking area.
Services: Mains Electric, Gas & Water | Sewage Treatment Plant | Tenure: Freehold with management fee of £800 annually to maintain sewage treatment plant and roadways | Council Tax: Band E | EPC: C
Brochures
Property BrochureFull Details- COUNCIL TAXA payment made to your local authority in order to pay for local services like schools, libraries, and refuse collection. The amount you pay depends on the value of the property.Read more about council Tax in our glossary page.
- Band: E
- PARKINGDetails of how and where vehicles can be parked, and any associated costs.Read more about parking in our glossary page.
- Yes
- GARDENA property has access to an outdoor space, which could be private or shared.
- Yes
- ACCESSIBILITYHow a property has been adapted to meet the needs of vulnerable or disabled individuals.Read more about accessibility in our glossary page.
- Ask agent
Cavil Head Farm, Acklington, Morpeth, Northumberland
Add an important place to see how long it'd take to get there from our property listings.
__mins driving to your place
Get an instant, personalised result:
- Show sellers you’re serious
- Secure viewings faster with agents
- No impact on your credit score
Your mortgage
Notes
Staying secure when looking for property
Ensure you're up to date with our latest advice on how to avoid fraud or scams when looking for property online.
Visit our security centre to find out moreDisclaimer - Property reference 12763411. The information displayed about this property comprises a property advertisement. Rightmove.co.uk makes no warranty as to the accuracy or completeness of the advertisement or any linked or associated information, and Rightmove has no control over the content. This property advertisement does not constitute property particulars. The information is provided and maintained by Sanderson Young, Alnwick. Please contact the selling agent or developer directly to obtain any information which may be available under the terms of The Energy Performance of Buildings (Certificates and Inspections) (England and Wales) Regulations 2007 or the Home Report if in relation to a residential property in Scotland.
*This is the average speed from the provider with the fastest broadband package available at this postcode. The average speed displayed is based on the download speeds of at least 50% of customers at peak time (8pm to 10pm). Fibre/cable services at the postcode are subject to availability and may differ between properties within a postcode. Speeds can be affected by a range of technical and environmental factors. The speed at the property may be lower than that listed above. You can check the estimated speed and confirm availability to a property prior to purchasing on the broadband provider's website. Providers may increase charges. The information is provided and maintained by Decision Technologies Limited. **This is indicative only and based on a 2-person household with multiple devices and simultaneous usage. Broadband performance is affected by multiple factors including number of occupants and devices, simultaneous usage, router range etc. For more information speak to your broadband provider.
Map data ©OpenStreetMap contributors.




