3 bedroom terraced house for sale
Apsley Street, Ashford

- PROPERTY TYPE
Terraced
- BEDROOMS
3
- BATHROOMS
1
- SIZE
Ask agent
- TENUREDescribes how you own a property. There are different types of tenure - freehold, leasehold, and commonhold.Read more about tenure in our glossary page.
Freehold
Key features
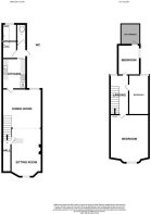
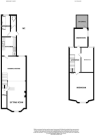
- A recently refurbished 3 Bedroom, Mid Terrace Home
- Ideal first time buy or investment purchase
- Located in the heart of Ashford Town Centre
- Updated & redecorated throughout boasting neutral décor
- Open-plan, Bay-fronted lounge/diner with fireplace
- Recently installed new kitchen & bathroom to rear
- Small compact, courtyard garden to rear with access
- On street parking (Permits available via ABC Council)
- EPC Rating: D (64), Council Tax Band: A - As of 2025
- Town Centre Location (Walking distance to Highspeed Station)
Description
With an impressive open-plan lounge/diner to front of the home with that charming bay window & fireplace. To the rear, is the recently installed kitchen, with useful wall & base units boasting space for white goods. Beyond the kitchen, is both a separate W/C & separate family bathroom.
Climb the stairs and you will find 3 bedrooms, a glorious master bedroom is located at the front of the home. To the rear, you'll find bedrooms 2 & 3. With the 3rd bedroom boasting a rear door where you'll find a sun-terrace overlooking the rear garden.
Externally, the home offers a low maintenance rear garden which has rear access too. The garden is laid with decorative stone, ideal for those busy families on the go.
We truly feel that this property would suit a wide variety of buyers, from first time buyers, or investment buyers looking for a rental property close to town. The property is not far from the town centre, which offers a vast range of leisure facilities with shops, cafes and restaurants. Ashford International train station is within walking distance and provides regular high-speed services to London in 38 minutes. The property is also well-served with other good transport links with bus services and the M20 motorway providing fast access to the Channel Tunnel and the port of Dover.
All mains services are connected, but none have been tested by the agent.
Brochures
Apsley Street, Ashford- COUNCIL TAXA payment made to your local authority in order to pay for local services like schools, libraries, and refuse collection. The amount you pay depends on the value of the property.Read more about council Tax in our glossary page.
- Band: C
- PARKINGDetails of how and where vehicles can be parked, and any associated costs.Read more about parking in our glossary page.
- Permit
- GARDENA property has access to an outdoor space, which could be private or shared.
- Yes
- ACCESSIBILITYHow a property has been adapted to meet the needs of vulnerable or disabled individuals.Read more about accessibility in our glossary page.
- Ask agent
Apsley Street, Ashford
Add an important place to see how long it'd take to get there from our property listings.
__mins driving to your place
Get an instant, personalised result:
- Show sellers you’re serious
- Secure viewings faster with agents
- No impact on your credit score



Your mortgage
Notes
Staying secure when looking for property
Ensure you're up to date with our latest advice on how to avoid fraud or scams when looking for property online.
Visit our security centre to find out moreDisclaimer - Property reference 34281536. The information displayed about this property comprises a property advertisement. Rightmove.co.uk makes no warranty as to the accuracy or completeness of the advertisement or any linked or associated information, and Rightmove has no control over the content. This property advertisement does not constitute property particulars. The information is provided and maintained by Hunters, Ashford. Please contact the selling agent or developer directly to obtain any information which may be available under the terms of The Energy Performance of Buildings (Certificates and Inspections) (England and Wales) Regulations 2007 or the Home Report if in relation to a residential property in Scotland.
*This is the average speed from the provider with the fastest broadband package available at this postcode. The average speed displayed is based on the download speeds of at least 50% of customers at peak time (8pm to 10pm). Fibre/cable services at the postcode are subject to availability and may differ between properties within a postcode. Speeds can be affected by a range of technical and environmental factors. The speed at the property may be lower than that listed above. You can check the estimated speed and confirm availability to a property prior to purchasing on the broadband provider's website. Providers may increase charges. The information is provided and maintained by Decision Technologies Limited. **This is indicative only and based on a 2-person household with multiple devices and simultaneous usage. Broadband performance is affected by multiple factors including number of occupants and devices, simultaneous usage, router range etc. For more information speak to your broadband provider.
Map data ©OpenStreetMap contributors.




