75 Kenmure Gardens, Bishopbriggs, G64 2BZ

- PROPERTY TYPE
Semi-Detached
- BEDROOMS
4
- BATHROOMS
3
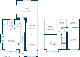
- SIZE
1,195 sq ft
111 sq m
- TENUREDescribes how you own a property. There are different types of tenure - freehold, leasehold, and commonhold.Read more about tenure in our glossary page.
Freehold
Description
This beautifully upgraded and professionally extended three-bedroom semi-detached villa is perfectly positioned within one of Bishopbriggs' most sought-after and convenient residential pockets.
The property has been thoughtfully modernised and significantly improved over our clients' ownership, resulting in an impressive, stylish, versatile and highly functional property, ideally suited to modern family living.
Internally, the accommodation is beautifully presented in fresh, neutral décor and enjoys a bright and airy feel throughout. The welcoming entrance hallway leads to a spacious main lounge, which, in turn, leads through to an internal hall, providing access to a striking dining kitchen, which is a superb space, featuring vaulted ceilings, with a defined and good sized dining recess off. The kitchen has a modern range of fitted cabinetry, complemented by quality work surfaces and integrated appliances. This area provides direct access to the enclosed rear garden, making it perfect for both family life and entertaining. A useful utility room and a stylish downstairs WC add to the convenience of the ground floor, while a further public room, to the front, currently utilised as a music studio, offers exceptional flexibility. This space benefits from high-speed wired internet connectivity, making it ideal for home working, creative pursuits or as an additional bedroom, if required.
Upstairs, there are three well-proportioned bedrooms, including a generous principal suite, with a contemporary en-suite shower room. The family bathroom has been beautifully finished and features a modern three-piece suite, with a walk-in shower enclosure.
Externally, the property enjoys a well-maintained and fully enclosed rear garden, offering a safe and private environment for children and pets, as well as an inviting setting for outdoor dining and relaxation.
The specification includes gas central heating and double glazing throughout, ensuring year-round comfort and efficiency.
Perfectly located for access to Bishopbriggs' wide range of amenities, this home is within easy reach of excellent schooling, supermarkets, leisure facilities, golf courses, and a superb choice of shops, cafes, and restaurants. There are excellent transport links nearby, with rail connections into Glasgow City Centre, convenient motorway access, and regular bus services.
A truly lovely home in a prime, family-friendly, location - early viewing is highly recommended.
ER Band - C
Local Area
Bishopbriggs offers a wealth of local amenities, including schools, at both primary and secondary levels, recreational facilities, supermarkets, shops, golf courses and a host of popular bars and restaurants. Bishopbriggs train station offers a regular service to both Glasgow and Edinburgh and there are nearby road links giving easy access to Glasgow City Centre and the central belt motorway network.
Brochures
Web Details- COUNCIL TAXA payment made to your local authority in order to pay for local services like schools, libraries, and refuse collection. The amount you pay depends on the value of the property.Read more about council Tax in our glossary page.
- Band: D
- PARKINGDetails of how and where vehicles can be parked, and any associated costs.Read more about parking in our glossary page.
- Driveway
- GARDENA property has access to an outdoor space, which could be private or shared.
- Yes
- ACCESSIBILITYHow a property has been adapted to meet the needs of vulnerable or disabled individuals.Read more about accessibility in our glossary page.
- Ask agent
Energy performance certificate - ask agent
75 Kenmure Gardens, Bishopbriggs, G64 2BZ
Add an important place to see how long it'd take to get there from our property listings.
__mins driving to your place
Get an instant, personalised result:
- Show sellers you’re serious
- Secure viewings faster with agents
- No impact on your credit score
Your mortgage
Notes
Staying secure when looking for property
Ensure you're up to date with our latest advice on how to avoid fraud or scams when looking for property online.
Visit our security centre to find out moreDisclaimer - Property reference BD4004. The information displayed about this property comprises a property advertisement. Rightmove.co.uk makes no warranty as to the accuracy or completeness of the advertisement or any linked or associated information, and Rightmove has no control over the content. This property advertisement does not constitute property particulars. The information is provided and maintained by Corum, Bearsden. Please contact the selling agent or developer directly to obtain any information which may be available under the terms of The Energy Performance of Buildings (Certificates and Inspections) (England and Wales) Regulations 2007 or the Home Report if in relation to a residential property in Scotland.
*This is the average speed from the provider with the fastest broadband package available at this postcode. The average speed displayed is based on the download speeds of at least 50% of customers at peak time (8pm to 10pm). Fibre/cable services at the postcode are subject to availability and may differ between properties within a postcode. Speeds can be affected by a range of technical and environmental factors. The speed at the property may be lower than that listed above. You can check the estimated speed and confirm availability to a property prior to purchasing on the broadband provider's website. Providers may increase charges. The information is provided and maintained by Decision Technologies Limited. **This is indicative only and based on a 2-person household with multiple devices and simultaneous usage. Broadband performance is affected by multiple factors including number of occupants and devices, simultaneous usage, router range etc. For more information speak to your broadband provider.
Map data ©OpenStreetMap contributors.







