
Hawthornden Grove, Yalding

- PROPERTY TYPE
Semi-Detached
- BEDROOMS
3
- BATHROOMS
2
- SIZE
Ask agent
- TENUREDescribes how you own a property. There are different types of tenure - freehold, leasehold, and commonhold.Read more about tenure in our glossary page.
Freehold
Key features
- Millwood Designer Home
- Three Bedrooms
- Kitchen/Dining Room
- Living Room
- Cloakroom/WC
- Ensuite & Family Bathroom
- Pretty Gardens
- Communal Grounds
- Parking & Garage
Description
Jack Charles are delighted to offer for sale this beautifully presented three bedroom semi-detached home, set within a small and exclusive development built by Millwood Designer Homes in the sought-after village of Yalding.
This attractive and contemporary home offers bright, spacious accommodation, finished to an exceptional standard throughout. It forms part of a select collection of properties and enjoys a charming outlook across open meadowland to the front, adding to its rural appeal.
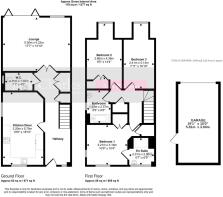
The accommodation is arranged over two floors and includes a welcoming entrance hall leading to a stylish open plan kitchen and dining area, fitted with a comprehensive range of units, Bosch integrated appliances, and elegant Amtico flooring. The living room sits to the rear and features bi-fold doors that open onto the beautifully maintained south facing garden, creating a seamless connection between the indoor and outdoor spaces. Additional ground-floor benefits include a utility cupboard with plumbing and space for laundry appliances, along with a useful understairs storage cupboard.
On the first floor, there are three generous double bedrooms, all beautifully presented. The principal bedroom enjoys dual aspect windows, built-in wardrobes, and a stylish en suite shower room. A further double bedroom features fitted wardrobes, while the family bathroom is finished with Roca sanitary ware, including a bath with an overhead shower.
Externally, the property offers a good-sized south facing rear garden, mainly laid to lawn with a patio area ideal for outdoor dining and entertaining. There is a garage with an up-and over door and side personnel access, as well as a driveway providing off road parking for two vehicles. To the front, the home enjoys an open outlook across meadowland, providing a peaceful and picturesque setting.
Yalding - Situated in the ever popular Yalding, the house is just a stroll from the High Street and the attractive centre of the village which offers local shops, public houses and restaurants. Yalding is one of those quintessential Kent villages steeped in history with the aesthetics to match. There is also a train station and easy access to the larger 'A' road network a short drive away.
Brochures
Hawthornden Grove, YaldingBrochure- COUNCIL TAXA payment made to your local authority in order to pay for local services like schools, libraries, and refuse collection. The amount you pay depends on the value of the property.Read more about council Tax in our glossary page.
- Band: E
- PARKINGDetails of how and where vehicles can be parked, and any associated costs.Read more about parking in our glossary page.
- Garage,Driveway
- GARDENA property has access to an outdoor space, which could be private or shared.
- Yes
- ACCESSIBILITYHow a property has been adapted to meet the needs of vulnerable or disabled individuals.Read more about accessibility in our glossary page.
- Ask agent
Hawthornden Grove, Yalding
Add an important place to see how long it'd take to get there from our property listings.
__mins driving to your place
Get an instant, personalised result:
- Show sellers you’re serious
- Secure viewings faster with agents
- No impact on your credit score
Your mortgage
Notes
Staying secure when looking for property
Ensure you're up to date with our latest advice on how to avoid fraud or scams when looking for property online.
Visit our security centre to find out moreDisclaimer - Property reference 34283388. The information displayed about this property comprises a property advertisement. Rightmove.co.uk makes no warranty as to the accuracy or completeness of the advertisement or any linked or associated information, and Rightmove has no control over the content. This property advertisement does not constitute property particulars. The information is provided and maintained by Jack Charles, Tonbridge. Please contact the selling agent or developer directly to obtain any information which may be available under the terms of The Energy Performance of Buildings (Certificates and Inspections) (England and Wales) Regulations 2007 or the Home Report if in relation to a residential property in Scotland.
*This is the average speed from the provider with the fastest broadband package available at this postcode. The average speed displayed is based on the download speeds of at least 50% of customers at peak time (8pm to 10pm). Fibre/cable services at the postcode are subject to availability and may differ between properties within a postcode. Speeds can be affected by a range of technical and environmental factors. The speed at the property may be lower than that listed above. You can check the estimated speed and confirm availability to a property prior to purchasing on the broadband provider's website. Providers may increase charges. The information is provided and maintained by Decision Technologies Limited. **This is indicative only and based on a 2-person household with multiple devices and simultaneous usage. Broadband performance is affected by multiple factors including number of occupants and devices, simultaneous usage, router range etc. For more information speak to your broadband provider.
Map data ©OpenStreetMap contributors.





