Light industrial facility to lease
110 Worrall Avenue/4a Catton Road, Nottingham, Nottinghamshire, NG5
- SIZE AVAILABLE
5,414 sq ft
503 sq m
- SECTOR
Light industrial facility to lease
Lease details
- Lease available date:
- Now
- Lease type:
- Long term
- Furnish type:
- Unfurnished
Key features
- DESIGNATED PARKING AREA
- EXCELLENT LOCATION
- MINIMUM EAVES HEIGHT OF 2.75M
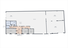
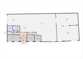
Description
The subject property comprises of a semi-detached
warehouse unit within the suburb of Arnold.
The property is of steel frame construction with brickwork
elevation beneath a pitched roof.
Internally, the property provides accommodation over
ground floor level including office and W/C facilities.
The property further benefits from designated parking
and service area.
Location
The subject property is situated off Catton Road Industrial
Estate with access via Worrall Avenue as well as Catton
Road.
Worrall Avenue has links with Front Street to the west of
the subject property, which is part of the main retail area
of Arnold.
Catton Road is an existing industrial area with residential
properties in close proximity. The subject property
is in close proximity to the A60 Mansfield Road and is
approximately 4 miles to the north of Nottingham City
Centre.
Access to the centre of Nottingham is by Mansfield
Road which also provides a link to the citys' outer Ring
Road with quick and easy access being available to both
Junctions 25 and 26 of the M1 Motorway approximately 5
miles away.
Business Rates
Rateable value: £16,250
For further information on Rates Payable and
Small Business Rates Relief contact Gedling
Borough Council.
Planning
Interested parties should satisfy themselves
that the use of the building is sufficient to their
purposes.
For further information, please contact Gedling
borough Council.
EPC (Energy Performance Certificates)
A copy of the building's Energy Performance
Certificate can be obtained from the Agents.
Terms
The premises are available on a
new Full Repairing and Insuring
Lease on terms to be agreed.
Rent
£30,000 (Thirty Thousand Pounds)
Per Annum Exclusive
Services
We understand that mains electricity, water
and drainage are connected to the premises.
However, we recommend that interested
parties contact the relevant service providers to
confirm this.
VAT
Prices are quoted exclusive of Value Added Tax
(VAT).
Legal Costs
Each party will be responsible for their own
legal costs incurred in this transaction.
Viewing
Strictly by prior appointment with the Sole
Agents Musson Liggins Ltd.
CONTACT
Matthew Wade BSC (Hons) MRICS
William Cowley
Brochures
110 Worrall Avenue/4a Catton Road, Nottingham, Nottinghamshire, NG5
NEAREST STATIONS
Distances are straight line measurements from the centre of the postcode- Moor Bridge Tram Stop2.9 miles
- Bulwell Forest Tram Stop2.9 miles
- Basford Tram Stop2.9 miles
Notes
Disclaimer - Property reference 110Worrall. The information displayed about this property comprises a property advertisement. Rightmove.co.uk makes no warranty as to the accuracy or completeness of the advertisement or any linked or associated information, and Rightmove has no control over the content. This property advertisement does not constitute property particulars. The information is provided and maintained by Musson Liggins Limited, Nottingham. Please contact the selling agent or developer directly to obtain any information which may be available under the terms of The Energy Performance of Buildings (Certificates and Inspections) (England and Wales) Regulations 2007 or the Home Report if in relation to a residential property in Scotland.
Map data ©OpenStreetMap contributors.





