Georgian Close, Ringwood, BH24

- BEDROOMS
3
- BATHROOMS
2
- SIZE
Ask agent
- TENUREDescribes how you own a property. There are different types of tenure - freehold, leasehold, and commonhold.Read more about tenure in our glossary page.
Freehold
Key features
- 3 bedroom Semi-detached House
- Driveway parking
- Ensuite shower room
- Easy to maintain rear garden
- Three spacious double bedrooms
- Separate utility room
- Located in a quiet cul-de-sac
- Large multi-use reception rooms
Description
PRICE REDUCTION Introducing this 3 bedroom semi-detached house, located in a peaceful cul-de-sac in the desirable area of Ringwood.
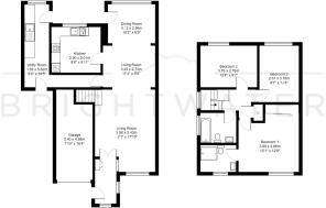
LIVING ROOM
8.17m x 7.43m (26'8" x 24'3")
DINING ROOM
3.13m x 2.56m (10'3" x 8'5")
Upon entering, you are greeted by an entrance hallway with convenient storage cupboards, leading to a bright and spacious lounge which flows seamlessly into the dining room and then then into a versatile playroom or office with direct access to the garden.
KITCHEN
3.01m x 2.90m (9'1" x 9'6")
UTILITY ROOM
5.62m x 1.62m (18'5" x 5'4")
The modern kitchen boasts a range of base and floor units, an oven and gas hob, integrated dishwasher, and ample space for a fridge freezer. There is also a spacious utility room with cupboard storage and room for a washing machine and tumble dryer, with access to both the back and front garden.
BEDROOM ONE
3.99m x 3.68m (13'1" x 12'8")
BEDROOM TWO
3.76m x 2.78m (12'4" x 9'2")
BEDROOM THREE
3.76m x 2.61m (12'4" x 8'7")
Upstairs, the property features three generous double bedrooms, one of which benefits from an en-suite shower room and mirrored built-in double wardrobes. The modern fully tiled family bathroom includes a shower above the bath and a heated towel rail, as well as an airing cupboard and loft storage.
Other notable features of this property include gas-fired central heating, driveway parking, a garage, and an easy-to-maintain patio garden.
Located in Ringwood, residents can enjoy a range of amenities nearby, including shops, restaurants, and leisure facilities. Nature lovers will appreciate the close proximity to the New Forest National Park, offering opportunities for outdoor adventures and exploration.
Don't miss out on the opportunity to view this spacious family home property. Contact us today to arrange a viewing.
EPC Rating: C
- COUNCIL TAXA payment made to your local authority in order to pay for local services like schools, libraries, and refuse collection. The amount you pay depends on the value of the property.Read more about council Tax in our glossary page.
- Ask agent
- PARKINGDetails of how and where vehicles can be parked, and any associated costs.Read more about parking in our glossary page.
- Yes
- GARDENA property has access to an outdoor space, which could be private or shared.
- Yes
- ACCESSIBILITYHow a property has been adapted to meet the needs of vulnerable or disabled individuals.Read more about accessibility in our glossary page.
- Ask agent
Energy performance certificate - ask agent
Georgian Close, Ringwood, BH24
Add an important place to see how long it'd take to get there from our property listings.
__mins driving to your place
Get an instant, personalised result:
- Show sellers you’re serious
- Secure viewings faster with agents
- No impact on your credit score
Your mortgage
Notes
Staying secure when looking for property
Ensure you're up to date with our latest advice on how to avoid fraud or scams when looking for property online.
Visit our security centre to find out moreDisclaimer - Property reference a0223f99-11e0-4fad-82aa-e08ea3f4ece6. The information displayed about this property comprises a property advertisement. Rightmove.co.uk makes no warranty as to the accuracy or completeness of the advertisement or any linked or associated information, and Rightmove has no control over the content. This property advertisement does not constitute property particulars. The information is provided and maintained by BrightWater, Ringwood. Please contact the selling agent or developer directly to obtain any information which may be available under the terms of The Energy Performance of Buildings (Certificates and Inspections) (England and Wales) Regulations 2007 or the Home Report if in relation to a residential property in Scotland.
*This is the average speed from the provider with the fastest broadband package available at this postcode. The average speed displayed is based on the download speeds of at least 50% of customers at peak time (8pm to 10pm). Fibre/cable services at the postcode are subject to availability and may differ between properties within a postcode. Speeds can be affected by a range of technical and environmental factors. The speed at the property may be lower than that listed above. You can check the estimated speed and confirm availability to a property prior to purchasing on the broadband provider's website. Providers may increase charges. The information is provided and maintained by Decision Technologies Limited. **This is indicative only and based on a 2-person household with multiple devices and simultaneous usage. Broadband performance is affected by multiple factors including number of occupants and devices, simultaneous usage, router range etc. For more information speak to your broadband provider.
Map data ©OpenStreetMap contributors.





