Burnbake Road, Verwood, BH31

- PROPERTY TYPE
Detached
- BEDROOMS
3
- BATHROOMS
1
- SIZE
Ask agent
- TENUREDescribes how you own a property. There are different types of tenure - freehold, leasehold, and commonhold.Read more about tenure in our glossary page.
Freehold
Key features
- **NO ONWARD CHAIN**
- Detached Family Home
- Attached Single Garage
- Front and Rear Gardens
- Driveway for Multiple Vehicles
- Ground Floor Cloakroom
- UPVC Double Glazed Conservatory
- 18ft Lounge
Description
A charming detached house in the sought-after location of Verwood is now available. This family home boasts 2 spacious double bedrooms and 1 single bedroom, along with a modern bathroom.
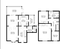
ENTRANCE HALL
6.15m x 1.75m
(20'1" x 5'7")
Upon entering the property, you will find a welcoming entrance hall with stairs leading to the first floor and a useful understairs recess.
LIVING ROOM
5.44m x 3.75m
(17'8" x 12'3")
DINNG ROOM
3.58m x 2.95m
(11'7" x 9'6")
CONSERVATORY
3.41m x 2.82m
(11'1" x 9'2")
Bright and spacious lounge with a feature brick fireplace. The lounge flows seamlessly into the dining room, which offers access to the Edwardian style conservatory via sliding doors. with French doors to the rear garden
KITCHEN
3.77m x 2.54m
(12'3" x 8'3")
The fitted kitchen features a range of floor and wall units, roll edge work surface , space for under counter fridge, free standing cooker and concealed extractor hood above, perfect for all your culinary needs while a lean-to rear lobby provides additional storage space.
UTILITY ROOM
1.79m x 1.23m
(5'8" x 4")
Additionally, there is a utility room with space and plumbing under worksurface for washing machine and dishwasher and a convenient cloakroom on the ground floor.
BEDROOM ONE
4.38m x 3.68m
(14'3" x 12")
BEDROOM TWO
3.40m x 2.97m
(11'1" x 9'7")
BEDROOM THREE
2.55m x 2.26m
(8'3" x 7'4")
On the first floor, the main bedroom is fitted with a range of built in triple wardrobes comprising 3 mirrored fronted sliding doors, hanging and shelving space and a front aspect, while the second bedroom offers built-in wardrobes and overlooks the rear of the property. The third bedroom is a cosy single room, ideal for children or guests.
BATHROOM
2.54m x 1.69m
(8'3" x 5'5")
The modern family bathroom features a double shower cubical and a separate bath with a shower attachment.
Outside, the property benefits from a driveway for 2 cars and a single garage, providing ample parking space. The rear garden includes a paved patio area, large lawn, a brick built barbecue, and a garden shed.
Situated within walking distance to Morrisons supermarket, the village doctors surgery, a local public house, and a popular fish and chip shop, this property offers convenience and accessibility to everyday amenities.
Don't miss the opportunity to view this fantastic property in person. Contact us to arrange a viewing today.
EPC Rating: D
- COUNCIL TAXA payment made to your local authority in order to pay for local services like schools, libraries, and refuse collection. The amount you pay depends on the value of the property.Read more about council Tax in our glossary page.
- Band: E
- PARKINGDetails of how and where vehicles can be parked, and any associated costs.Read more about parking in our glossary page.
- Yes
- GARDENA property has access to an outdoor space, which could be private or shared.
- Private garden
- ACCESSIBILITYHow a property has been adapted to meet the needs of vulnerable or disabled individuals.Read more about accessibility in our glossary page.
- Ask agent
Energy performance certificate - ask agent
Burnbake Road, Verwood, BH31
Add an important place to see how long it'd take to get there from our property listings.
__mins driving to your place
Get an instant, personalised result:
- Show sellers you’re serious
- Secure viewings faster with agents
- No impact on your credit score
Your mortgage
Notes
Staying secure when looking for property
Ensure you're up to date with our latest advice on how to avoid fraud or scams when looking for property online.
Visit our security centre to find out moreDisclaimer - Property reference a0223faf-4794-4346-b89e-12fca6b6000c. The information displayed about this property comprises a property advertisement. Rightmove.co.uk makes no warranty as to the accuracy or completeness of the advertisement or any linked or associated information, and Rightmove has no control over the content. This property advertisement does not constitute property particulars. The information is provided and maintained by BrightWater, Ringwood. Please contact the selling agent or developer directly to obtain any information which may be available under the terms of The Energy Performance of Buildings (Certificates and Inspections) (England and Wales) Regulations 2007 or the Home Report if in relation to a residential property in Scotland.
*This is the average speed from the provider with the fastest broadband package available at this postcode. The average speed displayed is based on the download speeds of at least 50% of customers at peak time (8pm to 10pm). Fibre/cable services at the postcode are subject to availability and may differ between properties within a postcode. Speeds can be affected by a range of technical and environmental factors. The speed at the property may be lower than that listed above. You can check the estimated speed and confirm availability to a property prior to purchasing on the broadband provider's website. Providers may increase charges. The information is provided and maintained by Decision Technologies Limited. **This is indicative only and based on a 2-person household with multiple devices and simultaneous usage. Broadband performance is affected by multiple factors including number of occupants and devices, simultaneous usage, router range etc. For more information speak to your broadband provider.
Map data ©OpenStreetMap contributors.





