Plot for sale
Reacliffe Road, Rudyard,
- PROPERTY TYPE
Plot
- SIZE
Ask agent
Key features
- Building Plot Overlooking Rudyard Lake
- Outstanding Opportunity
- Full Planning Permission
- Application Number (SMD/2024/0023)
- Total Plot Around 2.5 Acres
- Apply Leek Office For Further Details
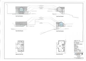
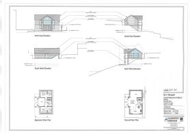
Description
* A further 2.38 acres or thereabouts of woodland is located adjacent to the building plot and is also being offered with the sale. The approval is for a two level detached dwelling, with the ground floor consisting of a Living Room, Two Bedrooms, one with En-Suite, Study, Bathroom and Utility. To the first floor is an open plan Kitchen/Dining Area, with balcony, providing spectacular views of the lake.
* The planning approval incorporates the use of the dwelling as a permanent residence, so is ideal for residential or holiday accommodation.
* Rudyard is a lakeside village in Staffordshire, to the west of the popular market town of Leek. The village is situated some 10 miles South of Macclesfield which has a busy train station offering commuting into Manchester and London. The property is located near the Cheshire border and ideally placed for an easy commute to Leek, Congleton, Macclesfield or Buxton. Leek is a thriving historic market town of Leek which benefits from both independent local traders and supermarkets including Morrisons and Sainsbury's. Rudyard is also well placed for good local schools and, in the private sector, for Kings School and Beech Hall School, Macclesfield.
SERVICES:
It is understood that the property currently has a septic tank, and other main services are located within close proximity, but potential buyers are recommended to make their own enquiries regarding the connection to the site.
TENURE:
Freehold
METHOD OF SALE:
Private Treaty.
VIEWING:
Strictly by appointment with the office. Viewers must exercise caution when visiting the site.
WHAT3WORDS: PRINCELY/CLOUDS/TILTS
Services - It is understood that the property currently has a septic tank, and other main services are located within close proximity, but potential buyers are recommended to make their own enquiries regarding the connection to the site.
Tenure - Freehold
Method Of Sale - The property is offered for sale by private treaty.
Viewing - Strictly by appointment with the office. Viewers must exercise caution when visiting the site.
WHAT3WORDS: PRINCELY/CLOUDS/TILTS
Brochures
Reacliffe Road, Rudyard, BrochureReacliffe Road, Rudyard,
NEAREST STATIONS
Distances are straight line measurements from the centre of the postcode- Congleton Station4.9 miles
Notes
Disclaimer - Property reference 34287367. The information displayed about this property comprises a property advertisement. Rightmove.co.uk makes no warranty as to the accuracy or completeness of the advertisement or any linked or associated information, and Rightmove has no control over the content. This property advertisement does not constitute property particulars. The information is provided and maintained by Bury & Hilton, Leek. Please contact the selling agent or developer directly to obtain any information which may be available under the terms of The Energy Performance of Buildings (Certificates and Inspections) (England and Wales) Regulations 2007 or the Home Report if in relation to a residential property in Scotland.
Map data ©OpenStreetMap contributors.








