
Langley Park, Foundry Lane, Chippenham, Wiltshire, SN15

- PROPERTY TYPE
Terraced
- BEDROOMS
3
- BATHROOMS
2
- SIZE
Ask agent
- TENUREDescribes how you own a property. There are different types of tenure - freehold, leasehold, and commonhold.Read more about tenure in our glossary page.
Ask agent
Description
Example:
Full Market Value: £345,000
75% Share Price: £258750
5% Deposit: £12,937.50
Rent on un-owned share: £197.66 PCM
Estimated estate charge TBC PCM
Welcome to The Francis, a beautifully designed 3-bedroom home ideal for modern family living. This property combines comfort, style, and practicality with well-planned spaces throughout.
Langley Park presents the most centrally located new home development in Chippenham, offering unparalleled convenience just a 3-minute walk from the train station. This prime position ensures effortless commutes, with Bath Spa only 15 minutes away and Bristol Temple Meads reachable in just 30 minutes. Chippenham is an ideal family destination, offering both immediate advantages and long-term benefits. Its vibrant high street and nearby retail parks provide a diverse array of supermarkets, popular high street brands, and unique independent shops and cafes.
The area also benefits from excellent access to high performing local schools:-
Ivy Lane Primary, Monkton Park Primary, Redland Primary, all rated Good by Ofsted, within a mile.
Secondary education covered by Hardenhuish School, Abbeyfield School & Sixth Form, Sheldon School — all Good rated and less than ~1.5 miles away.
Further education options via Wiltshire College & University Centre, just ~0.3 miles from your doorstep.
Green spaces and parks are close by:-
Just a few minutes’ walk to John Coles Park and Monkton Park—perfect for morning jogs, leisurely walks, or letting children run free.
A wealth of play options: four major play areas with Multi-Use Games Areas (MUGA), including at The Arc Park and Pewsham Park.
Generous open spaces and woodland trails at Westmead Open Space and Borough Lands, ideal for nature lovers, dog walkers, or weekend picnics.
Outdoor facilities complemented by community cafés, art & sculpture trails, climbing & skatepark — active, social, and family-friendly.
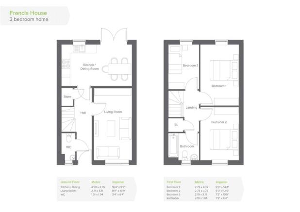
Ground Floor:
• Entrance hallway with stairs to first floor
• Handy WC and storage cupboard
• Spacious living room with front-facing window
• Kitchen/dining room at the rear with:
• French doors opening to the garden
• Fitted kitchen units with stainless steel single oven
• 4 ring hob, tiled splashback & extractor hood
• Stainless steel sink with mixer tap
First Floor:
• 3 bedrooms (2 doubles & 1 single)
• Family bathroom with:
• White sanitaryware
• Shower over the bath
• Soft cushion, non-slip vinyl flooring
Outside:
• Enclosed, fully turfed rear garden with close board fencing
• 2 allocated parking spaces
*Please note, as a Shared Ownership purchase there are likely to be additional legal fees during the conveyancing process, your solicitor can advise you of these.
*The Shared Ownership scheme is a Part Buy, Part Rent way of owning your own home for a smaller upfront payment. With Shared Ownership, you buy a share of your home using a mortgage from a bank or building society and pay a subsidised rent on the share you did not purchase. The combined mortgage and rent is usually less than you’d expect to pay if you bought a similar property outright. When you’re ready, you can buy more shares until you staircase to owning 100% of your home.
- COUNCIL TAXA payment made to your local authority in order to pay for local services like schools, libraries, and refuse collection. The amount you pay depends on the value of the property.Read more about council Tax in our glossary page.
- Band: TBC
- PARKINGDetails of how and where vehicles can be parked, and any associated costs.Read more about parking in our glossary page.
- Yes
- GARDENA property has access to an outdoor space, which could be private or shared.
- Yes
- ACCESSIBILITYHow a property has been adapted to meet the needs of vulnerable or disabled individuals.Read more about accessibility in our glossary page.
- Ask agent
Energy performance certificate - ask agent
Langley Park, Foundry Lane, Chippenham, Wiltshire, SN15
Add an important place to see how long it'd take to get there from our property listings.
__mins driving to your place
Get an instant, personalised result:
- Show sellers you’re serious
- Secure viewings faster with agents
- No impact on your credit score
Affordability
Notes
Staying secure when looking for property
Ensure you're up to date with our latest advice on how to avoid fraud or scams when looking for property online.
Visit our security centre to find out moreDisclaimer - Property reference AQJ250359. The information displayed about this property comprises a property advertisement. Rightmove.co.uk makes no warranty as to the accuracy or completeness of the advertisement or any linked or associated information, and Rightmove has no control over the content. This property advertisement does not constitute property particulars. The information is provided and maintained by Taylors Estate Agents, Swindon. Please contact the selling agent or developer directly to obtain any information which may be available under the terms of The Energy Performance of Buildings (Certificates and Inspections) (England and Wales) Regulations 2007 or the Home Report if in relation to a residential property in Scotland.
*This is the average speed from the provider with the fastest broadband package available at this postcode. The average speed displayed is based on the download speeds of at least 50% of customers at peak time (8pm to 10pm). Fibre/cable services at the postcode are subject to availability and may differ between properties within a postcode. Speeds can be affected by a range of technical and environmental factors. The speed at the property may be lower than that listed above. You can check the estimated speed and confirm availability to a property prior to purchasing on the broadband provider's website. Providers may increase charges. The information is provided and maintained by Decision Technologies Limited. **This is indicative only and based on a 2-person household with multiple devices and simultaneous usage. Broadband performance is affected by multiple factors including number of occupants and devices, simultaneous usage, router range etc. For more information speak to your broadband provider.
Map data ©OpenStreetMap contributors.




