3 bedroom semi-detached bungalow for sale
2 Easter Road, Busby

- PROPERTY TYPE
Semi-Detached Bungalow
- BEDROOMS
3
- BATHROOMS
1
- SIZE
1,011 sq ft
94 sq m
- TENUREDescribes how you own a property. There are different types of tenure - freehold, leasehold, and commonhold.Read more about tenure in our glossary page.
Freehold
Description
Property Description
This traditional semi-detached bungalow has been fully refurbished to deliver an easy move to the local market place. Displaying flexible accommodation across two levels, the subjects sit within good corner gardens and are well positioned for all local amenities and excellent schooling.
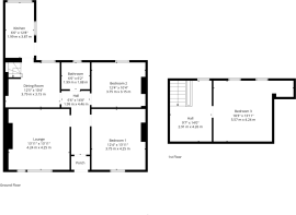
The ground floor extends to entrance vestibule, traditional reception hallway, spacious formal lounge, two double bedrooms, main family bathroom, lovely formal dining room, and modern fitted kitchen giving access to rear gardens. Upstairs provides useful landing space leading to further double bedroom. Specification includes upgraded gas central heating system, newly installed double glazing, modern flooring and carpeting throughout and overall the property is freshly painted and decorated.
Externally the property is set within level, mature gardens which also provide scope for for further extension/development (subject to planning).
ER Band D
Local Area
Busby is a village within East Renfrewshire and lies approximately six miles south of Glasgow City Centre and 0.8 miles northwest to the outskirts of East Kilbride. Busby is served by a train station giving direct access to the city centre in addition to locally providing catchment to Busby Primary School and secondary schooling is available via Williamwood High School or St Ninian's High School. The village provides The Busby Hotel which is a major landmark and was extensively refurbished in 2014 in addition to the White Cart and Cartvale pubs on the main street. Busby is a short distance drive to Clarkston which provides further retail outlets, independent cafes, and restaurants.
Brochures
Web Details- COUNCIL TAXA payment made to your local authority in order to pay for local services like schools, libraries, and refuse collection. The amount you pay depends on the value of the property.Read more about council Tax in our glossary page.
- Band: E
- PARKINGDetails of how and where vehicles can be parked, and any associated costs.Read more about parking in our glossary page.
- Driveway
- GARDENA property has access to an outdoor space, which could be private or shared.
- Yes
- ACCESSIBILITYHow a property has been adapted to meet the needs of vulnerable or disabled individuals.Read more about accessibility in our glossary page.
- Ask agent
2 Easter Road, Busby
Add an important place to see how long it'd take to get there from our property listings.
__mins driving to your place
Get an instant, personalised result:
- Show sellers you’re serious
- Secure viewings faster with agents
- No impact on your credit score
Your mortgage
Notes
Staying secure when looking for property
Ensure you're up to date with our latest advice on how to avoid fraud or scams when looking for property online.
Visit our security centre to find out moreDisclaimer - Property reference CC0935. The information displayed about this property comprises a property advertisement. Rightmove.co.uk makes no warranty as to the accuracy or completeness of the advertisement or any linked or associated information, and Rightmove has no control over the content. This property advertisement does not constitute property particulars. The information is provided and maintained by Corum, Clarkston. Please contact the selling agent or developer directly to obtain any information which may be available under the terms of The Energy Performance of Buildings (Certificates and Inspections) (England and Wales) Regulations 2007 or the Home Report if in relation to a residential property in Scotland.
*This is the average speed from the provider with the fastest broadband package available at this postcode. The average speed displayed is based on the download speeds of at least 50% of customers at peak time (8pm to 10pm). Fibre/cable services at the postcode are subject to availability and may differ between properties within a postcode. Speeds can be affected by a range of technical and environmental factors. The speed at the property may be lower than that listed above. You can check the estimated speed and confirm availability to a property prior to purchasing on the broadband provider's website. Providers may increase charges. The information is provided and maintained by Decision Technologies Limited. **This is indicative only and based on a 2-person household with multiple devices and simultaneous usage. Broadband performance is affected by multiple factors including number of occupants and devices, simultaneous usage, router range etc. For more information speak to your broadband provider.
Map data ©OpenStreetMap contributors.




