Park Avenue, Wortley, Sheffield, S35 7DR
- PROPERTY TYPE
Plot
- BEDROOMS
5
- BATHROOMS
3
- SIZE
3,000 sq ft
279 sq m
Key features
- 1/3 of An acre with Planning Permission for 2 x Building Plots
- Tucked Away Sough After Location
- Historic Grounds of Wortley Hall
- Generous 5 Bedroom Accommodation to Each Home
- Contemporary Open Plan Design to the Ground Floor
- Lower Ground Floor Leisure Suite
- Ideal Self Build Project - Sold as 1 or Split
- Stunning Setting & Versatility to retain the original property
- Open countryside & Idyllic Outdoors Lifestyle
- Local Amenities - Highly Regarded Schools - M1 Access
Description
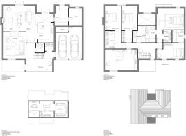
A LUXURY DEVELOPMENT OPPORTUNITY of 2 bespoke homes each providing SPACIOUS 5 BEDROOM accommodation boasting generous gardens, a STUNNING RURAL BACKDROP and an EXCEPTIONAL VILLAGE LOCATION. The site measures 1/3 of an acre and currently is home to a 3/4 bedroom detached house. The site offers the versatility of demolition and development of two new build homes; alternatively retaining the original property and the development of one new build home.
Each property has been sympathetically designed taking full advantage of the plots they sit on; presenting spacious light filled accommodation, complemented by spacious private gardens and a versatile internal layout which includes a spacious living kitchen opening onto the rear garden, a second lounge and a home office, the accommodation in the main benefiting from a contemporary open plan style with 5 spacious bedrooms and 3 bathrooms to the first floor and. a lower ground floor leisure suite; all rooms commanding differing scenic outlooks.
The immediate location offers the most idyllic of outdoors lifestyles, open countryside and numerous walks being on the doorstep whilst glorious scenery associated with The National Peak Park can be reached within a short drive. At the same time there is exceptionally good access throughout the region with the M1 motorway network being within a short drive, ideal for those wishing to commute to Sheffield, Barnsley, Huddersfield, Leeds, Manchester and Wakefield, whilst the M18 can be reached within a 20-minute drive. Bus and train services are also easily accessible.
The village has access to traditional pubs and a tea room whilst the sought after market towns of Penistone, Holmfirth and Stocksbridge are close by.
The intention is to create architectural drama, anticipation and excitement through a well lit, open plan living space, creating a journey from the front door to the large open plan living spaces at the rear with the eye being naturally drawn to private gardens.
An impressive development with detailed planning permission for the replacement of an existing building with 2 x detached dwellings; A rare opportunity to purchase an enviable building plot boasting the most idyllic of locations enjoying a sought after position on the outskirts of a delightful market town the backdrop to the village offering the most idyllic of outdoors lifestyles. The site is located on the edge of the Wortley Hall Estate, offers immediate access into open countryside and is well served by local services and amenities. Local schools are highly regarded, bus and train services are within close by and the M1 motorway is within a short drive. Each constructed house will enjoy southwest facing gardens, generous accommodation.
The plot which measures 1/3 of an acre has a detached house, built circa 1950, originally a four bedroom home and recently remodeled resulting in three bedroom accommodation, the house measuring approximately 1500 sqft.
Additional information
Planning permission has been granted (subject to conditions) for the erection of a 2 x Detached Houses, each with accommodation extending to approximately 3000 sqft of living accommodation, to include five bedrooms, stunning open plans living, a leisure suite and south facing gardens. The planning number is APPLICATION NO. 2024/0187. We are informed by our vendor client that Park Avenue is an un-adopted road with all mains services connected including water, electricity and drainage.We would recommend any interested party carry out their own due diligence before submitting a formal offer. Oil fired central heating to the existing house. The vendor may consider a split sale.
Application details can be viewed on the local authority planning portal.
The approval is subject on compliance with conditions that can be viewed on the planning portal.
Directions
From junction 35a of the M1 motorway follow the bypass to the roundabout and proceed straight ahead. Take the first turning off the by-pass a follow the signs into Wortley. After the S-bend (Church) take a right hand turn and proceed forwards keeping to the right. The building plot is on the right hand side.
Location - Wortley
The property is enviably situated within the original grounds of Wortlev Hall; surrounded by beautiful countryside, in a peaceful sanctuary and rural setting. The property whilst rural is not isolated positioned within a close proximity to local villages and picturesque market towns.
A charming village situated to the West of Barnsley, North of Sheffield, surrounded by breath taking un-spoilt rural scenery commanding some stunning views. The village presents an excellent external lifestyle with its many walks and bridle ways. There is a Golf club, tea rooms and village pub as well as Wortley Hall and gardens. The neighbouring village of Thurgoland has a doctors surgery, Post Office and village pub. Nearby attractions include Cannon Hall and Farm Shop, Wentworth Castle, The Yorkshire Sculpture Park and Stainborough Deer Farm. The Trans Pennine Trail is also immediately accessible.
Wortley sits only a short drive from Penistone; a bustling market town which still holds a weekly traditional outdoor market. Local shops vary from small gift shops and clothing boutiques to mini-supermarkets and a Tesco. Meadowhall is within a 20 minute drive and the area offers a wealth of highly regarded bars and restaurants. The M1 is easily accessible as are surrounding commercial centres. Schools associated with the area highly regarded attracting family purchasers.
Agents Notes
All measurements are approximate and quoted in metric with imperial equivalents and for general guidance only and whilst every attempt has been made to ensure accuracy, they must not be relied on. The fixtures, fittings and appliances referred to have not been tested and therefore no guarantee can be given and that they are in working order. Internal photographs are reproduced for general information and it must not be inferred that any item shown is included with the property.
1967 & MISDESCRIPTION ACT 1991 - When instructed to market this property every effort was made by visual inspection and from information supplied by the vendor to provide these details which are for description purposes only. Certain information was not verified, and we advise that the details are checked to your personal satisfaction. In particular, none of the services or fittings and equipment have been tested nor have any boundaries been confirmed with the registered deed plans. Lancasters Property Services Ltd or any persons in their employment cannot give any representations of warranty whatsoever in relation to this property and we would ask prospective purchasers to bear this in mind when formulating their offer. We advise purchasers to have these areas checked by their own surveyor, solicitor and tradesman. Lancasters Property Services Ltd accept no responsibility for errors or omissions. These particulars do not form the basis of any contract nor constitute any part of an offer of a contract.
Brochures
Brochure 1Energy Performance Certificates
EPC 1Park Avenue, Wortley, Sheffield, S35 7DR
NEAREST STATIONS
Distances are straight line measurements from the centre of the postcode- Silkstone Common Station3.3 miles
- Chapeltown Station3.4 miles
- Dodworth Station3.7 miles
Notes
Disclaimer - Property reference S1451859. The information displayed about this property comprises a property advertisement. Rightmove.co.uk makes no warranty as to the accuracy or completeness of the advertisement or any linked or associated information, and Rightmove has no control over the content. This property advertisement does not constitute property particulars. The information is provided and maintained by Fine & Country, Sheffield. Please contact the selling agent or developer directly to obtain any information which may be available under the terms of The Energy Performance of Buildings (Certificates and Inspections) (England and Wales) Regulations 2007 or the Home Report if in relation to a residential property in Scotland.
Map data ©OpenStreetMap contributors.






