
King George Close, Sunbury On Thames, TW16

- PROPERTY TYPE
Terraced
- BEDROOMS
2
- BATHROOMS
2
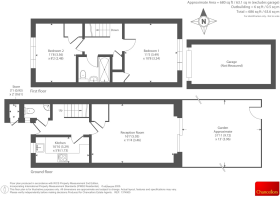
- SIZE
686 sq ft
64 sq m
- TENUREDescribes how you own a property. There are different types of tenure - freehold, leasehold, and commonhold.Read more about tenure in our glossary page.
Freehold
Key features
- No onward chain
- Driveway parking
- Private garden
- Updated electric heaters
- Two double bedrooms
- New bathroom in 2023.
- Downstairs WC currently used a utility space
- South facing garden
- Garage in block
Description
Step into this charming home at King George Close, nestled in the popular suburb of Sunbury-on-Thames. With its appealing curbside and location in the sought-after TW16 postcode, this property offers an ideal mix of comfort, convenience and value.
Property Details
Welcome to King George Close, Sunbury-on-Thames — a delightful property set within a quiet and friendly residential cul-de-sac. This charming home perfectly balances comfort, convenience, and potential, making it an ideal choice for first-time buyers, families, or investors looking for a property in one of Sunbury’s most sought-after neighbourhoods.
Located in a peaceful close, the property enjoys a sense of privacy while remaining close to essential amenities and excellent transport links. Sunbury train station, local shops, schools, and beautiful riverside walks are all nearby, offering a convenient lifestyle with plenty of leisure options. The area is also well known for its low crime rates and strong community spirit, providing a reassuring environment for residents.
Inside, the home offers a welcoming atmosphere with a practical and well-proportioned layout. The living area is bright and inviting, providing a comfortable space to relax or entertain. The kitchen in excellent condition, but as scope allowing the new owners to add their personal touch. The bedroom accommodation is well-sized and complemented by a refurbished bathroom, ensuring everyday comfort. Outside, the property benefits from private outdoor space, along with driveway parking, garage in block and lots of options for visitors.
This property stands out not only for its location but also for its excellent potential. Many homes in King George Close have undergone stylish updates, showing the opportunity to enhance both value and appeal here.
King George Close combines the peace of suburban living with easy access to London and surrounding commuter routes. Whether you’re looking to settle into a welcoming community or secure a property with proven market strength, this home deserves your attention.
Arrange your viewing today and discover the comfort, convenience, and opportunity that this charming Sunbury-on-Thames home has to offer.
Brochures
More details from Chancellors- COUNCIL TAXA payment made to your local authority in order to pay for local services like schools, libraries, and refuse collection. The amount you pay depends on the value of the property.Read more about council Tax in our glossary page.
- Band: C
- PARKINGDetails of how and where vehicles can be parked, and any associated costs.Read more about parking in our glossary page.
- Garage,Off street
- GARDENA property has access to an outdoor space, which could be private or shared.
- Private garden
- ACCESSIBILITYHow a property has been adapted to meet the needs of vulnerable or disabled individuals.Read more about accessibility in our glossary page.
- Ask agent
King George Close, Sunbury On Thames, TW16
Add an important place to see how long it'd take to get there from our property listings.
__mins driving to your place
Get an instant, personalised result:
- Show sellers you’re serious
- Secure viewings faster with agents
- No impact on your credit score
Your mortgage
Notes
Staying secure when looking for property
Ensure you're up to date with our latest advice on how to avoid fraud or scams when looking for property online.
Visit our security centre to find out moreDisclaimer - Property reference 6030852. The information displayed about this property comprises a property advertisement. Rightmove.co.uk makes no warranty as to the accuracy or completeness of the advertisement or any linked or associated information, and Rightmove has no control over the content. This property advertisement does not constitute property particulars. The information is provided and maintained by Chancellors, Sunbury. Please contact the selling agent or developer directly to obtain any information which may be available under the terms of The Energy Performance of Buildings (Certificates and Inspections) (England and Wales) Regulations 2007 or the Home Report if in relation to a residential property in Scotland.
*This is the average speed from the provider with the fastest broadband package available at this postcode. The average speed displayed is based on the download speeds of at least 50% of customers at peak time (8pm to 10pm). Fibre/cable services at the postcode are subject to availability and may differ between properties within a postcode. Speeds can be affected by a range of technical and environmental factors. The speed at the property may be lower than that listed above. You can check the estimated speed and confirm availability to a property prior to purchasing on the broadband provider's website. Providers may increase charges. The information is provided and maintained by Decision Technologies Limited. **This is indicative only and based on a 2-person household with multiple devices and simultaneous usage. Broadband performance is affected by multiple factors including number of occupants and devices, simultaneous usage, router range etc. For more information speak to your broadband provider.
Map data ©OpenStreetMap contributors.








