
4 bedroom cottage for sale
Mount Pleasant Cottage, Corbridge, Northumberland

- PROPERTY TYPE
Cottage
- BEDROOMS
4
- BATHROOMS
2
- SIZE
3,893 sq ft
362 sq m
- TENUREDescribes how you own a property. There are different types of tenure - freehold, leasehold, and commonhold.Read more about tenure in our glossary page.
Freehold
Key features
- Elevated Position with Tyne Valley Views
- Approved Plans for Further Development of the Site
- Peaceful Yet Convenient Setting
- Expansive Landscaped Garden
- Generous Driveway Parking
- Garaging & Practical Storerooms
- Prime Tyne Valley Location
- Approximately 1.53 Acres in All
Description
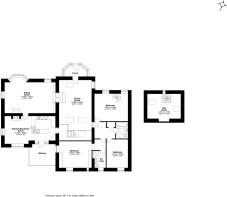
Accommodation in Brief
Ground Floor
Reception Hall | WC | Utility Room | Double Bedroom | Store
First Floor
Porch | Dining Room | Sitting Room | Kitchen/Breakfast Room | Balcony | Principal Bedroom with En-Suite Shower Room | Two Further Double Bedrooms | Family Bathroom
Second Floor
Attic Room
Externally
Driveway & Ample Parking | Two Garages | Two Storerooms | Edwardian Summerhouse | Expansive Garden
The Property
Mount Pleasant Cottage is a detached, part-Edwardian stone cottage on the edge of Corbridge, once a cottage and stable, now a distinctive and welcoming home. Set above the Tyne Valley with uninterrupted countryside views, it stands within about 1.53 acres of private gardens and grounds, secluded yet within walking distance of the village.
The entrance hall on the ground floor provides a bright and characterful welcome, featuring an exposed stone wall, painted panelling and an open staircase rising to the main living level. This lower floor includes a practical WC, a generous utility room, store room and a versatile double bedroom with exposed ceiling beams, ideal for guests, multi-generational living or could easily serve as an office for home working.
The main living spaces are on the first floor. A broad landing leads to an elegant dining room and an adjoining sitting room with a bay window, stone fireplace and fitted bookcases. The dining room also has a fireplace and multi-fuel stove, and benefits from a secondary entrance at road level. The kitchen and breakfast room forms the heart of the home, with a four-oven electric Aga, integrated appliances, bespoke painted cabinetry and stone worktops. Double doors open to a balcony, well sized for alfresco dining, with long views over the valley.
Three double bedrooms sit on this level, including a garden facing principal with en suite, while another bedroom has a spiral stair to a converted attic room, ideal as a private study or occasional sleeping area. The family bathroom is presented in a soft, neutral palette with classic fittings and a quietly modern feel.
Externally
Approached by a private drive, the grounds combine landscaped areas, broad lawns, mature trees and seating spots to enjoy the views. A stone-paved terrace suits outdoor dining and an Edwardian timber summerhouse offers an enchanting setting for gatherings. There is substantial garaging and stores, plus ample driveway parking.
Planning permission is in place for a two-storey rear addition to the main house, and for conversion of the second garage and store into an independent dwelling with parking and amenity space, giving clear scope to expand or create ancillary accommodation as needed.
Agents Note
Planning Permission Ref. No. 12/00902/FUL - Construction of two storey rear extension, balcony to first floor, removal of external oil store and relocation of oil tank, alterations to existing garage
Planning Permission Ref. No. 24/03832/FUL - Proposed conversion of existing garage and store, to form one dwelling, along with associated car parking and amenity space
Local Information
Mount Pleasant Cottage is on the outskirts of Corbridge, a popular, charming and historic village that sits on the River Tyne in the heart of the scenic Tyne Valley. The village offers a full range of day-to-day amenities with a wide variety of shops, restaurants, inns, doctor and dentist surgeries, community services and a garage, while nearby Slaley Hall and Matfen Hall offer excellent leisure facilities.
The nearby market town of Hexham offers more comprehensive services with large supermarkets, a further range of shops and professional services together with a leisure centre, cinema, theatre and hospital. For schooling there is a First School and Middle School in the village, while senior schooling is offered in Hexham.
For the commuter Corbridge is convenient for the A69 which gives excellent access to Newcastle in the east and Carlisle in the west, and onward to the A1 and M6. There is a railway station on the edge of the village which provides cross-country services to Newcastle and Carlisle where connecting main line rail services are available to major UK cities north and south. Newcastle International Airport is also very accessible.
Approximate Mileages
Corbridge Train Station 0.8 miles | Corbridge Village Centre 1.5 miles | Hexham 5.1 miles | Newcastle International Airport 16.5 miles | Newcastle City Centre 19 miles
Services
The property is connected to mains electricity, water and drainage and benefits from oil-fired central heating.
Tenure
Freehold
Council Tax
Band G
Wayleaves, Easements & Rights of Way
The property is being sold subject to all existing wayleaves, easements and rights of way, whether or not specified within the sales particulars.
Agents Note to Purchasers
We strive to ensure all property details are accurate, however, they are not to be relied upon as statements of representation or fact and do not constitute or form part of an offer or any contract. All measurements and floor plans have been prepared as a guide only. All services, systems and appliances listed in the details have not been tested by us and no guarantee is given to their operating ability or efficiency. Please be advised that some information may be awaiting vendor approval.
Submitting an Offer
Please note that all offers will require financial verification including mortgage agreement in principle, proof of deposit funds, proof of available cash and full chain details including selling agents and solicitors down the chain. To comply with Money Laundering Regulations, we require proof of identification from all buyers before acceptance letters are sent and solicitors can be instructed.
Disclaimer
The information displayed about this property comprises a property advertisement. Finest Properties strives to ensure all details are accurate; however, they do not constitute property particulars and should not be relied upon as statements of fact or representation. All information is provided and maintained by Finest Properties.
EPC Rating: F
Brochures
Brochure- COUNCIL TAXA payment made to your local authority in order to pay for local services like schools, libraries, and refuse collection. The amount you pay depends on the value of the property.Read more about council Tax in our glossary page.
- Band: G
- PARKINGDetails of how and where vehicles can be parked, and any associated costs.Read more about parking in our glossary page.
- Yes
- GARDENA property has access to an outdoor space, which could be private or shared.
- Private garden
- ACCESSIBILITYHow a property has been adapted to meet the needs of vulnerable or disabled individuals.Read more about accessibility in our glossary page.
- Lateral living
Mount Pleasant Cottage, Corbridge, Northumberland
Add an important place to see how long it'd take to get there from our property listings.
__mins driving to your place
Get an instant, personalised result:
- Show sellers you’re serious
- Secure viewings faster with agents
- No impact on your credit score
Your mortgage
Notes
Staying secure when looking for property
Ensure you're up to date with our latest advice on how to avoid fraud or scams when looking for property online.
Visit our security centre to find out moreDisclaimer - Property reference b74b123f-4010-46ea-8a6a-e3dcdba609ed. The information displayed about this property comprises a property advertisement. Rightmove.co.uk makes no warranty as to the accuracy or completeness of the advertisement or any linked or associated information, and Rightmove has no control over the content. This property advertisement does not constitute property particulars. The information is provided and maintained by Finest, North East. Please contact the selling agent or developer directly to obtain any information which may be available under the terms of The Energy Performance of Buildings (Certificates and Inspections) (England and Wales) Regulations 2007 or the Home Report if in relation to a residential property in Scotland.
*This is the average speed from the provider with the fastest broadband package available at this postcode. The average speed displayed is based on the download speeds of at least 50% of customers at peak time (8pm to 10pm). Fibre/cable services at the postcode are subject to availability and may differ between properties within a postcode. Speeds can be affected by a range of technical and environmental factors. The speed at the property may be lower than that listed above. You can check the estimated speed and confirm availability to a property prior to purchasing on the broadband provider's website. Providers may increase charges. The information is provided and maintained by Decision Technologies Limited. **This is indicative only and based on a 2-person household with multiple devices and simultaneous usage. Broadband performance is affected by multiple factors including number of occupants and devices, simultaneous usage, router range etc. For more information speak to your broadband provider.
Map data ©OpenStreetMap contributors.






