6 bedroom terraced house for sale
Chapel Street, Buckfastleigh

- PROPERTY TYPE
Terraced
- BEDROOMS
6
- BATHROOMS
2
- SIZE
1,808 sq ft
168 sq m
- TENUREDescribes how you own a property. There are different types of tenure - freehold, leasehold, and commonhold.Read more about tenure in our glossary page.
Freehold
Key features
- 5/6 Bedrooms
- 2 Bathrooms
- Large open plan living space
- Courtyard Garden
- Wood burning stove
- Tucked away location
- Annex potential (stp)
- Gas central heating
- uPVC double glazing
- EPC D
Description
Location
Buckfastleigh is a small market town situated beside the A38 Devon Expressway, providing a direct link to the cites of Plymouth and Exeter as well as the M5, which makes it a great location for commuters. The town itself has a Primary school, Health centre, Post office, Newsagent and Co-Operative store, along with a variety of cafes, shops, and pubs.
The town also has a range of popular attractions including Buckfast Abbey, The Butterfly and Otter Sanctuary, and The Valiant Soldier Museum, along with the South Devon Railway and Pennywell Farm. The town has also appeared several times as a filming location for the BBC series Beyond Paradise`.
The Norman town of Totnes is approximately 7 miles away providing a wide range of amenities and shops, including a mainline railway station getting to London Paddington in approximately 3 hours
Description
42 Chapel Street has to be seen to be fully appreciated, as this terrace town house is the literal definition of a Tardis`. Located in the heart of Buckfastleigh the property benefits from a town centre setting and is within walking distance of local amenities, including the primary school and medical centre.
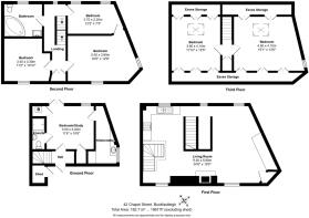
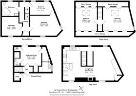
The property itself is deceptively spacious, being set out over four floors. It has five/six bedrooms and two bathrooms. There is also a large open plan living space, and potential to have annex accommodation. It also comes complete with a beautiful courtyard garden.
As you enter the property on the ground floor, you will find the sixth bedroom/additional living space, this is a versatile area, which could be used as a home office, therapy room or studio. There is also annex potential as it benefits from an ensuite shower room and kitchenette area. There is access from here via french doors to the rear courtyard space.
On the first floor is the large open plan living area, this is a wonderful space for all the family, which is flooded with light from large southeast facing windows. The kitchen has a range of base and wall mounted units with space for a cooker, dishwasher and fridge freezer. There is also plenty of room for a large 6/8-seater dining table if required. There is an additional utility room, with plumbing and electricity for white goods.
The kitchen/diner space is open through to the good size living room, this is a generous space with room for the whole family, there is a range of built in shelving and storage, along with a wood burning stove.
From the first floor are stairs leading up to the second floor, on this level there are three double bedrooms and the family bathroom. The bathroom has a modern white suite with large corner bath and shower over.
There are a further two bedrooms in the loft, these rooms can accommodate beds and have under eave storage, they would also make great home office spaces if required.
The property comes complete with a courtyard garden at the rear of the property. The courtyard is laid to patio and has space for a range of freestanding planters and pots, as well as room for seating. At the front of the property is the access alleyway, with outdoor storage and woodstore.
The property has a huge amount to offer a growing family, offering a versatile layout that can be adapted as requirements change over the years. It also benefits from gas central heating and uPVC double glazing; a viewing is highly recommended.
Tenure
Freehold
Services
Mains gas, mains electricity, mains water and drainage
Council tax band
B
Local authority
Teignbridge District Council
what3words /// sprinkler.secures.ramps
Notice
Please note we have not tested any apparatus, fixtures, fittings, or services. Interested parties must undertake their own investigation into the working order of these items. All measurements are approximate and photographs provided for guidance only.
Brochures
Web Details- COUNCIL TAXA payment made to your local authority in order to pay for local services like schools, libraries, and refuse collection. The amount you pay depends on the value of the property.Read more about council Tax in our glossary page.
- Band: B
- PARKINGDetails of how and where vehicles can be parked, and any associated costs.Read more about parking in our glossary page.
- Ask agent
- GARDENA property has access to an outdoor space, which could be private or shared.
- Private garden
- ACCESSIBILITYHow a property has been adapted to meet the needs of vulnerable or disabled individuals.Read more about accessibility in our glossary page.
- Ask agent
Chapel Street, Buckfastleigh
Add an important place to see how long it'd take to get there from our property listings.
__mins driving to your place
Get an instant, personalised result:
- Show sellers you’re serious
- Secure viewings faster with agents
- No impact on your credit score
Your mortgage
Notes
Staying secure when looking for property
Ensure you're up to date with our latest advice on how to avoid fraud or scams when looking for property online.
Visit our security centre to find out moreDisclaimer - Property reference 696_MODM. The information displayed about this property comprises a property advertisement. Rightmove.co.uk makes no warranty as to the accuracy or completeness of the advertisement or any linked or associated information, and Rightmove has no control over the content. This property advertisement does not constitute property particulars. The information is provided and maintained by Modern Move, Buckfastleigh. Please contact the selling agent or developer directly to obtain any information which may be available under the terms of The Energy Performance of Buildings (Certificates and Inspections) (England and Wales) Regulations 2007 or the Home Report if in relation to a residential property in Scotland.
*This is the average speed from the provider with the fastest broadband package available at this postcode. The average speed displayed is based on the download speeds of at least 50% of customers at peak time (8pm to 10pm). Fibre/cable services at the postcode are subject to availability and may differ between properties within a postcode. Speeds can be affected by a range of technical and environmental factors. The speed at the property may be lower than that listed above. You can check the estimated speed and confirm availability to a property prior to purchasing on the broadband provider's website. Providers may increase charges. The information is provided and maintained by Decision Technologies Limited. **This is indicative only and based on a 2-person household with multiple devices and simultaneous usage. Broadband performance is affected by multiple factors including number of occupants and devices, simultaneous usage, router range etc. For more information speak to your broadband provider.
Map data ©OpenStreetMap contributors.





