
Portway, Warminster, BA12 8JU

- PROPERTY TYPE
Retirement Property
- BEDROOMS
1
- SIZE
Ask developer
Key features
- Short walk to town centre
- Short walk to train station for further travel
- Situated in the heart of the Wylye Valley and surrounded by countryside
- Stunning landscaped gardens and communal lounge
- Safe and secure with a 24/7 emergency call system and camera door entry
- Dedicated House Manager
- Perfect blend of privacy and community
- Smooth Move Services available for a hassle-free move
- Ample car parking and landscaped gardens
- Part Exchange available
Description
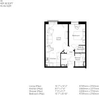
Apartment 26 is a well designed one-bedroom retirement apartment, offering a comfortable living space, ideal for those seeking independence within a supportive environment. Available to purchase through our Home Buyers Help shared ownership purchase option, it provides an excellent opportunity for buyers to secure a home in a desirable retirement setting at a more accessible price point.
The property opens into a welcoming central hallway providing access to all rooms and useful built-in-storage. It benefits from a bright and generously sized living room and offers ample space for both seating and dining, with a Juliet balcony offering lots of natural light.
Adjacent to the living area is an open plan fully fitted integral kitchen which is thoughtfully laid out to maximise workspace and storage.
The bedroom is a good sized double and benefits from a walk-in-wardrobe, providing excellent storage solutions.
The apartment is completed by a modern shower room, conveniently located off the hallway, fitted with grab rails, offering both safety and peace of mind.
- £112,500/£258 pcm (50% example share/50% rent)
- £168,750 (75% example share/no rent)
- Other shares available
SAP Rating - up to 85
Room Dimensions
- COUNCIL TAXA payment made to your local authority in order to pay for local services like schools, libraries, and refuse collection. The amount you pay depends on the value of the property.Read more about council Tax in our glossary page.
- Band: TBC
- PARKINGDetails of how and where vehicles can be parked, and any associated costs.Read more about parking in our glossary page.
- Yes
- GARDENA property has access to an outdoor space, which could be private or shared.
- Yes
- ACCESSIBILITYHow a property has been adapted to meet the needs of vulnerable or disabled individuals.Read more about accessibility in our glossary page.
- Ask developer
Portway, Warminster, BA12 8JU
Add an important place to see how long it'd take to get there from our property listings.
__mins driving to your place
About McCarthy & Stone
Over 60s retirement property for Shared Ownership in Warminster, Wiltshire
This stunning retirement development in Warminster is designed with the over 60s in mind. Set in a conservation area and neighboured by two listed buildings, Crescent Place offers it's homeowners a perfect blend of privacy and community.
You’ll have your own beautiful and spacious apartment, but you’ll also have access to an on-site communal lounge where you can spend time with your neighbours and make use of the beautiful landscaped gardens where you can take a stroll and enjoy the scenery.
When you relocate to one of our retirement homes in Warminster, you’ll also free yourself from the burden of owning and maintaining a large family home. To help even more, we will take care of all the gardening and exterior maintenance of your property. This means you can spend more time doing the things you love. Whether you’d rather enjoy the privacy of your own apartment, make friends in the communal lounge or explore Warminster is entirely your choice.
In addition to this, when you relocate to one of our retirement homes in Warminster, you’ll also have all the help and support you could possibly need close by. The development has a 24/7 emergency call system and a House Manager who is available to help during office hours. A number of security features will help you feel safe and secure, including a door-camera entry system.
We understand moving is a huge step, that's our friendly, expert team are here to support you every step of the way. Our services include Part Exchange – for a hassle-free house sale; help with your financial planning; free removals with every new property - including decluttering, disposing of unwanted items, packing and unpacking – plus access to a free handyperson to put up shelves etc. once you’re settled
Easy independent living for the over 60s
All our retirement property for Shared Ownership in Warminster is cleverly designed with smart yet stylish features, like easy turn taps, to make life easier now and in the future. Low maintenance, warm and elegant, with the latest security and safety features built in, most of our homeowners enjoy cheaper bills too.
Many of these retirement apartments have either private patios or balconies. All offer access to attractive communal spaces including the beautiful lounge with Wi-Fi and a state-of-the-art audio and video system plus a gorgeous garden area with seating. You’re looked after by the friendly on-site manager and these shared spaces are filled with (entirely optional) events, parties and clubs. Parking is available and well-behaved pets are welcome too.
Local area
The beautiful market town of Warminster is situated on the edge of the Cranborne Chase and West Wiltshire Downs Area of Outstanding Natural Beauty. It’s a picturesque location that’s surrounded by chalk downland and stunning natural beauty. Due to its semi-rural location, it’s a popular retirement spot with walkers and ramblers who want to explore the beautiful countryside.
The town’s also incredibly popular with history lovers as it contains many historic attractions. This includes Dents glove factory, which has made gloves for several royals, including a pair worn by Queen Elizabeth II for her coronation.
The town’s pride and joy remains its tranquil lake. It’s located in a park that also has a children’s paddling pool, a skate park, tennis courts and a putting green. The park also leads to Smallbrook Meadows Nature Reserve, which is run by Wiltshire Wildlife Trust.
The properties at this development are leasehold properties with a term of 999 years from and including 06/06/2023.
Notes
Staying secure when looking for property
Ensure you're up to date with our latest advice on how to avoid fraud or scams when looking for property online.
Visit our security centre to find out moreDisclaimer - Property reference 1_Apartment 26. The information displayed about this property comprises a property advertisement. Rightmove.co.uk makes no warranty as to the accuracy or completeness of the advertisement or any linked or associated information, and Rightmove has no control over the content. This property advertisement does not constitute property particulars. The information is provided and maintained by McCarthy & Stone. Please contact the selling agent or developer directly to obtain any information which may be available under the terms of The Energy Performance of Buildings (Certificates and Inspections) (England and Wales) Regulations 2007 or the Home Report if in relation to a residential property in Scotland.
*This is the average speed from the provider with the fastest broadband package available at this postcode. The average speed displayed is based on the download speeds of at least 50% of customers at peak time (8pm to 10pm). Fibre/cable services at the postcode are subject to availability and may differ between properties within a postcode. Speeds can be affected by a range of technical and environmental factors. The speed at the property may be lower than that listed above. You can check the estimated speed and confirm availability to a property prior to purchasing on the broadband provider's website. Providers may increase charges. The information is provided and maintained by Decision Technologies Limited. **This is indicative only and based on a 2-person household with multiple devices and simultaneous usage. Broadband performance is affected by multiple factors including number of occupants and devices, simultaneous usage, router range etc. For more information speak to your broadband provider.
Map data ©OpenStreetMap contributors.





