Trehayes Meadow, St. Erth, Hayle

- PROPERTY TYPE
Terraced
- BEDROOMS
2
- BATHROOMS
1
- SIZE
Ask agent
- TENUREDescribes how you own a property. There are different types of tenure - freehold, leasehold, and commonhold.Read more about tenure in our glossary page.
Freehold
Key features
- Beautifully Presented Modern House
- Lounge/Diner
- Two Double Bedrooms
- First Floor Bathroom
- Enclosed Low Maintenance Garden
- Garage En Bloc
Description
Obscure Double Glazed Door Into...
Entrance Hall
Wall mounted electric heater, alcove providing hanging and storage space, wood effect flooring, staircase rising to the first floor. Door into...
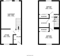
Kitchen
2.8m x 2.7m (9' 2" x 8' 10")
Selection of base and wall units, roll edge worktop with tiled splashback, inset stainless steel sink and drainer with mixer tap, space and plumbing for a washing machine, built in oven with hob and extractor fan over, space for upright fridge/freezer, wood effect flooring, double glazed window to the front. Opening to...
Lounge/Diner
5m x 3.8m (16' 5" x 12' 6")
Double glazed patio door to the rear providing access to the garden, double glazed window to the rear, two wall mounted electric heaters, fitted carpet.
Carpeted Staircase Rising To...
First Floor Landing
Fitted carpet, roof light, doors leading to...
Bedroom One
3.8m x 2.5m (12' 6" x 8' 2")
Double glazed windows to the front, built in wardrobes with sliding doors, wall mounted electric heater.
Bedroom Two
3.7m x 3m (12' 2" x 9' 10")
Double glazed window to the rear, wall mounted electric heater, built in wardrobes with sliding doors, fitted carpet.
Bathroom
Matching white suite comprising low level WC, pedestal basin, panel enclosed bath with shower over, tiled surround and shower screen, ladder style heated towel rail, tiled floor, access to the loft, inset ceiling spotlights.
Outside
To the rear of the property there is an enclosed garden with paved patio and Astro Turf seating areas. There is a garage en-bloc.
Garage
4.7m x 2.5m (15' 5" x 8' 2")
With an up and over door, power, light and water supply.
Directions
what3words///acids.unlocking.apart
Material Information
Tenure - Freehold Council Tax - Band B Local Authority - Cornwall Council. Services - Mains electricity, water and drainage. Heating - Electric heating Mining - Metalliferous Mine Search Required. Parking - Garage en-bloc.
Brochures
Particulars- COUNCIL TAXA payment made to your local authority in order to pay for local services like schools, libraries, and refuse collection. The amount you pay depends on the value of the property.Read more about council Tax in our glossary page.
- Band: B
- PARKINGDetails of how and where vehicles can be parked, and any associated costs.Read more about parking in our glossary page.
- Yes
- GARDENA property has access to an outdoor space, which could be private or shared.
- Yes
- ACCESSIBILITYHow a property has been adapted to meet the needs of vulnerable or disabled individuals.Read more about accessibility in our glossary page.
- Ask agent
Trehayes Meadow, St. Erth, Hayle
Add an important place to see how long it'd take to get there from our property listings.
__mins driving to your place
Get an instant, personalised result:
- Show sellers you’re serious
- Secure viewings faster with agents
- No impact on your credit score
Your mortgage
Notes
Staying secure when looking for property
Ensure you're up to date with our latest advice on how to avoid fraud or scams when looking for property online.
Visit our security centre to find out moreDisclaimer - Property reference CSD212127. The information displayed about this property comprises a property advertisement. Rightmove.co.uk makes no warranty as to the accuracy or completeness of the advertisement or any linked or associated information, and Rightmove has no control over the content. This property advertisement does not constitute property particulars. The information is provided and maintained by Bradleys, Hayle. Please contact the selling agent or developer directly to obtain any information which may be available under the terms of The Energy Performance of Buildings (Certificates and Inspections) (England and Wales) Regulations 2007 or the Home Report if in relation to a residential property in Scotland.
*This is the average speed from the provider with the fastest broadband package available at this postcode. The average speed displayed is based on the download speeds of at least 50% of customers at peak time (8pm to 10pm). Fibre/cable services at the postcode are subject to availability and may differ between properties within a postcode. Speeds can be affected by a range of technical and environmental factors. The speed at the property may be lower than that listed above. You can check the estimated speed and confirm availability to a property prior to purchasing on the broadband provider's website. Providers may increase charges. The information is provided and maintained by Decision Technologies Limited. **This is indicative only and based on a 2-person household with multiple devices and simultaneous usage. Broadband performance is affected by multiple factors including number of occupants and devices, simultaneous usage, router range etc. For more information speak to your broadband provider.
Map data ©OpenStreetMap contributors.







