
4 bedroom detached house for sale
Cemetery Road, Witton Le Wear, Bishop Auckland, DL14

- PROPERTY TYPE
Detached
- BEDROOMS
4
- BATHROOMS
3
- SIZE
2,088 sq ft
194 sq m
- TENUREDescribes how you own a property. There are different types of tenure - freehold, leasehold, and commonhold.Read more about tenure in our glossary page.
Freehold
Key features
- Stone built, detached family home
- Very well presented and characterful
- Four bedrooms & three Reception rooms
- Three Bath/shower rooms
- Secure parking
- Gardens
- Property size 2088 sq ft, 194 sq m
Description
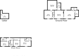
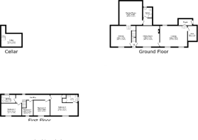
The accommodation comprises of an entrance hallway with the stairs rising to the first floor. On the right hand side is the house dining room with stone floor and feature inglenook fireplace with wood burning stove. This in turn leads to the sitting room which has an original stained glass window, feature fireplace and two window seats. Next up is the office which has been kitted out with a fitted desk and selection of shelves, and to the rear of the house lies the rear entrance porch and back door. Moving back through the house lies the kitchen which features a selection of fitted units in pastel blue wood with granite worktops and a "Belfast" style sink. The kitchen is arranged around a large Aga Rayburn style cooker which should be a delight for any home cook! The kitchen boasts a flight of stairs down to the cellar, which for any wine enthusiast, would be an ideal place to start (and house) a collection!
Moving to the back of the property is a large garden room which has a lot of natural light from the many windows - this room would offer a multitude of uses such as another reception room/child’s playroom, Tv or Games room. A utility room and ground floor shower room complete the ground floor layout.
Going up the stairs to the first floor there are four bedrooms - three of which are doubles and one single - all of which enjoy views to the front of the house, over the village in the foreground to Witton Castle in the distance. The master bedroom features an original fireplace like the two doubles, and a very impressive ensuite bathroom with roll top bath. The house bathroom completes the internal layout.
Outside, the property offers yet more as to the front it has a "Sunken Garden" perfect for barbeques and entertaining and original outbuilding for storage. To the rear there is another outbuilding for storage, secure gated off street parking on a gravelled drive, artificial grass - perfect for playing with children and pets, and a paved patio - perfect for entertaining and eating outside in warmer months.
Not only is this house beautiful, it is perfect for a new family to love it as much as our clients have during the time they have lived here - it really needs to be viewed to appreciate the truly unique opportunity on offer.
Witton le wear is a well-regarded village that has a couple of good pubs that are walking distance away as well as a primary school that is rated as "outstanding" by Ofsted. The village is also a short distance from the Low Barns Nature reserve that offers a great place for walks. The village is also well placed for transport links, lying just next to the A68 highway which provides swift access to Corbridge and Darlington.
MATERIAL INFORMATION:
In compliance with the Consumer Protection from Unfair Trading Regulations 2008 and National Trading Standards Estate and Letting Agency Team’s Material information in property listings Guidance
PART A
Local Authority – Durham County Council
Council Tax Band – F
Tenure – Freehold - The property is held on two tiles that combine to make up the curtilage
PART B
Property Type – Detached
Property Construction – Stone
Number & Types of Rooms – Please refer to the details and floorplan, all measurements taken being the maximum dimensions available between internal walls
Electricity supply – Mains
Water Supply - Mains un metered
Sewerage – Mains
Heating - LPG gas boiler with radiators and two log burning stoves
Estimated Mobile phone coverage – Please refer to the Ofcom Website -
Estimated Broadband Download speeds – please refer to the Ofcom Website –
Parking: Secure off street
PART C
Building Safety – The Vendor is not aware of any Building Safety issues. However, we would recommend that the purchaser engages the services of a chartered surveyor to confirm
Restrictions - covenants dated 1921 are noted on the title documents
Rights & Easements- none
Flood risk – surface water high risk
Coastal Erosion - NA
Protected Trees – No
Conservation area – yes
Planning Permission – No
Accessibility – The property has not been altered for accessibility
Mining Area – records available show some mining in the village -
Selective License Area – No
No other Material Information disclosures have been made by the vendor. This information has been compiled in good faith using resources readily available online and by enquiry of the vendor prior to marketing. However, such information could change after compilation of the data, so J W Wood cannot be held liable for any changes post compilation or any accidental errors or omissions.
Furthermore, J W Wood are not legally qualified and conveyancing documents are often complicated, necessitating judgement on our part about which parts are “Material Information” to be disclosed. If any information provided, or other matter relating to the property, is of particular importance to you, please do seek verification from a legal advisor before committing to expenditure.
HMRC supervises the legal obligation for all estate agents to conduct identity checks on their customers, this includes buyers when their offer is accepted. This must be completed, per purchaser, who in the transaction will result in being the legal owner(s) of the property. There is a £30 (inc VAT) administration fee per individual purchaser, for these checks
Brochures
Web Details- COUNCIL TAXA payment made to your local authority in order to pay for local services like schools, libraries, and refuse collection. The amount you pay depends on the value of the property.Read more about council Tax in our glossary page.
- Band: F
- PARKINGDetails of how and where vehicles can be parked, and any associated costs.Read more about parking in our glossary page.
- Yes
- GARDENA property has access to an outdoor space, which could be private or shared.
- Yes
- ACCESSIBILITYHow a property has been adapted to meet the needs of vulnerable or disabled individuals.Read more about accessibility in our glossary page.
- Ask agent
Cemetery Road, Witton Le Wear, Bishop Auckland, DL14
Add an important place to see how long it'd take to get there from our property listings.
__mins driving to your place
Get an instant, personalised result:
- Show sellers you’re serious
- Secure viewings faster with agents
- No impact on your credit score
Your mortgage
Notes
Staying secure when looking for property
Ensure you're up to date with our latest advice on how to avoid fraud or scams when looking for property online.
Visit our security centre to find out moreDisclaimer - Property reference BAO250377. The information displayed about this property comprises a property advertisement. Rightmove.co.uk makes no warranty as to the accuracy or completeness of the advertisement or any linked or associated information, and Rightmove has no control over the content. This property advertisement does not constitute property particulars. The information is provided and maintained by J W Wood, Bishop Auckland. Please contact the selling agent or developer directly to obtain any information which may be available under the terms of The Energy Performance of Buildings (Certificates and Inspections) (England and Wales) Regulations 2007 or the Home Report if in relation to a residential property in Scotland.
*This is the average speed from the provider with the fastest broadband package available at this postcode. The average speed displayed is based on the download speeds of at least 50% of customers at peak time (8pm to 10pm). Fibre/cable services at the postcode are subject to availability and may differ between properties within a postcode. Speeds can be affected by a range of technical and environmental factors. The speed at the property may be lower than that listed above. You can check the estimated speed and confirm availability to a property prior to purchasing on the broadband provider's website. Providers may increase charges. The information is provided and maintained by Decision Technologies Limited. **This is indicative only and based on a 2-person household with multiple devices and simultaneous usage. Broadband performance is affected by multiple factors including number of occupants and devices, simultaneous usage, router range etc. For more information speak to your broadband provider.
Map data ©OpenStreetMap contributors.






