5 bedroom detached house for rent
Sexey's Farmhouse, School Lane, Blackford, Wedmore, BS28 4NX

Letting details
- Let available date:
- Ask agent
- Deposit:
- Ask agentA deposit provides security for a landlord against damage, or unpaid rent by a tenant.Read more about deposit in our glossary page.
- Min. Tenancy:
- Ask agent How long the landlord offers to let the property for.Read more about tenancy length in our glossary page.
- Let type:
- Long term
- Furnish type:
- Ask agent
- Council Tax:
- Ask agent
- PROPERTY TYPE
Detached
- BEDROOMS
5
- BATHROOMS
3
- SIZE
2,503 sq ft
233 sq m
Key features
- Due to be fully refurbished throughout
- Please note photos are have been taken prior to completion
- Potential to have as two separate dwellings; One bed annexe and four bed house
- Two reception rooms
- Woodburner and open fire
- Gated driveway with ample parking
Description
Description
A beautifully presented family home completely renovated throughout, to include new kitchen, bathrooms, flooring and decoration. This spacious property offers well-appointed accommodation with the option of split accommodation by way of one bed annexe and 4 bedroom main house, both with separate entrances. The ground floor benefits from entrance hall, large living room with open fire, large open plan kitchen/dining room and spacious utility boot room leading to downstairs shower room and family snug with woodburning stove. The first floor offers a large master bedroom with en-suite, three further double bedrooms and a single room, perfect as a home office, and a family bathroom. Outside there is ample parking on a gated driveway as well as a good sized garden laid to lawn with fruit trees and established shrubs.
Situation
The house is located in the sought after village of Blackford, within walking distance of Hugh Sexey's Middle School and the village pub, The Sexey's Arms. Blackford is a friendly and welcoming community with village hall, church and children's play area. The nearby historic village of Wedmore offers a wide range of amenities including a variety of shops, pubs, chemist, dentist and various other boutiques. The city of Wells is around 10 miles away with the M5 just 10 minutes by car. Bristol Airport 16 miles. Highbridge and Burnham Station 6 miles.
This property is being offered to market by Fowler Fortescue on behalf of The Hugh Sexey's Estate.
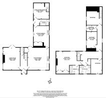
Accommodation
The front door opens into an entrance porch leading to the main entrance hall.
Kitchen/Breakfast Room with new fitted units in a traditional deep green, oak effect worktop, electric range cooker and space for fridge/freezer and dishwasher. The room is of great proportions, with room for a large dining table as well as a sofa, or dresser
Living Room with open fire, newly fitted carpet and patio doors opening to the rear of the property
Family Room /Snug a cosy room with woodburning stove and stairs up to bedroom 4
Utility Room/Boot Room with fitted units and space for washing machine and dryer. Built in cupboards which house the boiler and further storage space for coats and shoes
Downstairs Shower Room with shower, sink and WC
Downstairs Cloakroom with sink and WC
First Floor
Stairs from the main hall lead up to large first floor landing with storage cupboard and doors into:
Master Bedroom bright and spacious with views into the front garden and across the fields. A number of built in cupboards give plenty of storage space
Ensuite Bathroom with large walk in shower, wash hand basin and wc
Bedroom Two a good sized double bedroom with views to the front
Bedroom Three double bedroom with a view of the farmyard to the rear
Bedroom Four double bedroom with stairs down to the Snug
Bedroom Five single bedroom or home office
Family Bathroom with large bath, walk in double shower cubicle, heated towel rail, wash hand basin and WC
Parking
The property is approached from a gated driveway leading to a large parking area providing space for a number of vehicles
Garden
The property is surrounded to the side and rear by gardens mainly laid to lawn with a variety of shrubs, flowers and fruit trees
Further Land
There is the opportunity to rent the adjacent paddock, under separate agreement
Utilities
Mains electricity, water and drainage. Oil-fired central heating
Services
Ofcom indicates there is Ultrafast broadband (up to 1000 Mbps) available to the property. Mobile phone signal is good outdoors and variable indoors. Intending tenants to satisfy themselves with broadband and mobile services, these can be found on the Ofcom checker
Council Tax Somerset Council, council tax band F
EPC Rating The property has an EPC rating of E47
Pets by negotiation
Available from 1st December for an initial 12-month tenancy with a view to extend thereafter
Rent £3,000 per calendar month payable by direct debit on the 1st of each month
Holding Deposit a holding deposit of £690 is payable to secure the property
Security Deposit £3460 to be held under the terms of The Deposit Protection Scheme for the duration of the tenancy
Viewing strictly by appointment through Fowler Fortescue.
Disclaimer: These particulars are intended to give a fair description of the property but their accuracy cannot be guaranteed, and they do not constitute an offer of contract. Intending tenants must rely on their own inspection of the property. None of the above appliances/services have been tested by ourselves.
Brochures
Brochure- COUNCIL TAXA payment made to your local authority in order to pay for local services like schools, libraries, and refuse collection. The amount you pay depends on the value of the property.Read more about council Tax in our glossary page.
- Ask agent
- PARKINGDetails of how and where vehicles can be parked, and any associated costs.Read more about parking in our glossary page.
- Driveway,Off street,Gated,Private
- GARDENA property has access to an outdoor space, which could be private or shared.
- Front garden,Patio,Private garden,Enclosed garden,Rear garden,Back garden
- ACCESSIBILITYHow a property has been adapted to meet the needs of vulnerable or disabled individuals.Read more about accessibility in our glossary page.
- Ask agent
Sexey's Farmhouse, School Lane, Blackford, Wedmore, BS28 4NX
Add an important place to see how long it'd take to get there from our property listings.
__mins driving to your place
Notes
Staying secure when looking for property
Ensure you're up to date with our latest advice on how to avoid fraud or scams when looking for property online.
Visit our security centre to find out moreDisclaimer - Property reference SEXEYSFARMHOUSE. The information displayed about this property comprises a property advertisement. Rightmove.co.uk makes no warranty as to the accuracy or completeness of the advertisement or any linked or associated information, and Rightmove has no control over the content. This property advertisement does not constitute property particulars. The information is provided and maintained by Fowler Fortescue, Fonthill Bishop. Please contact the selling agent or developer directly to obtain any information which may be available under the terms of The Energy Performance of Buildings (Certificates and Inspections) (England and Wales) Regulations 2007 or the Home Report if in relation to a residential property in Scotland.
*This is the average speed from the provider with the fastest broadband package available at this postcode. The average speed displayed is based on the download speeds of at least 50% of customers at peak time (8pm to 10pm). Fibre/cable services at the postcode are subject to availability and may differ between properties within a postcode. Speeds can be affected by a range of technical and environmental factors. The speed at the property may be lower than that listed above. You can check the estimated speed and confirm availability to a property prior to purchasing on the broadband provider's website. Providers may increase charges. The information is provided and maintained by Decision Technologies Limited. **This is indicative only and based on a 2-person household with multiple devices and simultaneous usage. Broadband performance is affected by multiple factors including number of occupants and devices, simultaneous usage, router range etc. For more information speak to your broadband provider.
Map data ©OpenStreetMap contributors.






