
4 bedroom detached house for sale
Elborough Gardens, Elborough, Weston-super-Mare, North Somerset, BS24

- PROPERTY TYPE
Detached
- BEDROOMS
4
- BATHROOMS
2
- SIZE
Ask agent
- TENUREDescribes how you own a property. There are different types of tenure - freehold, leasehold, and commonhold.Read more about tenure in our glossary page.
Freehold
Key features
- A brilliant four bedroom detached freehold family home
- Containing a master bedroom and en-suite shower room
- Multiple reception rooms providing flexible living spaces
- A private and enclosed front and rear garden with a far reaching approximately west facing view
- Shared driveway and private garage providing valuable off-street parking
- Well situated within a cul-de-sac in the family friendly area of Elborough
- Thoughtfully designed with family buyers in mind, yet perfectly suited to a wide range of purchasers
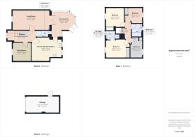
- Approximately 1,414 sq. ft.
Description
Outside, the home enjoys both a private front and enclosed rear garden, with the rear aspect benefitting from far-reaching, approximately west-facing views, creating a lovely setting for outdoor dining or unwinding. Additional benefits include a shared driveway and private garage, ensuring reliable off-street parking and storage.
Neatly tucked away within a peaceful cul-de-sac, this property is well located in the family-friendly area of Elborough, within easy reach of local amenities, countryside walks, commuter links, and schools. Designed with family buyers in mind, this home presents a superb opportunity to enjoy a quiet residential setting with convenience close at hand.
EPC Rating: C71 | Council Tax Band: E
Entrance
Hallway
An inviting hallway with engineered hardwood oak flooring, characterful timber panelling features, radiator, useful under stairs storage cupboard, ceiling spotlights, doors leading to principal rooms.
Dining Room
A wonderful dining room with a radiator, UPVC double glazed window, pendular ceiling light.
Kitchen/Breakfast Room
A well presented kitchen and breakfast room with tiled flooring, wide range of wall and floor storage units with worktops and tiled splashbacks over, inset one and a half bowl ceramic sink and drainer with Swan neck style tap over, well positioned under a UPVC double glazed window, integrated freezer, space and plumbing for appliances, freestanding four burner gas hob with oven and grill under and extraction hood over, additional UPVC double glazed window, radiators, wall mounted consumer unit, ceiling spotlights, UPVC double glazed patio door leading to the conservatory space.
Cloakroom
With a low-level WC, pedestal wash hand basin with tiled splashbacks over, radiator, UPVC double glazed window, ceiling spotlight.
Living Room
A light and bright living space with a log burner, slate hearth and timber mantle feature, radiator, UPVC double glazed window, pendulum ceiling lights, UPVC double glazed patio doors leading to the conservatory.
Conservatory
A cozy UPVC double glazed conservatory set upon exposed brickwork dwarf walls, tiled flooring, radiator, wall light, ceiling fan with spotlights, UPVC double glazed patio doors leading to the private and enclosed rear garden.
Stairs Rising from Entrance Hallway to First Floor Landing
First Floor Landing
With a useful airing cupboard, roof space access hatch, ceiling spotlight, doors leading to first floor rooms.
Master Bedroom
A brilliant master bedroom with a selection of built-in storage cupboards with hanging rails, radiator, UPVC double glazed window, ceiling light, door leading to the en-suite shower room.
En-Suite Shower Room
With tiled flooring, low-level WC, wash hand basin over vanity unit with a tiled splashbacks over, enclosed mains fed shower with part tiled walls, heated towel rail, UPVC double glazed window, extractor fan, ceiling spotlights.
Bedroom Two
A lovely double bedroom with a built-in storage cupboard with hanging rails, radiator, UPVC double glazed window, ceiling light.
Bedroom Three
A double bedroom currently being used as an office space with a built-in storage cupboard with hanging rails, UPVC double glazed window, radiator, ceiling light.
Bedroom Four
With radiator, useful built-in storage cupboard with hanging rails, UPVC double glazed window, ceiling light.
Family Bathroom
With low-level WC, pedestal wash hand basin with tiled splashbacks over, radiator, panelled bath with shower attachment over, timber wall panelling and dado rail, UPVC double glazed window, extractor fan, ceiling spotlights.
Outside
Front Garden & Driveway
On approach to the property, you are met with a private manicured front garden laid to lawn and a shared driveway laid to tarmac comfortably suitable for three vehicles, to either side of the property is timber gated access to the private and enclosed rear garden, block paved walkway leads to a step up to a UPVC double glazed entrance door.
Garage
With an up and over entrance door, access to power and electric, overhead storage space, ceiling light, UPVC double glazed door leading to the private and enclosed rear garden.
Rear Garden
A superb private and enclosed rear garden laid to stone tiles, steps up to an immaculate pond feature, steps up to an area laid to gravel with various flowerbeds home to mature bushes and shrubs, to the rear of the garden an open area laid to lawn, producing an incredible approximately West facing aspect, water supply tap, access to power and electric.
Please Note
The property is on two separate titles, the open area in the rear garden was formally part of the neighbouring properties agricultural pasture land. The hot tub is plug in and is available by separate negotiation.
Services
Mains water, gas, electricity, drainage.
Heating System
Gas central heating.
Tenure
Freehold.
360 Virtual Tour
Brochures
Particulars- COUNCIL TAXA payment made to your local authority in order to pay for local services like schools, libraries, and refuse collection. The amount you pay depends on the value of the property.Read more about council Tax in our glossary page.
- Band: TBC
- PARKINGDetails of how and where vehicles can be parked, and any associated costs.Read more about parking in our glossary page.
- Yes
- GARDENA property has access to an outdoor space, which could be private or shared.
- Yes
- ACCESSIBILITYHow a property has been adapted to meet the needs of vulnerable or disabled individuals.Read more about accessibility in our glossary page.
- Ask agent
Elborough Gardens, Elborough, Weston-super-Mare, North Somerset, BS24
Add an important place to see how long it'd take to get there from our property listings.
__mins driving to your place
Get an instant, personalised result:
- Show sellers you’re serious
- Secure viewings faster with agents
- No impact on your credit score
About David Plaister Ltd, Weston Super Mare
12 South Parade, Weston-super-Mare, North Somerset, BS23 1JN



Your mortgage
Notes
Staying secure when looking for property
Ensure you're up to date with our latest advice on how to avoid fraud or scams when looking for property online.
Visit our security centre to find out moreDisclaimer - Property reference DPA250089. The information displayed about this property comprises a property advertisement. Rightmove.co.uk makes no warranty as to the accuracy or completeness of the advertisement or any linked or associated information, and Rightmove has no control over the content. This property advertisement does not constitute property particulars. The information is provided and maintained by David Plaister Ltd, Weston Super Mare. Please contact the selling agent or developer directly to obtain any information which may be available under the terms of The Energy Performance of Buildings (Certificates and Inspections) (England and Wales) Regulations 2007 or the Home Report if in relation to a residential property in Scotland.
*This is the average speed from the provider with the fastest broadband package available at this postcode. The average speed displayed is based on the download speeds of at least 50% of customers at peak time (8pm to 10pm). Fibre/cable services at the postcode are subject to availability and may differ between properties within a postcode. Speeds can be affected by a range of technical and environmental factors. The speed at the property may be lower than that listed above. You can check the estimated speed and confirm availability to a property prior to purchasing on the broadband provider's website. Providers may increase charges. The information is provided and maintained by Decision Technologies Limited. **This is indicative only and based on a 2-person household with multiple devices and simultaneous usage. Broadband performance is affected by multiple factors including number of occupants and devices, simultaneous usage, router range etc. For more information speak to your broadband provider.
Map data ©OpenStreetMap contributors.






