
Hotham Road, Putney, London, SW15

- PROPERTY TYPE
Apartment
- BEDROOMS
2
- BATHROOMS
1
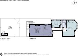
- SIZE
789 sq ft
73 sq m
Key features
- Light and bright accommodation
- Prime West Putney location
- Contemporary feel
- Charming private garden
- Stunning open plan reception space
- EPC Rating = C
Description
Description
A beautifully presented two-bedroom first-floor apartment in an elegant period building on one of West Putney’s most sought-after roads.
Flooded with natural light, the apartment offers a sense of space and sophistication throughout. At its heart is a superb 26 ft open-plan kitchen and reception room, featuring floor-to-ceiling sliding doors that lead onto a south-facing balcony.
Steps descend to a large, private south-facing garden, ideal for relaxing or entertaining, benefitting with side access and practical garden storage.
There are two generous double bedrooms, including a particularly spacious principal bedroom with an elegant bay window and extensive fitted wardrobes.
This is a truly special home, seamlessly combining period charm with contemporary style and outstanding outdoor space in a fantastic location.
Location
Hotham Road enjoys a prime location, just moments from the vibrant village atmosphere of Lower Richmond Road, with its independent cafés, boutiques, and restaurants, as well as excellent local schools.
The River Thames, Putney Common, and Richmond Park are all close by, with easy access to Putney mainline station, Putney Bridge Underground, and local bus routes. With its desirable setting, this home epitomises Putney's perfect balance of city convenience with outdoor living.
Square Footage: 789 sq ft
Brochures
Web DetailsParticulars- COUNCIL TAXA payment made to your local authority in order to pay for local services like schools, libraries, and refuse collection. The amount you pay depends on the value of the property.Read more about council Tax in our glossary page.
- Band: D
- PARKINGDetails of how and where vehicles can be parked, and any associated costs.Read more about parking in our glossary page.
- Ask agent
- GARDENA property has access to an outdoor space, which could be private or shared.
- Yes
- ACCESSIBILITYHow a property has been adapted to meet the needs of vulnerable or disabled individuals.Read more about accessibility in our glossary page.
- Ask agent
Hotham Road, Putney, London, SW15
Add an important place to see how long it'd take to get there from our property listings.
__mins driving to your place
Get an instant, personalised result:
- Show sellers you’re serious
- Secure viewings faster with agents
- No impact on your credit score
Your mortgage
Notes
Staying secure when looking for property
Ensure you're up to date with our latest advice on how to avoid fraud or scams when looking for property online.
Visit our security centre to find out moreDisclaimer - Property reference PUS250315. The information displayed about this property comprises a property advertisement. Rightmove.co.uk makes no warranty as to the accuracy or completeness of the advertisement or any linked or associated information, and Rightmove has no control over the content. This property advertisement does not constitute property particulars. The information is provided and maintained by Savills, Putney. Please contact the selling agent or developer directly to obtain any information which may be available under the terms of The Energy Performance of Buildings (Certificates and Inspections) (England and Wales) Regulations 2007 or the Home Report if in relation to a residential property in Scotland.
*This is the average speed from the provider with the fastest broadband package available at this postcode. The average speed displayed is based on the download speeds of at least 50% of customers at peak time (8pm to 10pm). Fibre/cable services at the postcode are subject to availability and may differ between properties within a postcode. Speeds can be affected by a range of technical and environmental factors. The speed at the property may be lower than that listed above. You can check the estimated speed and confirm availability to a property prior to purchasing on the broadband provider's website. Providers may increase charges. The information is provided and maintained by Decision Technologies Limited. **This is indicative only and based on a 2-person household with multiple devices and simultaneous usage. Broadband performance is affected by multiple factors including number of occupants and devices, simultaneous usage, router range etc. For more information speak to your broadband provider.
Map data ©OpenStreetMap contributors.





