
Falkland Gardens, Moortown, LS17

- PROPERTY TYPE
Detached
- BEDROOMS
4
- BATHROOMS
1
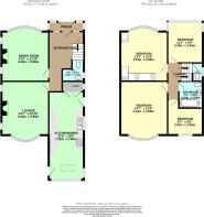
- SIZE
1,431 sq ft
133 sq m
- TENUREDescribes how you own a property. There are different types of tenure - freehold, leasehold, and commonhold.Read more about tenure in our glossary page.
Freehold
Key features
- * GUIDE PRICE £650,000-£675,000 * FOUR BEDROOM DETACHED HOME
- GRAND ENTRANCE HALLWAY WITH PANELLING
- IMMACULATE PRESENTATION THROUGHOUT
- WELL PROPORTIONED ROOM SIZES
- SOUTH-FACING REAR GARDEN
- QUIET CUL-DE-SAC WITH FOUR HOUSES
- POTENTIAL FOR LOFT CONVERSION (STPP)
- NEW ROOF/GUTTERS/SOFFITTS/FASCIAS (2018)
- CLOSE TO EXCELLENT SCHOOLS
- NEAR TO MOORTOWN & CHAPEL ALLERTON AMENITIES
Description
Preston Baker are proud to present, nestled on a quiet cul-de-sac between Moortown and Chapel Allerton, this impressive and lovingly improved four bedroom detached home on Falkland Gardens.
"I have enjoyed 26 years of living in Falkland Gardens. It has been so peaceful and tranquil with lovely neighbours. It's a fabulous location for shops, amenities and excellent schools just round the corner" - the current owner.
Step inside through the recently added front porch, with attractive Victorian tiling. You are greeted by a grand entrance hallway, with panelling and decorative plate shelves adding to the period charm. Immediately you can sense the high quality of finish and generous proportions throughout the home .
To your right, the front reception room currently serves as a formal dining room, boasting a large, curved bay window and a feature fireplace crafted from Portuguese limestone. To the rear is a spacious and inviting lounge, featuring another bay window and a newly installed wood-burning stove with another Portuguese limestone surround. Conveniently located on the ground floor is a discreet w/c with a wash hand basin. To the rear, the kitchen diner is well-appointed with modern conveniences, accompanied by a separate utility cupboard and a side door providing access to the driveway.
Ascending to the first floor, the accommodation includes four bedrooms. The two substantial double bedrooms are bathed in natural light due to their large curved bay windows, with the front room also benefitting from built-in storage. There is potential to create a Jack and Jill or en-suite bathroom between these two larger bedrooms. The third bedroom is suitable as a small double or large single, with a bay window extending above the front porch, and there is a further single bedroom. The house bathroom features a w/c, wash hand basin and a shower over bath, with another separate w/c conveniently located off the upstairs landing. The property holds exciting potential for future expansion with the possibility of converting the loft space into additional bedrooms and bathrooms (STPP). Meticulously maintained, the property has undergone significant improvements, including a full re-roofing in 2018 with new gutters, soffits, and fascias, ensuring peace of mind for years ahead.
Externally, the property enjoys a generous front garden and a long driveway capable of accommodating several vehicles, leading to a 1.5 size garage with an electric door. To the rear, there is a south-facing lawned garden with areas for planting. Situated just moments from Moortown Corner, Street Lane and Chapel Allerton, residents can enjoy being a short walk from lively social scenes, with various popular coffee spots, shops, and conveniences. Families are attracted by the highly regarded nurseries and schools nearby. Parks and green spaces include Moortown Park, Chapel Allerton Park and Gledhow Valley Woods, with a short drive taking you to beautiful lakeside walks at Roundhay Park. There are excellent commuter and public transport links to Leeds and Harrogate.
Please contact us to book your in-person appointment, or head to our website to use our online viewing booking tool!
- COUNCIL TAXA payment made to your local authority in order to pay for local services like schools, libraries, and refuse collection. The amount you pay depends on the value of the property.Read more about council Tax in our glossary page.
- Band: TBC
- PARKINGDetails of how and where vehicles can be parked, and any associated costs.Read more about parking in our glossary page.
- Garage,Driveway
- GARDENA property has access to an outdoor space, which could be private or shared.
- Private garden
- ACCESSIBILITYHow a property has been adapted to meet the needs of vulnerable or disabled individuals.Read more about accessibility in our glossary page.
- Ask agent
Falkland Gardens, Moortown, LS17
Add an important place to see how long it'd take to get there from our property listings.
__mins driving to your place
Get an instant, personalised result:
- Show sellers you’re serious
- Secure viewings faster with agents
- No impact on your credit score
Your mortgage
Notes
Staying secure when looking for property
Ensure you're up to date with our latest advice on how to avoid fraud or scams when looking for property online.
Visit our security centre to find out moreDisclaimer - Property reference PB110031. The information displayed about this property comprises a property advertisement. Rightmove.co.uk makes no warranty as to the accuracy or completeness of the advertisement or any linked or associated information, and Rightmove has no control over the content. This property advertisement does not constitute property particulars. The information is provided and maintained by Preston Baker, Leeds. Please contact the selling agent or developer directly to obtain any information which may be available under the terms of The Energy Performance of Buildings (Certificates and Inspections) (England and Wales) Regulations 2007 or the Home Report if in relation to a residential property in Scotland.
*This is the average speed from the provider with the fastest broadband package available at this postcode. The average speed displayed is based on the download speeds of at least 50% of customers at peak time (8pm to 10pm). Fibre/cable services at the postcode are subject to availability and may differ between properties within a postcode. Speeds can be affected by a range of technical and environmental factors. The speed at the property may be lower than that listed above. You can check the estimated speed and confirm availability to a property prior to purchasing on the broadband provider's website. Providers may increase charges. The information is provided and maintained by Decision Technologies Limited. **This is indicative only and based on a 2-person household with multiple devices and simultaneous usage. Broadband performance is affected by multiple factors including number of occupants and devices, simultaneous usage, router range etc. For more information speak to your broadband provider.
Map data ©OpenStreetMap contributors.





