
Main Road, Whatstandwell, Matlock, DE4

- PROPERTY TYPE
Semi-Detached
- BEDROOMS
3
- BATHROOMS
2
- SIZE
Ask agent
- TENUREDescribes how you own a property. There are different types of tenure - freehold, leasehold, and commonhold.Read more about tenure in our glossary page.
Freehold
Key features
- Well Presented Semi-Detached Home
- Garage Parking
- Stone Character Property
- Village Location
- Log Burner
- Stunning Views
Description
This charming and recently renovated semi-detached cottage perfectly blends character and modern comfort — ideal for first-time buyers or families seeking a move-in-ready home.
Nestled in the picturesque village of Whatstandwell, Daisy Cottage enjoys a peaceful setting within walking distance of the train station, nearby Crich village amenities, and the popular Matlock and Belper areas. The property also benefits from excellent transport links and catchment for highly rated local schools, offering the ideal balance of village tranquillity and convenience.
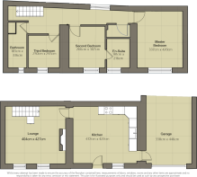
Kitchen/Diner: A beautifully presented, sociable space fitted with matching wall and base units, rolled-edge work surfaces, and tiled flooring. Includes an integrated electric oven, hob, and cooker hood, with plumbing for a dishwasher and washing machine. Spacious enough for a large dining table — perfect for family meals and entertaining.
Lounge: A welcoming family space filled with character, featuring exposed beams, rustic stonework, and a large fireplace with a log burner. Two UPVC double-glazed windows flood the room with natural light, enhancing its warm and inviting atmosphere.
Bedroom One: A generous master bedroom with a UPVC window, large radiator, new carpet, and access to attic storage.
Bedroom Two: A spacious double with light décor, fitted carpet, UPVC window, and radiator — ideal as a guest or family room.
En-Suite: A modern bathroom with a fitted bath and shower over, wash basin, WC, and frosted UPVC window.
Bedroom Three: A versatile space, perfect for a child’s room, home office, or dressing room.
Bathroom: A calm, neutral main bathroom with fitted bath, wash basin, WC, and built-in storage cupboard.
Garage: A good-sized parking garage with electronic roller door and internal access to the kitchen.
Exterior: A charming front garden with established planting and gated access, plus a secluded side garden featuring a small lawn, rockery, and timber fencing — ideal for relaxing or outdoor dining.
Property Description Disclaimer
This is a general description of the property only, and is not intended to constitute part of an offer or contract. It has been verified by the seller(s), unless marked as 'draft'. Purplebricks conducts some valuations online and some of our customers prepare their own property descriptions, so if you decide to proceed with a viewing or an offer, please note this information may have been provided solely by the vendor, and we may not have been able to visit the property to confirm it. If you require clarification on any point then please contact us, especially if you’re traveling some distance to view. All information should be checked by your solicitor prior to exchange of contracts.
Successful buyers will be required to complete anti-money laundering and proof of funds checks. Our partner, Lifetime Legal Limited, will carry out the initial checks on our behalf. The current non-refundable cost is £80 inc. VAT per offer. You’ll need to pay this to Lifetime Legal and complete all checks before we can issue a memorandum of sale. The cost includes obtaining relevant data and any manual checks and monitoring which might be required, and includes a range of benefits. Purplebricks will receive some of the fee taken by Lifetime Legal to compensate for its role in providing these checks.
Brochures
Brochure- COUNCIL TAXA payment made to your local authority in order to pay for local services like schools, libraries, and refuse collection. The amount you pay depends on the value of the property.Read more about council Tax in our glossary page.
- Band: D
- PARKINGDetails of how and where vehicles can be parked, and any associated costs.Read more about parking in our glossary page.
- Garage
- GARDENA property has access to an outdoor space, which could be private or shared.
- Private garden
- ACCESSIBILITYHow a property has been adapted to meet the needs of vulnerable or disabled individuals.Read more about accessibility in our glossary page.
- Ask agent
Main Road, Whatstandwell, Matlock, DE4
Add an important place to see how long it'd take to get there from our property listings.
__mins driving to your place
Get an instant, personalised result:
- Show sellers you’re serious
- Secure viewings faster with agents
- No impact on your credit score
Your mortgage
Notes
Staying secure when looking for property
Ensure you're up to date with our latest advice on how to avoid fraud or scams when looking for property online.
Visit our security centre to find out moreDisclaimer - Property reference 1990791-1. The information displayed about this property comprises a property advertisement. Rightmove.co.uk makes no warranty as to the accuracy or completeness of the advertisement or any linked or associated information, and Rightmove has no control over the content. This property advertisement does not constitute property particulars. The information is provided and maintained by Purplebricks, covering Derby. Please contact the selling agent or developer directly to obtain any information which may be available under the terms of The Energy Performance of Buildings (Certificates and Inspections) (England and Wales) Regulations 2007 or the Home Report if in relation to a residential property in Scotland.
*This is the average speed from the provider with the fastest broadband package available at this postcode. The average speed displayed is based on the download speeds of at least 50% of customers at peak time (8pm to 10pm). Fibre/cable services at the postcode are subject to availability and may differ between properties within a postcode. Speeds can be affected by a range of technical and environmental factors. The speed at the property may be lower than that listed above. You can check the estimated speed and confirm availability to a property prior to purchasing on the broadband provider's website. Providers may increase charges. The information is provided and maintained by Decision Technologies Limited. **This is indicative only and based on a 2-person household with multiple devices and simultaneous usage. Broadband performance is affected by multiple factors including number of occupants and devices, simultaneous usage, router range etc. For more information speak to your broadband provider.
Map data ©OpenStreetMap contributors.





