
Wherstead Road, Ipswich, Suffolk, IP2

- PROPERTY TYPE
Semi-Detached
- BEDROOMS
3
- SIZE
Ask agent
- TENUREDescribes how you own a property. There are different types of tenure - freehold, leasehold, and commonhold.Read more about tenure in our glossary page.
Freehold
Key features
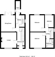
- SPACIOUS RECEPTION HALL
- SITTING ROOM WITH LARGE WINDOW & FEATURE FIREPLACE
- SEPARATE GENEROUS DINING ROOM WITH FRENCH DOORS & FIREPLACE
- FITTED KITCHEN WITH UTILITY AREA
- OPEN GALLERIED LANDING
- THREE GOOD SIZE BEDROOMS
- MODERN WHITE BATHROOM SUITE
- BLOCK PAVED DRIVE WITH TWO SIDE BY SIDE SPACES
- AMAZING 150FT REAR GARDEN
- NO ONWARD CHAIN
Description
This established house offers enormous potential, ready for immediate occupation with good room sizes throughout including two generous ground floor reception rooms as well as a kitchen and three good size bedrooms and family bathroom on the first floor. The property benefits from gas fired heating to radiators with modern Baxi boiler, PVC windows and doors. Other features include a wide block paved drive and south/westerly rear garden, in excess of 150ft. Internal viewing is highly recommended.
COVERED ENTRANCE:
PVC double glazed entrance door.
RECEPTION HALL:
13' 6" x 5' 6" (4.11m x 1.68m) Built-in understairs storage cupboard housing the modern Baxi wall mounted gas fired boiler, stripped and polished wooden floor, radiator.
SITTING ROOM:
11' 7" x 11' 6" (3.53m x 3.51m) Radiator, picture rail, panel door, chimney breast fitted with decorative wooden surround inset with gas flame effect fire, generous PVC triple glazed window to the front aspect.
DINING ROOM:
12' 3" x 10' 6" (3.73m x 3.2m) Radiator, chimney breast with decorative wooden surround and feature fireplace, open grate with tiled hearth, stripped and polished wooden flooring, PVC double glazed French doors opening to the rear garden.
KITCHEN:
9' 7" x 6' 5" (2.92m x 1.96m) Fitted with a good range of base and wall mounted units having wood effect doors and drawer fronts, marble effect worktops inset with stainless steel single bowl sink unit with flexi mixer tap, built-in stainless steel and glass eye level double oven/grill, inset four ring gas hob, extractor fan connected over, plumbing for dishwasher, space for fridge/freezer, tile effect flooring, tiled splash backs, open to the utility area generous PVC double glazed window to the side aspect.
UTILITY AREA:
9' 9" (2.97m) Long. Built-in matching storage cupboards, space for washing machine and tumble dryer, tiled splash backs, half glazed PVC door leads to the garden.
FIRST FLOOR GALLERIED LANDING:
Decorative pine balustrading, access to the insulated loft space, stripped panelled doors, generous PVC double glazed window to the side aspect.
BEDROOM 1:
12' 3" x 10' 5" (3.73m x 3.18m) Radiator, chimney breast, space for wardrobes, generous PVC double glazed window with views over the rear garden.
BEDROOM 2:
11' 5" x 11' 3" (3.48m x 3.43m) Radiator, chimney breast, space for wardrobes, picture rail, generous PVC triple glazed window to the front aspect.
BEDROOM 3:
8' 9" x 6' 7" (2.67m x 2.01m) Radiator, generous PVC double glazed window overlooking the rear garden.
FAMILY BATHROOM:
Modern white suite comprises panel bath with mixer tap, separate shower connected over, low level wc and ceramic pedestal wash hand basin with mono mixer tap, extensive wall tiling with feature panels, radiator, extractor fan, geometric style flooring, PVC triple glazed window to the front aspect.
OUTSIDE:
The property is set nicely back from the road with wide block paved drive and retaining walls to the front, parking for two side by side cars. Pedestrian access to the side leads to gated access to the rear garden. The impressive rear garden comprises substantial paved terrace with timber pergola providing shade, extensive lawn is approximately 150ft in length, two good condition timber garden stores, fenced boundaries, offering a good degree of seclusion facing south/westerly.
POSTCODE: IP2 8LJ
ENERGY RATING: C - 69
VIEWING:
By arrangement with the agents, Hamilton Smith, , or email us at You can also visit our web site
- COUNCIL TAXA payment made to your local authority in order to pay for local services like schools, libraries, and refuse collection. The amount you pay depends on the value of the property.Read more about council Tax in our glossary page.
- Ask agent
- PARKINGDetails of how and where vehicles can be parked, and any associated costs.Read more about parking in our glossary page.
- Driveway,Off street
- GARDENA property has access to an outdoor space, which could be private or shared.
- Rear garden
- ACCESSIBILITYHow a property has been adapted to meet the needs of vulnerable or disabled individuals.Read more about accessibility in our glossary page.
- Ask agent
Wherstead Road, Ipswich, Suffolk, IP2
Add an important place to see how long it'd take to get there from our property listings.
__mins driving to your place
Get an instant, personalised result:
- Show sellers you’re serious
- Secure viewings faster with agents
- No impact on your credit score
Your mortgage
Notes
Staying secure when looking for property
Ensure you're up to date with our latest advice on how to avoid fraud or scams when looking for property online.
Visit our security centre to find out moreDisclaimer - Property reference 4272. The information displayed about this property comprises a property advertisement. Rightmove.co.uk makes no warranty as to the accuracy or completeness of the advertisement or any linked or associated information, and Rightmove has no control over the content. This property advertisement does not constitute property particulars. The information is provided and maintained by Hamilton Smith, Claydon. Please contact the selling agent or developer directly to obtain any information which may be available under the terms of The Energy Performance of Buildings (Certificates and Inspections) (England and Wales) Regulations 2007 or the Home Report if in relation to a residential property in Scotland.
*This is the average speed from the provider with the fastest broadband package available at this postcode. The average speed displayed is based on the download speeds of at least 50% of customers at peak time (8pm to 10pm). Fibre/cable services at the postcode are subject to availability and may differ between properties within a postcode. Speeds can be affected by a range of technical and environmental factors. The speed at the property may be lower than that listed above. You can check the estimated speed and confirm availability to a property prior to purchasing on the broadband provider's website. Providers may increase charges. The information is provided and maintained by Decision Technologies Limited. **This is indicative only and based on a 2-person household with multiple devices and simultaneous usage. Broadband performance is affected by multiple factors including number of occupants and devices, simultaneous usage, router range etc. For more information speak to your broadband provider.
Map data ©OpenStreetMap contributors.








