
Eric Road, Wallasey, Wirral

- PROPERTY TYPE
Semi-Detached
- BEDROOMS
4
- BATHROOMS
2
- SIZE
Ask agent
- TENUREDescribes how you own a property. There are different types of tenure - freehold, leasehold, and commonhold.Read more about tenure in our glossary page.
Freehold
Key features
- Immaculate Four-Bedroom House
- Freehold
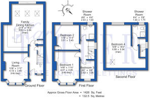
- 1,426 Sq Ft Approx
- Open-Plan Living, Dining And Kitchen Space
- Loft Conversion With Bedroom And Bathroom
- Cosy Living Room
- Two Contemporary Shower Rooms
- South-Westerly Facing Garden
- Short Walk to Liscard Village
- Close To Amenities, Schools, And Transport
Description
This beautifully presented four-bedroom family home has been thoughtfully extended and finished to a high standard throughout, whilst retaining charming period features including attractive bay windows that fill the house with natural light. Set within easy walking distance of Liscard and its range of shops, services and transport links, the location is also ideal for access to reputable local schools and commuter routes.
A welcoming porch opens into a generous hallway, leading to a cosy front living room perfect for relaxing. The heart of the home is the impressive open-plan living, dining and kitchen space, carefully designed to provide a wonderful setting for everyday family life and entertaining. This contemporary space flows seamlessly through large sliding doors to the sunny, south-westerly facing garden, beautifully paved for ease of maintenance and enjoyment throughout the year.
The first floor offers three well-proportioned bedrooms along with a stylish, modern shower room. The second floor has been converted to provide an additional spacious bedroom accompanied by its own contemporary shower room, creating an excellent private guest suite or peaceful retreat.
Further benefits include new uPVC double glazing, gas central heating and a new roof installed in 2019, ensuring peace of mind and efficiency. This is a home that is truly ready to move into and enjoy from day one.
Early viewing is strongly recommended to fully appreciate the space, finish and character this property offers.
- COUNCIL TAXA payment made to your local authority in order to pay for local services like schools, libraries, and refuse collection. The amount you pay depends on the value of the property.Read more about council Tax in our glossary page.
- Band: B
- PARKINGDetails of how and where vehicles can be parked, and any associated costs.Read more about parking in our glossary page.
- On street,Permit,Residents
- GARDENA property has access to an outdoor space, which could be private or shared.
- Yes
- ACCESSIBILITYHow a property has been adapted to meet the needs of vulnerable or disabled individuals.Read more about accessibility in our glossary page.
- Ask agent
Eric Road, Wallasey, Wirral
Add an important place to see how long it'd take to get there from our property listings.
__mins driving to your place
Get an instant, personalised result:
- Show sellers you’re serious
- Secure viewings faster with agents
- No impact on your credit score

Your mortgage
Notes
Staying secure when looking for property
Ensure you're up to date with our latest advice on how to avoid fraud or scams when looking for property online.
Visit our security centre to find out moreDisclaimer - Property reference WYS251063. The information displayed about this property comprises a property advertisement. Rightmove.co.uk makes no warranty as to the accuracy or completeness of the advertisement or any linked or associated information, and Rightmove has no control over the content. This property advertisement does not constitute property particulars. The information is provided and maintained by Karl Tatler Estate Agents, Wallasey. Please contact the selling agent or developer directly to obtain any information which may be available under the terms of The Energy Performance of Buildings (Certificates and Inspections) (England and Wales) Regulations 2007 or the Home Report if in relation to a residential property in Scotland.
*This is the average speed from the provider with the fastest broadband package available at this postcode. The average speed displayed is based on the download speeds of at least 50% of customers at peak time (8pm to 10pm). Fibre/cable services at the postcode are subject to availability and may differ between properties within a postcode. Speeds can be affected by a range of technical and environmental factors. The speed at the property may be lower than that listed above. You can check the estimated speed and confirm availability to a property prior to purchasing on the broadband provider's website. Providers may increase charges. The information is provided and maintained by Decision Technologies Limited. **This is indicative only and based on a 2-person household with multiple devices and simultaneous usage. Broadband performance is affected by multiple factors including number of occupants and devices, simultaneous usage, router range etc. For more information speak to your broadband provider.
Map data ©OpenStreetMap contributors.






